Eladó családi ház Csátalja 64 000 000 Ft

Leírás

Bács-Kiskun Vármegye déli részén található Csátalján, nagy családi ház ipari termelésre is alkalmas melléképületekkel, nagy telekkel, belterületen, eladó- kiadó.
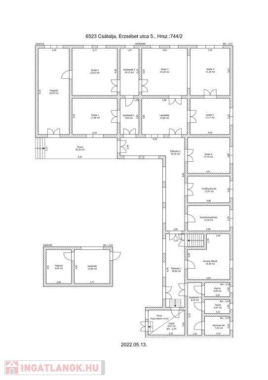
A lakóház az 1930-as években épült, bruttó 308 nm alapterületű, 8 szobás, polgári stílusú, összkomfortos ház, felújítandó állapotú. Alaprajz mellékelve.
A ház alatt 43 nm-es boltíves pince.
A téglaépítésű melléképületek együttes alapterülete 628 nm: műhelyek, tárolók, kiszolgáló helyiségek. A legnagyobb egy légtérű helyiség 243 nm-es, targoncával is bejárható.
Fedett-nyitott tárolók együttesen 490 nm alapterülettel, targoncával bejárható.
A melléképületekről, fedett-nyitott tárolókról is van alaprajz.
Az udvar részben betonozott( kb. 1.000 nm), kamiont is elbír.
Közművek:
- vezetékes víz
- vezetékes gáz
- villany 3 x 50 Amper
A melléképületekben jelenleg faipari tevékenység folyik. A fotókon látható gépek nem tartozékok, de külön megállapodással megvehetők.
A telek kb 1/3 része beépítetlen, jelenleg fatároló és itt fordulnak meg a nagyobb járművek.
Az ingatlan bérelhető is, bérleti díj 450 eFt/hó+ ÁFA
Minden kérdésre szívesen válaszolunk, hívjon vagy írjon bátran!
Ezt az ingatlant csak a Czakó Ingatlaniroda hirdeti!

Családi ház részletei

Ár: 64 000 000 Ft
Méret: 308 négyzetméter
Azonosító: 11453709
Irodai azonosító: 2427
Telek: 7844 négyzetméter
Ingatlan állapota: Felújítandó
Jelleg: családi ház
Építőanyag: Vegyes
Fűtés jellege: Központi
Fűtés módja: Vegyes
Komfort fokozat: Összkomfort
Kor: 50 évesnél régebbi
Elhelyezkedés: Utcafronti
Szintek száma: Földszintes
Egész szobák: 8

Egyéb jellemzők

  • Garázs
  • Kábel TV
  • Melléképület
  • Padlás
  • Parketta
  • Pince
  • Terasz

Térkép