Eladó családi ház Cserszegtomaj 99 900 000 Ft

Leírás

Cserszegtomajon csendes környéken, természetvédelmi terület közvetlen szomszédságában 4 lakrészes családi ház eladó.

Gold Balaton Home Ingatlaniroda megvételre kínálja a 2500 51023-as sorszámú több generációs CSERSZEGTOMAJI CSALÁDI HÁZAT.

Kétszintes, természetre néző CSALÁDI HÁZ több külön bejárattal, összesen 4 külön is megközelíthető lakrésszel eladó.

A Hévízi Termál Gyógyfürdőtől 3000 méterre, a Balatontól 7000 méterre helyezkedik el természetvédelmi terület szomszédságában.

Figyelem most árcsökkenés: 150 MFt-ról 99.9 MFt-ra !!!

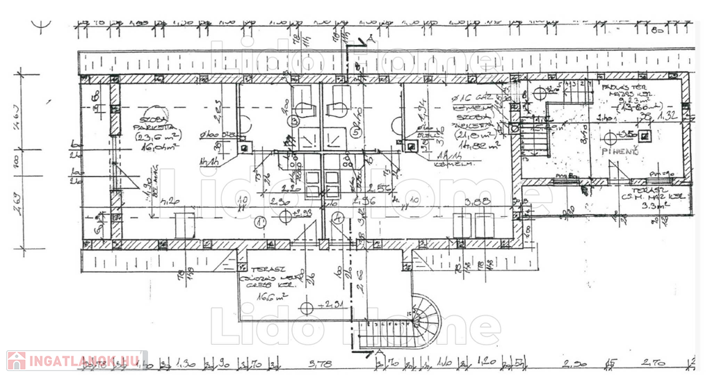
Műszaki paraméterek:

- 2004-ben épült téglából és kőből, a tető BRAMAC cseréppel fedett

- alapterület: 250 nm, telek mérete: 1048 nm

- HÁZ 1 - földszint helyiségei: terasz, nappali, előszoba, fürdőszoba káddal+ WC, konyha-étkező, kamra, hálószoba, fürdőszoba zuhanyzóval+ WC, fitnesz terem, pince előtér, külső kamra

- pinceszint: közlekedő, pince

- tetőtér helyiségei (külső lépcsőn is megközelíthető):

- apartman1 : amerikai konyhás nappali, fürdőszoba zuhanyzóval + WC, erkély

- apartman2 : amerikai konyhás nappali, fürdőszoba zuhanyzóval + WC erkély

- HÁZ 2 - földszint helyiségei: konyha-étkező, fürdőszoba zuhanyzóval

- tetőtér: közlekedő, szoba, erkély

- MELLÉKÉPÜLET - földszint: garázs, külső éléskamra

- tetőtér: előtér, konyha-étkező, fürdőszoba zuhanyzóval + WC, szoba, erkély

- pinceszint: közlekedő, pince

- fa nyílászárók dupla üveggel, redőnnyel, szúnyoghálóval

- a családi ház fűtése és meleg víz ellátása gázkazánnal biztosított, hő leadó típusa: radiátor

- másodlagos fűtés a földszinti lakrészekben 3 db. cserépkályha

- több esővízgyűjtő van az udvaron, az egyik a kerti tavat is táplálja

- parkolás: garázs, zárt udvar 

Az ingatlan egyéb jellemzői:

- csendes környék, jó szomszédok

- kerítéssel határolt telek, keleti és déli oldalról madárcsicsergős, nyugalmat árasztó természetvédelmi terület

- az erkélyekről panoráma a természetre és Hévízre

- termő gyümölcsfák és bokrok a kertben és az udvaron: pld.: alma, szilva, szőlő, füge, ribizli, tüske nélküli szeder, lasponya, ….

Az ingatlan állandó lakhatásra, nyaraltatásra és nyaralásra is jó választás, de befektetésnek is kitűnő lehetőség!

Amennyiben hirdetésem felkeltette érdeklődését, kérem keressen bizalommal.

Irodánk szolgáltatásai igény esetén: ügyvéd, energetikai tanúsítvány, hitelügyintézés, értékbecslés, statikus, földmérő, belsőépítész

Biztonság, szakértelem - GOLD BALATON HOME -  „Élj ott, ahol mások nyaralnak”

Családi ház részletei

Ár: 99 900 000 Ft
Méret: 250 négyzetméter
Azonosító: 11541645
Irodai azonosító: 250051023
Telek: 1048 négyzetméter
Ingatlan állapota:
Jelleg: családi ház
Építőanyag: Vegyes
Fűtés jellege: Cirkó
Fűtés módja: Gáz
Komfort fokozat: Összkomfort
Kor: 21-50 éves
Egész szobák: 6

Egyéb jellemzők

  • Csatorna

Hasonló családi ház hirdetések

Eladó családi ház

Cserszegtomaj

Új, prémium minőségű családi házak Cserszegtomajon – közvetlenül ...

Eladó családi ház

Cserszegtomaj

A Gold Balaton Home Ingatlaniroda megvételre kínálja a 2400 46016-os sorszámú ...

Eladó családi ház

Cserszegtomaj

Emeleti elhelyezkedés: Földszinten Épület emeleteinek száma: 2 Állapota: ...

Eladó családi ház

Cserszegtomaj

KIVÁLÓ INGATLAN KIVÁLÓ HELYEN! A Balaton / Keszthely / és Hévíz közvetlen ...

Hasonló családi ház hirdetések

Eladó családi ház

Cserszegtomaj

Új, prémium minőségű családi házak Cserszegtomajon – közvetlenül ...

Eladó családi ház

Cserszegtomaj

A Gold Balaton Home Ingatlaniroda megvételre kínálja a 2400 46016-os sorszámú ...

Eladó családi ház

Cserszegtomaj

Emeleti elhelyezkedés: Földszinten Épület emeleteinek száma: 2 Állapota: ...

Eladó családi ház

Cserszegtomaj

KIVÁLÓ INGATLAN KIVÁLÓ HELYEN! A Balaton / Keszthely / és Hévíz közvetlen ...