Eladó családi ház Cserszegtomaj 87 218 300 Ft

Leírás

A Gold Balaton Home Ingatlaniroda megvételre kínálja a 183 100 055-ös sorszámú CSERSZEGTOMAJI CSALÁDI HÁZAT.

Két szintes családi ház a természet közelében, oxigén dús környezetben eladó.

A Balatontól 4500 méterre a Hévízi-tótól 6000 méterre helyezkedik el.

Az eladó a vételárat euróban kéri. Irányár: 230 000 EUR.

Műszaki paraméterek:

- 2011-ban épült téglából, déli fekvésű

- a tető cseréppel fedett

- telek mérete: 3050 nm

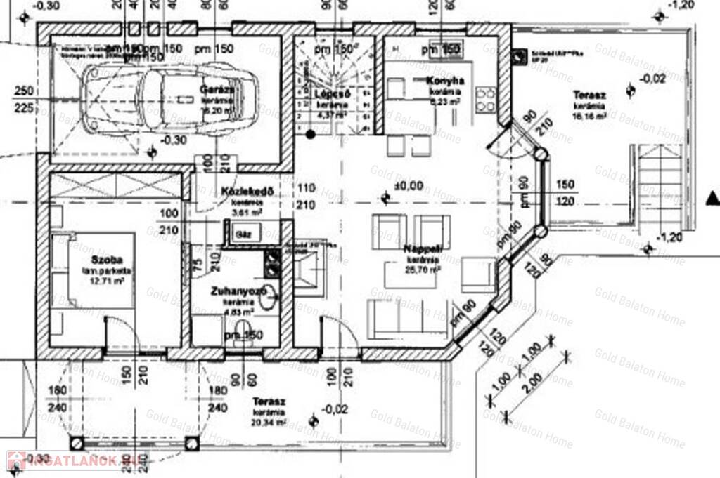
- alapterület: 128,14nm

- földszint: amerikai konyha, szoba, közlekedő, fürdőszoba, garázs, zöld övezetre tekintő teraszok

- emelet: 3 hálószoba, 2 fürdőszoba, közlekedő, erkély

- fa nyílászárók hőszigetelt üveggel

- fűtés tartályos gázzal lehetséges, radiátoros fűtésrendszer van kiépítve

- kémény van - kandalló vagy kályha építhető

Az ingatlan egyéb jellemzői:

- kilátás: természetre néző

- nyugodt, csendes, legfeljebb madárcsicsergéstől hangos környezet

- ha jó levegőjű, csendes környéken szeretne élni, ne hagyja ki ezt a lehetőséget

Az ingatlan akár állandó lakhatásra és nyaralásra is jó választás, de befektetésnek is kitűnő lehetőség!

Amennyiben hirdetésem felkeltette érdeklődését, kérem keressen bizalommal.

Irodánk szolgáltatásai igény esetén: ügyvéd, energetikai tanúsítvány, hitelügyintézés, értékbecslés, statikus, földmérő, belsőépítész

Biztonság, szakértelem - GOLD BALATON HOME - „Élj ott, ahol mások nyaralnak”

Családi ház részletei

Ár: 87 218 300 Ft
Méret: 128 négyzetméter
Azonosító: 11599933
Irodai azonosító: 183100055
Telek: 3050 négyzetméter
Ingatlan állapota: Újszerű
Jelleg: családi ház
Építőanyag: Tégla
Komfort fokozat: Összkomfort
Kor: 11-20 éves
Egész szobák: 5

Egyéb jellemzők

  • Csatorna

Hasonló családi ház hirdetések

Eladó családi ház

Cserszegtomaj

Emeleti elhelyezkedés: Földszinten Épület emeleteinek száma: 2 Állapota: ...

Hasonló családi ház hirdetések

Eladó családi ház

Cserszegtomaj

Emeleti elhelyezkedés: Földszinten Épület emeleteinek száma: 2 Állapota: ...