Eladó családi ház Csömör, Ófalu, 109 900 000 Ft

Leírás

Eladó önálló jellegű ikerház Csömörön – nyugodt, zöld környezetben, Kistarcsa közelében

Remek konstrukció, 21.-századi megvalósulás !
Soha nem látott kialakítás . A szomszéd házzal , csak gépkocsi tárolóknál érnek össze !

3% Hitel is felvehető !

Csömör kedvelt, csendes részén kínálunk megvételre egy önálló helyrajzi számmal rendelkező, 2010-ben épült, kiváló állapotú, önálló ház jellegű ikerházat. Az ingatlan csak a fedett gépkocsi-beállón keresztül kapcsolódik a szomszédhoz, így valódi privát életteret biztosít. Itt biztosan nincs áthallás!

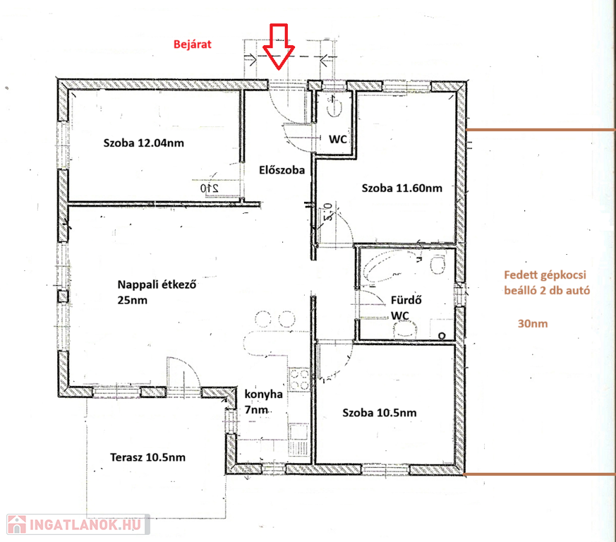
Főbb jellemzők:
-Lakótér: 77 nm
-Saját telek: 209 nm
-3 hálószoba
-Amerikai konyhás nappali
-Külön WC kézmosóval
-Fürdőszoba sarokkáddal, WC-vel
-30 nm fedett gépkocsi-beálló
-Gondozott kert
-Kerti tároló és külön kukatároló

Műszaki tartalom és korszerűsítések:
-2010-es építés, (21. századi technológia )Külső-belső szigeteléssel ellátott épület . Alig van fűtési számlája !
-Műanyag nyílászárók,Redőnyök és szúnyoghálók minden ablakon
-2024-ben teljes fűtés korszerűsítés .Garanciális Immergas kondenzációs kazán
-Radiátorokon Honeywell elektromos termosztátok. Felhőalapú vezérlés – szobánkként, akár óránként szabályozható, bárhonnan
-CCTV kamerarendszer .Komplett riasztórendszer
-Automata kapurendszer
-Locsolóóra

Rezsi
Az ingatlan kiemelkedően alacsony fenntartású.
A leghidegebb téli hónapokban is diktálás alapján maximum 20–25.000 Ft a gázszámla, amely 4 fő részére a melegvíz-ellátást is biztosítja.

Belső tér
A ház szinte minden helyiségében beépített bútorok találhatók.
A konyhabútor teljes gépesítéssel felszerelt, a dupla szárnyas hűtőgép,mosogatógép is ajándék .
Két szoba teljes felújításon esett át.
Az ingatlan jelenleg nem lakott, így gyorsan birtokba vehető.

Környezet
Csendes, családbarát környék, aszfaltozott utca , a közelben játszótér és erdő is megtalálható – ideális választás természetközeli, mégis jól megközelíthető otthont keresőknek.


Irány ára : 109.9 M Ft Minimális alkuval !

Amennyiben felkeltettem az érdeklődését akkor hívjon ,és nézze meg . Vasárnap, és ünnepnap kivételével mindig megtalál . Várom megkeresését .

Ficsór Ágnes

Ezúton tájékoztatjuk, hogy Ön, mint érdeklődő, a hirdetésben megjelölt telefonszám felhívásával hozzájárul személyes adatai – így különösen neve és telefonszáma -, a hirdetést feladó ,Kistarcsai Ingatlanközpont általi - biztonságos és körültekintő - kezeléséhez, nyilvántartásához.

Családi ház részletei

Ár: 109 900 000 Ft
Méret: 77 négyzetméter
Azonosító: 11612228
Városrész: Ófalu
Telek: 209 négyzetméter
Összesített energetikai besorolás: C
Rezsi: 25 000 Ft/hó
Ingatlan állapota: Kitűnő
Jelleg: családi ház
Építőanyag: Prokoncept
Fűtés jellege: Cirkó
Fűtés módja: Gáz
Komfort fokozat: Összkomfort
Kor: 11-20 éves
Elhelyezkedés: Udvari
Szintek száma: Földszintes
Bútorozott: Részben bútorozott
Egész szobák: 3
Nappalik: 1

Egyéb jellemzők

  • Beépíthető tetőtér
  • Csatorna
  • Garázs
  • Kábel TV
  • Padlás
  • Parketta
  • Pince
  • Terasz