Eladó családi ház Csór 84 900 000 Ft

Leírás

Exkluzív, új építésű családi otthon lenyűgöző örökpanorámával Csór, Iszkaszőlőhegyen!

Vh-Csór, Iszkaszőlőhegy egyik legszebb részén, aszfaltozott úton könnyen megközelíthető, örökpanorámás telken ÚJÉPÍTÉSŰ, önálló családi ház ELADÓ, mely kulcsrakész állapotban várja új tulajdonosát.

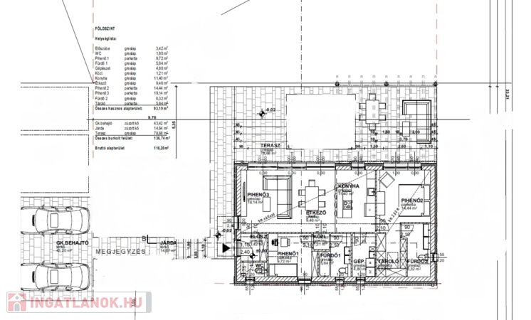
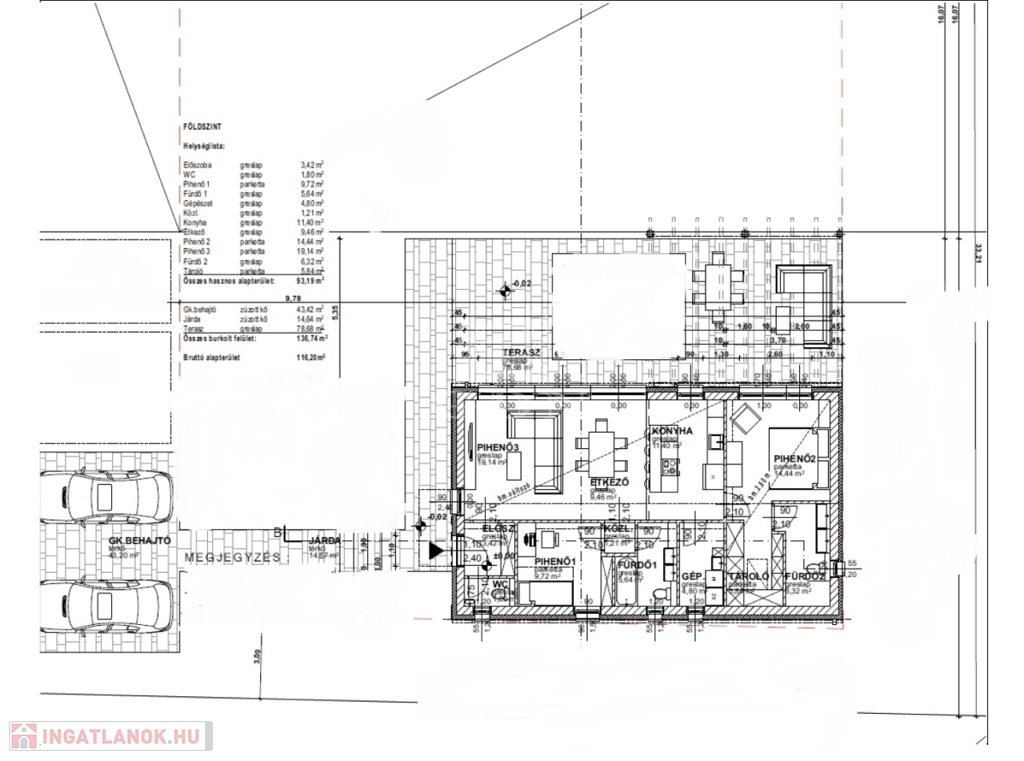
A 2025-ben épült ingatlan 93 négyzetméter hasznos alapterülettel rendelkezik, mely ideális elrendezést biztosít: egy körbe napozott amerikai konyha-nappali mellett két tágas hálószoba, két különálló fürdőszoba, előszoba és háztartási helyiség került kialakításra. A belső tér rugalmasan alakítható, így igény szerint akár nappali + 3 szobás elrendezés is megvalósítható. Az életteret jelentősen kiterjeszti a házhoz kapcsolódó 79 négyzetméteres terasz.


Korszerű Műszaki Megoldások

Az otthon energiahatékonyságát a modern műszaki tartalom garantálja. A falazat Ytong téglából, a válaszfalak gipszkartonból készültek, 15 centiméter vastag homlokzati hőszigeteléssel ellátva. A szeglemezes födém,-tető szerkezetben 30 centiméter vastag, fújt cellulóz szigetelés került, melyet Terrán cserép tetőfedés zár.
A nyílászárók műanyagból készültek, 5 kamrás, háromrétegű hőszigetelt üvegezéssel.
A fűtésrendszer 11 kilowattos hőszivattyúval megoldott padlófűtést biztosít. A villamos hálózat 3x25A kapacitású, és lehetőség van H-tarifás óra igénylésére. A jövőre gondolva kialakításra került az elektromos autó töltő előkészítése, továbbá a ház alkalmas napelem- és napkollektor rendszer telepítésére is.


Telek és Közművek

A 1100 négyzetméteres telek körbekerített, a bejutás kényelmét elektromos kapu garantálja. A terepviszonyok kiegyenlítése céljából masszív vasbeton támfal épült.

A közműellátás a villany rendelkezésre állásával biztosított. Az ivóvíz fúrt kút és időszakosan feltöltendő víztároló segítségével megoldott, míg a szennyvízelvezetést egy 35 köbméteres derítő szolgálja.

Az eladási ár magában foglalja a megadott listából választható hideg-meleg burkolatokat, az alapszereléseket, valamint a tereprendezést is.
Az ingatlan a szerződéskötéstől számítva 1-3 hónapon belül kulcsrakész állapotban birtokba vehető.

Eladási irányár: 84,9 M Ft

Ha felkeltette érdeklődését, hívjon bizalommal, (hétvégén is) éljen ingyenes, személyre szabott hitelügyintézés szolgáltatásunkkal. Segítünk továbbá adásvételhez szükséges ügyvédi közreműködésben, energetikai tanúsítvány, valamint értékbecslés elkészítésében.

For English information please send a message.

Családi ház részletei

Ár: 84 900 000 Ft
Méret: 93 négyzetméter
Azonosító: 11593372
Irodai azonosító: 391827
Cím: Iszkaszőlőhegy
Telek: 1100 négyzetméter
Ingatlan állapota: Kitűnő
Jelleg: családi ház
Építőanyag: Kérdezzen rá a hirdetőtől »
Fűtés jellege: Geotermikus
Fűtés módja: Hőszivattyú
Komfort fokozat: Összkomfort
Kor: Új építésű
Szintek száma: Földszintes
Egész szobák: 3

Egyéb jellemzők

  • Csatorna
  • Garázs
  • Pince
  • Terasz

Térkép

Hasonló családi ház hirdetések

Eladó családi ház

Csór

Exkluzív, új építésű családi otthon lenyűgöző örökpanorámával ...

Hasonló családi ház hirdetések

Eladó családi ház

Csór

Exkluzív, új építésű családi otthon lenyűgöző örökpanorámával ...