Eladó családi ház Dabas 118 800 000 Ft

Leírás

Kifinomult elegancia és korszerű kényelem Dabason – újszerű, energiatakarékos ikerházfél eladó
Dabas egyik legkeresettebb, csendes és rendezett utcájában kínálok megvételre egy 2021-ben épült, A++ energetikai besorolású, modern és stílusos ikerházfelet, amely a minőségi kivitelezés, a praktikus elrendezés és az alacsony fenntartási költség tökéletes harmóniáját nyújtja.

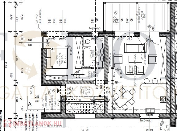
Az 119 m²-es, két szinten elhelyezkedő otthon átgondolt térszervezése ideális választás akár nagyobb család számára is. A tágas, természetes fényben úszó amerikai konyhás nappali a ház szíve, amelyhez teljesen gépesített, beépített konyha tartozik.
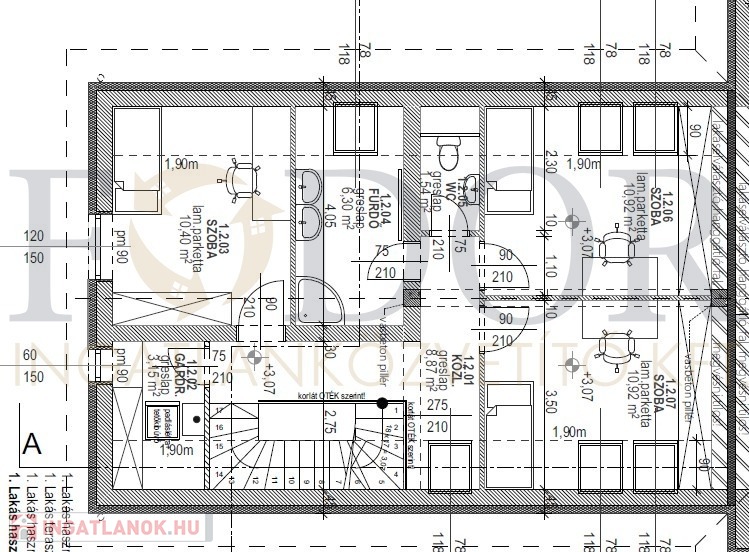
Négy külön nyíló hálószoba, két fürdőszoba, három WC, praktikus kamra és egy galéria biztosítja a kényelmet és a privát élettereket.
A két fedett terasz (16,4 m² és 4,4 m²) tökéletes helyszín a reggeli kávézáshoz vagy baráti vacsorákhoz. A gondozott, parkosított kert grillezőrésszel, valamint egy 15 m²-es mobil műhellyel és külön tárolóval egészíti ki az ingatlant – tökéletes azok számára, akik értékelik a szabadtér nyugalmát és a funkcionalitást.

Műszaki jellemzők:
• A++ energetikai besorolás
• napelem (4 kW) + 8 kW-os inverter
• 5 db hűtő-fűtő klíma (minden szobában és a nappaliban)
• Padlófűtés, gázcirkóval, valamint villanybojler használatának lehetősége.
• 20 cm homlokzati dryvit hőszigetelés
• 3 rétegű, hang- és hőszigetelt nyílászárók redőnnyel és szúnyoghálóval
• 60 cm-es vasalt sávalap, 30 cm vastag Leier falazat
• Riasztó előkészítés
• Az ikerházak érintkezésénél dupla falazás, a hanghatások teljes elkerülése érdekében.
A ház nem csupán esztétikus és kényelmes, hanem hosszú távon is gazdaságos választás – alacsony rezsivel, környezettudatos működéssel és kimagasló értékállósággal.

Az elhelyezkedés ideális: iskolák, óvodák, bevásárlási lehetőségek (Lidl, Aldi, Penny, Tesco), egészségügyi intézmények néhány perces távolságban elérhetők, miközben a környék csendes, biztonságos és rendezett.

Finanszírozási lehetőség:
Akár Babaváró hitel, CSOK plusz és illetékmentesség, valamint a 3%-os otthon start hitel is igénybe vehető, így ez a prémium otthon most még elérhetőbbé válik.
Ez az ingatlan nem csupán egy ház – hanem egy időtálló, modern otthon, ahol minden részlet a kényelmet, a minőséget és a harmóniát szolgálja.

Családi ház részletei

Ár: 118 800 000 Ft
Méret: 119 négyzetméter
Azonosító: 11571160
Irodai azonosító: 343469
Telek: 343 négyzetméter
Összesített energetikai besorolás: A++
Ingatlan állapota: Kitűnő
Jelleg: ikerház
Építőanyag: Tégla
Fűtés jellege: Cirkó
Fűtés módja: Gáz
Komfort fokozat: Dupla komfort
Egész szobák: 5

Egyéb jellemzők

  • Terasz

Hasonló családi ház hirdetések

Eladó családi ház

Dabas

Budapesttől 35 percre, Dabas központi, elit, részén nívós környezetben ...

Eladó családi ház

Dabas

Budapesttől 35 percre, Dabas központi, elit, részén nívós környezetben ...

Eladó családi ház

Dabas

Új építésű ikerház Dabason eladó ( A másik fele már elkelt )) Ajándék ...

Eladó családi ház

Dabas

Eladásra kínálok egy rendkívüli ingatlant, amely Dabas szívében található.! ...

Hasonló családi ház hirdetések

Eladó családi ház

Dabas

Budapesttől 35 percre, Dabas központi, elit, részén nívós környezetben ...

Eladó családi ház

Dabas

Budapesttől 35 percre, Dabas központi, elit, részén nívós környezetben ...

Eladó családi ház

Dabas

Új építésű ikerház Dabason eladó ( A másik fele már elkelt )) Ajándék ...

Eladó családi ház

Dabas

Eladásra kínálok egy rendkívüli ingatlant, amely Dabas szívében található.! ...