Eladó családi ház Dad 67 000 000 Ft

Leírás

Figyelem! Hamarosan szerkezetkész! Új építésű házat szeretnél, de nem szeretnél az építkezéssel bajlódni? Dadon most megvalósítják helyetted az álmodat! A tervek elkészültek, elfogadták, a burkolatokat még kiválaszthatod magadnak ebben a remek házban! A nyarat már ebben az új kertesházban élvezheted!

A Lux Ingatlaniroda Oroszlány kínálatából 183300287 számon eladó dadi, családi ház jellemzői:

-1440 m2-es telken kerül felépítésre egy kb.130 m2-es szabadon álló, könnyűszerkezetes családi ház, melyhez kb.30m2-es fedett terasz is tartozik!

-Használatbavételi engedély után hitelezhető, előtte előszerződéssel foglalózható, és akkor a burkolatok kiválasztása már a te igényeidnek megfelelően történik.

-A nappalinak nem csak dísze lesz egy kandalló, hanem a téli estéket melegebbé, meghittebbé és hangulatosabbá is teszi.

-A hűtésért és a fűtésért hőszivattyús rendszer felel, mely igazán kedvező fenntartású.

-Az alapozás elkezdődött, várható elkészülés 2023 tavasza.

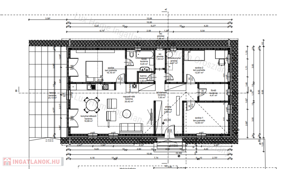
-Kialakítását tekintve amerikai konyhás nappali elrendezés mellett 3 hálószoba lesz kialakítva. Az egyik hálószobából privát fürdőszoba nyílik.  

-Az alaprajzból jól látszik az elrendezés.

-Igény és megrendelés esetén az udvarra épített medencét is készítenek neked.

-Készültségi fok alapján fizetendő az önrész mértéke, friss fotókkal folyamatosan dokumentáljuk az építkezést.

-A telek körbe van kerítve, az utcafronti kerítés dísz zsaluköves kivitellel készül majd. Személy és gépkocsi behajtásra alkalmas kapukkal. 

Amennyiben a Lux Ingatlaniroda által kínált hirdetés felkeltette az érdeklődésed, keress bizalommal! Kollégáim díjmentes és bankfüggetlen hitelügyintézéssel állnak rendelkezésedre.

Lux Ingatlan - Számolj velünk

Családi ház részletei

Ár: 67 000 000 Ft
Méret: 136 négyzetméter
Azonosító: 11594515
Irodai azonosító: 182501086
Telek: 1440 négyzetméter
Ingatlan állapota: Kitűnő
Jelleg: családi ház
Építőanyag: Könnyűszerkezetes
Komfort fokozat: Összkomfort
Bútorozott: Nem bútorozott
Egész szobák: 4