Eladó családi ház Dánszentmiklós 60 000 000 Ft

Leírás

ÚJ ÉPÍTÉSŰ ÖNÁLLÓ 3 szobás CSALÁDI HÁZ ELADÓ DÁNSZENTMIKLÓSON!

MINŐSÉG MODERN TECHNOLÓGIA KIVÁLÓ LOKÁCIÓ MINDEN EGY HELYEN!

OTTHON START PROGRAM IGÉNYELHETŐ!

Ha egy valóban igényesen kivitelezett, korszerű otthont keres, most megtalálta!
Több éves, megbízható együttműködés egy bevált kivitelezővel referencia munkák megtekinthetők!


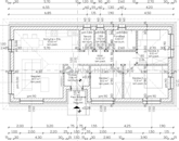
INGATLAN ADATAI
75 m² lakótér
397 m² telek
21,42 m² nyitott terasz

Elrendezés:
3 külön nyíló szoba
nappali + konyha + étkező
fürdőszoba
külön WC
közlekedő
tároló
előtér
nyitott terasz : 21.42 m2


MÉG MOST A SAJÁT ÍZLÉSÉRE SZABHATJA!
hidegburkolat: 10.000 Ft/m²-ig választható
melegburkolat: 6.000 Ft/m²-ig választható
beltéri ajtók: 100.000 Ft/db-ig
szaniterek: 450.000 Ft-ig



MŰSZAKI TARTALOM
30 cm Porotherm falazat
15 cm homlokzati szigetelés
8 cm XPS lábazati szigetelés
Leier betoncserép
10 cm Ytong válaszfalak
Silka 30 hanggátló fal a lakások között


MODERN GÉPÉSZET
padlófűtés minden helyiségben
6 kW-os Mitsubishi hőszivattyú
3,5 kW inverteres Gree klíma



EXTRÁK
elektromos kapu kiállás
napelem előkészítés
3×20 A + 1×16 A (H tarifa)



LOKÁCIÓ
iskola, óvoda, bolt a közelben
Budapest 30 perc autóval (M4)
Nyugati pályaudvar 55 perc vonattal


Teljes körű ügyintézés egy helyen!
Hitel, CSOK / támogatások, ügyvédi háttér biztosított.
Átadás 2027. II.negyedév


Ne maradjon le róla! Hívjon bizalommal a hét bármely napján!



Ha szeretnéd, készítek hozzá egy még agresszívebb, eladós verziót vagy egy rövidebb Facebook-hirdetés szöveget is.

Családi ház részletei

Ár: 60 000 000 Ft
Méret: 75 négyzetméter
Azonosító: 11615957
Irodai azonosító: HZ031780-5213605
Telek: 397 négyzetméter
Ingatlan állapota: Épülő
Jelleg: családi ház
Építőanyag: Tégla
Fűtés jellege: Villany
Fűtés módja: Hőszivattyú
Kor: Új építésű
Szintek száma: Földszintes
Egész szobák: 4

Térkép

Hasonló családi ház hirdetések

Eladó családi ház

Dánszentmiklós

FOGLALHATÓ!Dánszentmiklóson – Budapesttől 50 km-re – eladó egy modern, ...

Eladó családi ház

Dánszentmiklós

PRÉMIUM MINŐSÉGŰ ÚJ ÉPÍTÉSŰ IKERHÁZ FELEK DÁNSZENTMIKLÓS LEGÚJABB ...

Eladó családi ház

Dánszentmiklós

OTTHON START 3%-os hitelre alkalmasan.Hőszivattyú padlófűtéssel.Az építkezés ...

Eladó családi ház

Dánszentmiklós

PRÉMIUM MINŐSÉGŰ ÚJ ÉPÍTÉSŰ IKERHÁZ FELEK DÁNSZENTMIKLÓS LEGÚJABB ...

Hasonló családi ház hirdetések

Eladó családi ház

Dánszentmiklós

FOGLALHATÓ!Dánszentmiklóson – Budapesttől 50 km-re – eladó egy modern, ...

Eladó családi ház

Dánszentmiklós

PRÉMIUM MINŐSÉGŰ ÚJ ÉPÍTÉSŰ IKERHÁZ FELEK DÁNSZENTMIKLÓS LEGÚJABB ...

Eladó családi ház

Dánszentmiklós

OTTHON START 3%-os hitelre alkalmasan.Hőszivattyú padlófűtéssel.Az építkezés ...

Eladó családi ház

Dánszentmiklós

PRÉMIUM MINŐSÉGŰ ÚJ ÉPÍTÉSŰ IKERHÁZ FELEK DÁNSZENTMIKLÓS LEGÚJABB ...