Eladó családi ház Dány 59 900 000 Ft

Leírás

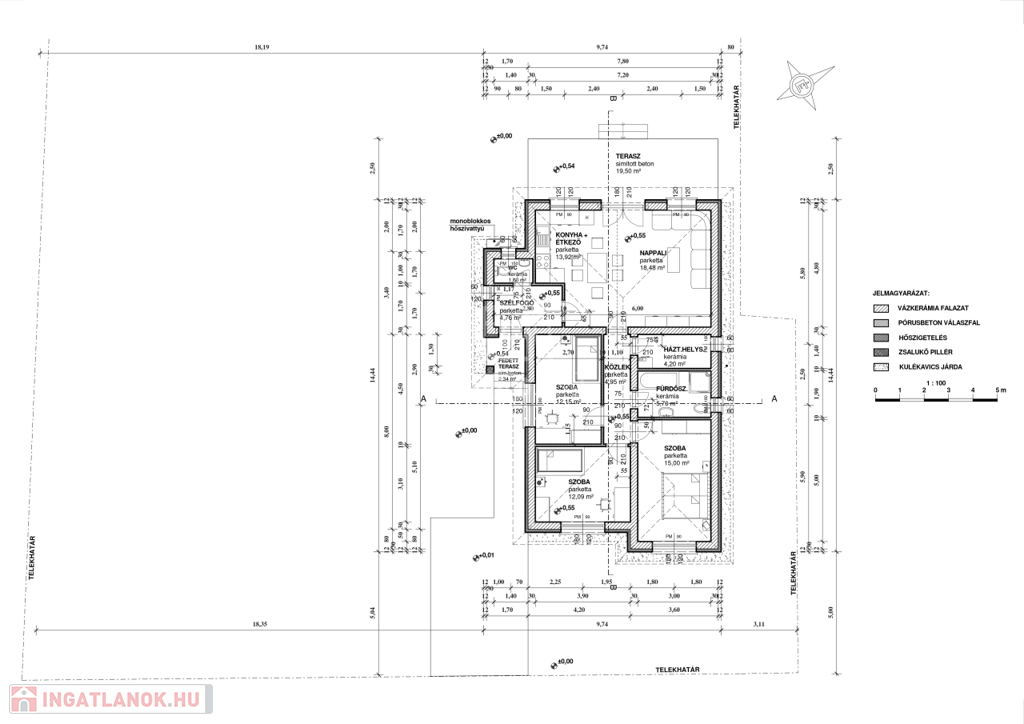
Dányban a Koska Közben, 624 m2-es telken, újonnan épülő nettó 92,85 m2 hasznos lakótérrel rendelkező, önálló családi ház eladó.

Egymás mellett 624 m2 (elkelt) és 585 m2-es telken két azonos ingatlant kínálunk.

Az építés megkezdődött, a beton alap elkészült.

Az ingatlan 30-as Nútféderes tégla falazóelemből épül, fa födémmel.
A tető héjazata antracit betoncserép lesz, a homlokzatok 12cm Austrotherm Grafitos EPS, a padló 10cm Austrotherm AT-N100-as, a vízszintes födém 25cm Ásványgyapot szigeteléssel lesz ellátva.

Hat légkamrás 3 rétegű evegekkel szerelt nyílászárók kerülnek beépítésre.

A fűtést és a melegvíz ellátást hőszivattyús rendszer fogja ellátni, padlófűtéssel.


A műszaki tartalom választható az alábbi költségkereten belül:

-hidegburkolat:5000.- Ft./m2-ig.
-melegburkolat:4000.- Ft./m2-ig
-csaptelepek:15.000.- Ft./db
-kád vagy zuhany: 40.000.- Ft.
-beltéri ajtók:35.000.- Ft./db
-Wc Falsík mögötti rendszer

Elektromos kiépítés:
-Konnektorok szobákban: 3 db
-Konnektorok nappaliban 4db + internet és kábeltv kiállás
-Konnektorok konyhában: 6db
-Világítás helyiségenként 1-1 db
-Kábeltévé: Előkészítés


Magasabb árú tatalom is választható a különbség finanszírozásával.

Riasztó előkészítés és kapu mozgató elektronika előkészítés is készül.

Kérésre szívesen küldünk komplett tervdokumentációt, műszaki leírást.

A kivitelező korábban Dányban épített, általunk értékesített és birtokbaadott ingatlanjait komoly érdeklődés esetén szívesen megmutatjuk referenciaként.

Központi elhelyezkedésének köszönhetően a közelben megtalálhatóak:

-Játszótér 150m
-Pékség 260m
-Helyi és távolsági busz megállója 260m
-Coop ABC 280m
-Általános iskola 300m
-Posta 350m
-Gyógyszertár 550m
-Háziorvosi rendelő 750m
-Óvoda 800m

Várható átadás 2026 első negyedév.

INGYENES hitel tanácsadás, CSOK Plusz ügyintézés!
BANKFÜGGETLEN hitelcentrumunk az összes elérhető bank és hitelintézet ajánlatát versenyezteti az Ön kedvéért, ráadásul DÍJMENTESEN.

- Egyedi, bankfiókban nem elérhető kamat- és díjkedvezmények
- Hitelképesség vizsgálat
- Idő, energia és pénz megtakarítás
- Teljes hivatali ügyintézés

Amennyiben hirdetésem felkeltette az érdeklődését vagy egyéb információra van szüksége hívjon bizalommal!

Családi ház részletei

Ár: 59 900 000 Ft
Méret: 93 négyzetméter
Azonosító: 11523834
Irodai azonosító: 381827
Cím: Koska Köz
Telek: 585 négyzetméter
Ingatlan állapota: Kitűnő
Jelleg: családi ház
Építőanyag: Tégla
Fűtés jellege: Geotermikus
Fűtés módja: Hőszivattyú
Komfort fokozat: Összkomfort
Kor: Új építésű
Szintek száma: Földszintes
Egész szobák: 4

Egyéb jellemzők

  • Csatorna
  • Garázs
  • Pince
  • Terasz

Térkép

Hasonló családi ház hirdetések

Eladó családi ház

Dány

ELADÓ! Dány Szentkirály BELTERÜLETÉN CSENDES, BÉKÉS részen, 3837 m²-es, ...

Eladó családi ház

Dány

Dányban az Arany János utcában, 910 m²-es telken, eladó egy 30-as Porotherm ...

Hasonló családi ház hirdetések

Eladó családi ház

Dány

ELADÓ! Dány Szentkirály BELTERÜLETÉN CSENDES, BÉKÉS részen, 3837 m²-es, ...

Eladó családi ház

Dány

Dányban az Arany János utcában, 910 m²-es telken, eladó egy 30-as Porotherm ...