Eladó családi ház Debrecen 108 500 000 Ft

Leírás

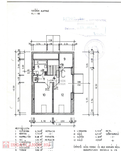
Debrecenben a kedvelt Biharikert városrészben, eladóvá vált, 107 nm-es tetőteres ház.
Ideális választás azok számára , akik szeretnék megteremteni családjuk otthonát egy csendes, mégis élénk környezetben.
Masszív beton alapra épült 1989 -ben. Falazatának, gázcirkó fűtésének és a födém szigetelésének köszönhetően kedvező fenntartási költségű. Nyílászárói fából vannak, hőszigetelt üvegezéssel, redőnnyel ellátva. Tágas nappalival és kettő kényelmes szobával rendelkezik, amelyek mind a családi együttlétek, mind a pihenés tökéletes helyszínéül szolgálnak. A nappali méretének és adottságainak köszönhetően, az ingatlan könnyen 4 szobássá alakítható! A két fürdőszoba kényelmet biztosít a mindennapok során, így a reggeli készülődés nem jelenthet gondot a családtagok számára. A közel 10 nm-es terasz ideális helyszín a reggeli kávézásra vagy a naplemente megcsodálására. A 648 négyzetméteres telek bőséges helyet kínál a szabadban való tevékenységekhez, legyen szó gyerekek játékáról vagy baráti összejövetelekről. A kertben fúrt kút biztosítja a növények öntözését . Az udvarra akár több autó beállása is megoldható a lemez garázson kívül. Az ingatlan lakható állapotú, de a leendő tulajdonos saját ízlésére formálhatja a teret, hogy az számára is otthonná váljon. A környék ellátottsága kiváló, számos bolt, iskola és egészségügyi intézmény található a közelben, amelyek megkönnyítik a mindennapi életet. A Biharikert városrész biztonságos, csendes utcái ideálisak a gyermekek számára, akik szabadon játszhatnak a szomszédságban. A közlekedési lehetőségek is kedvezőek, hiszen a város tömegközlekedési hálózata könnyen elérhető, így a Debrecen belvárosába történő bejutás is gyors és egyszerű. Ez a ház nem csupán egy ingatlan, hanem a családi élet színtere is lehet, ahol a szép emlékek születnek...
Csok + és 3%-os hitelre is alkalmas!
További felvilágosításért várom megkeresését!



Debrecen, eladó, családi ház, önálló, 3 szoba, gázfűtés, Biharikert

Családi ház részletei

Ár: 108 500 000 Ft
Méret: 107 négyzetméter
Azonosító: 11597602
Telek: 648 négyzetméter
Ingatlan állapota: Átlagos
Jelleg: családi ház
Építőanyag: Kérdezzen rá a hirdetőtől »
Fűtés jellege: Cirkó
Egész szobák: 3

Egyéb jellemzők

  • Csatorna
  • Garázs
  • Kábel TV
  • Melléképület
  • Parketta
  • Pince
  • Terasz

Hasonló családi ház hirdetések

Eladó családi ház

Debrecen

Debrecen kertvárosi övezetében, Józsán 1870 nm-es telken lévő családi ...

Eladó családi ház

Debrecen

Debrecen, csendes, kertvárosi területen a Homokkertben, a Vécsey utcában ...

Eladó családi ház

Debrecen

Eladó családi ház, Debrecen egyik kedvelt városrészén, Józsán! Ez ...

Eladó családi ház

Debrecen

Debrecenben a Júlia-telepen átmenő forgalomtól mentes utcában eladó ...

Hasonló családi ház hirdetések

Eladó családi ház

Debrecen

Debrecen kertvárosi övezetében, Józsán 1870 nm-es telken lévő családi ...

Eladó családi ház

Debrecen

Debrecen, csendes, kertvárosi területen a Homokkertben, a Vécsey utcában ...

Eladó családi ház

Debrecen

Eladó családi ház, Debrecen egyik kedvelt városrészén, Józsán! Ez ...

Eladó családi ház

Debrecen

Debrecenben a Júlia-telepen átmenő forgalomtól mentes utcában eladó ...