Eladó családi ház Debrecen 115 000 000 Ft

Leírás

Debrecen dinamikusan fejlődő városrészében, a Jégcsarnok mögötti területen eldó, egy épülő ikerház lakása.
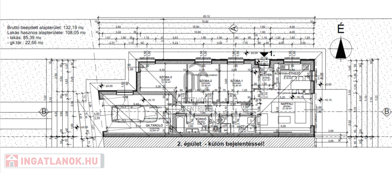
Az ingatlan FÖLDSZINTES, konyha - étkező - nappali + 3 szobás, külön fürdőszoba + háztartási helyiség kialakítású, illetve a lakással kapcsolatos egy 22,66 m2 - es garázs.
Az ingatlan beépített területe : 108 m2 + egy : 15 m2 - es terasz tartozik hozzá.
Az ikerház 2 lakása nem egymáson átjárós, mindkét része utcai bejáratos, saját utcafronttal rendelkezik.
A szumma telek 890 m2 , tehát lakásonkénti terület : 455 m2 .
Műszaki jellemzői :
- 30 - as POROTHERM NF tégla falazat
- 10 cm grafit szigetelés
- 3 rtg műanyag ablakok, belül fehér, kivül szines tokkal
- gázcirkó fűtés, padló hőleadóval
- beépített hűtő - fűtő klíma
- rejtett redőnytok kialakítás
- napelem csövezés, előkészítés ( a jövőbeni kiépítés során nem kell a házat szétverni )
- utcafronti kerítés kivételével minden kerítés benne van az árban, a két lakás közötti elválasztó is.
- " A " energetikai besorolás
- gépkocsi felhajtó, illetve körben a járda is térkőbel kialakítva .
- 3 % - os hitelre alkalmas
- belső kialakítás, csempék, lamináltak, beltéri ajtók, stb... választhatóak, vevő igénye szerint készül.
Az út jelenleg föld út, de a szerződés alá van írva az önkormányzattal miszerint, 2026 nyárra, ( mire elkészül az ingatlan ) elkészítik a közvilágítással együtt.
Várható átadás : 2026 nyara
Ha felkeltettem az érdeklődését, kérem hívjon bizalommal.

Családi ház részletei

Ár: 115 000 000 Ft
Méret: 108 négyzetméter
Azonosító: 11583030
Telek: 445 négyzetméter
Ingatlan állapota: Kitűnő
Jelleg: ikerház
Építőanyag: Kérdezzen rá a hirdetőtől »
Fűtés jellege: Cirkó
Egész szobák: 4

Egyéb jellemzők

  • Csatorna
  • Garázs
  • Kábel TV
  • Melléképület
  • Parketta
  • Pince
  • Terasz

Hasonló családi ház hirdetések

Eladó családi ház

Debrecen

Debrecen, csendes, kertvárosi területen a Homokkertben, a Vécsey utcában ...

Eladó családi ház

Debrecen

Eladó családi ház, Debrecen egyik kedvelt városrészén, Józsán! Ez ...

Eladó családi ház

Debrecen

Debrecen kedvelt részén, a Hatvan utcai kert csendes, új építésű övezetében, ...

Eladó családi ház

Debrecen, Júliatelep

Debrecen csendes, kertvárosi környezetében, Júliatelepen eladó egy 2000 ...

Hasonló családi ház hirdetések

Eladó családi ház

Debrecen

Debrecen, csendes, kertvárosi területen a Homokkertben, a Vécsey utcában ...

Eladó családi ház

Debrecen

Eladó családi ház, Debrecen egyik kedvelt városrészén, Józsán! Ez ...

Eladó családi ház

Debrecen

Debrecen kedvelt részén, a Hatvan utcai kert csendes, új építésű övezetében, ...

Eladó családi ház

Debrecen, Júliatelep

Debrecen csendes, kertvárosi környezetében, Júliatelepen eladó egy 2000 ...