Eladó családi ház Debrecen 139 900 000 Ft

Leírás

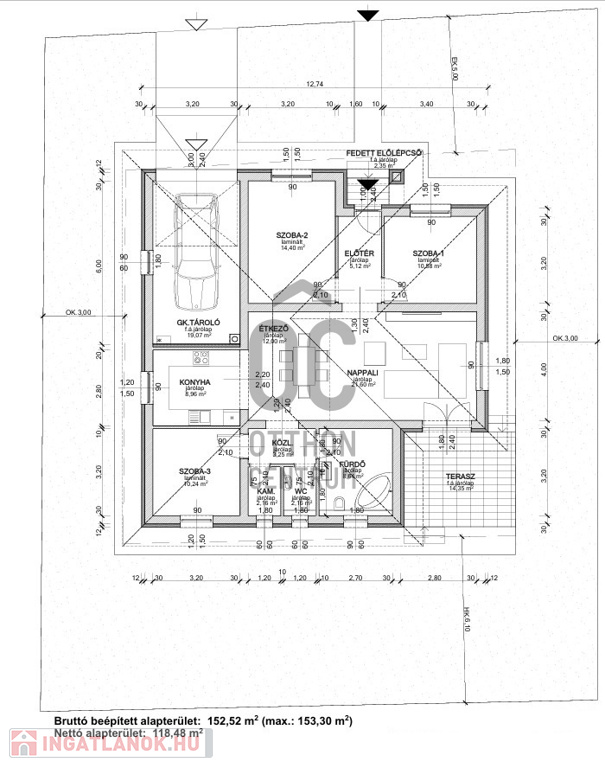
Debrecen Kerekestelep városrészében, csendes, kövezett zsákutcában kínálunk megvételre egy 3 különnyíló szoba + amerikai konyha-nappalis önálló családi házat, 510 m²-es telken, 120 m² hasznos alapterülettel.

Az ingatlan modern műszaki tartalommal és kiváló hőszigeteléssel készül, energiatakarékos megoldásokkal.

Műszaki jellemzők:
-Porotherm 30 tégla
-Padlófűtés minden helyiségben
-A szobákban padlófűtés mellett radiátor is
-Gáz-cirkó fűtés
-3 rétegű hőszigetelt nyílászárók
-12 cm grafitos külső homlokzati szigetelés
-12 cm padlószigetelés
-30 cm födémszigetelés
-Elektromos garázskapu
-Riasztórendszer vezetékelése előkészítve

Az ár tartalmazza:
-2 db klímaberendezés
-Nemesvakolattal ellátott homlokzat
-Térkövezett udvari felületek
-Burkolt terasz

Az ingatlan várhatóan 2026 júniusában készül el, így ideális választás azok számára, akik új építésű, korszerű otthont keresnek nyugodt környezetben.

Bővebb információért vagy megtekintésért keressen bátran!

Családi ház részletei

Ár: 139 900 000 Ft
Méret: 120 négyzetméter
Azonosító: 11593857
Telek: 510 négyzetméter
Ingatlan állapota: Kitűnő
Jelleg: családi ház
Építőanyag: Kérdezzen rá a hirdetőtől »
Fűtés jellege: Cirkó
Egész szobák: 4

Egyéb jellemzők

  • Csatorna
  • Garázs
  • Kábel TV
  • Melléképület
  • Parketta
  • Pince
  • Terasz

Hasonló családi ház hirdetések

Eladó családi ház

Debrecen

Eladó Debrecen közkedvelt városrészén, a Hatvan utcai kertben egy új ...

Eladó családi ház

Debrecen

AKCIÓS ÁR! Eladó Debrecen közkedvelt városrészén, a Hatvan utcai kertben ...

Eladó családi ház

Debrecen

Debrecentől pár perces távolságra, Pallag irányában, új lakópark épül. A ...

Eladó családi ház

Debrecen

Debrecenben, a Lenc-telepen, 6 szoba + nappalis otthon várja új tulajdonosát! ...

Hasonló családi ház hirdetések

Eladó családi ház

Debrecen

Eladó Debrecen közkedvelt városrészén, a Hatvan utcai kertben egy új ...

Eladó családi ház

Debrecen

AKCIÓS ÁR! Eladó Debrecen közkedvelt városrészén, a Hatvan utcai kertben ...

Eladó családi ház

Debrecen

Debrecentől pár perces távolságra, Pallag irányában, új lakópark épül. A ...

Eladó családi ház

Debrecen

Debrecenben, a Lenc-telepen, 6 szoba + nappalis otthon várja új tulajdonosát! ...