Eladó családi ház Debrecen 149 000 000 Ft

Leírás

Józsaközpont Lakópark II. ütemében eladók azonnal költözhető, 184 m2-es, nappali-amerikai konyha + 4 egész szobás, dupla master bedroomos, önálló családi házak!
Projekt leírás
Debrecen-Józsa központjában már megépült, burkolás után azonnal költözhető (burkolatok még választhatók), önálló családi házak eladók, az alábbi paraméterekkel:
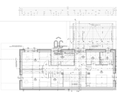
- 184 m2 nettó alapterületben a nappali-amerikai konyha mellett 4 egész szoba került kialakításra úgy, hogy a földszinten és az emeleti részen is helyet kapott egy-egy szülői hálónak megfelelelő, master bedroom kialakítású hálószoba, ahol saját fürdő és gardrób áll rendelkezésre
- a további 2 hálószoba is egész szoba, ezekhez egy 8 m2-es, kényelemes fürdőszoba tartozik
- az ingatlan mindkét szintjén több gardrób szoba és további gardróbszekrény beépítési lehetőséget építettek
- a fűtésről kondenzációs gázkazán gondoskodik, kiváló hatásfokkal, nagyon alacsony rezsivel
- szintenként került beépítésre hűtő-fűtő klíma
- a műanyag nyílászárókon redőny és rovarhálók találhatók
- az 500 m2-es telek körbe van kerítve, a kerítés ára is benne van a vételárban
- a garázson mindkét oldalon hőszigetelt Hörmann garázskapuk vannak, ezért a hátsó kertbe is biztosított az átjárás
- a konyha konyhaszigetes konyhabútornak van előkészítve
- a szeméttároló helye is ki van építve
- kiskapu, nagykapu elkészült, elektromos távirányításhoz elő van készítve
- burkolatválasztást követően 60 napon belül költözhető
- CSOK+ és más támogatás igénybe vehető

Részletes műszaki tartalommal és megtekintéssel kapcsolatban várjuk hívását a hét minden napján!
Projekt bemutatása

Debrecen-Józsa központjában már megépült, burkolás után azonnal költözhető (burkolatok még választhatók), önálló családi házak eladók, az alábbi paraméterekkel:
- 184 m2 nettó alapterületben a nappali-amerikai konyha mellett 4 egész szoba került kialakításra úgy, hogy a földszinten és az emeleti részen is helyet kapott egy-egy szülői hálónak megfelelelő, master bedroom kialakítású hálószoba, ahol saját fürdő és gardrób áll rendelkezésre
- a további 2 hálószoba is egész szoba, ezekhez egy 8 m2-es, kényelemes fürdőszoba tartozik
- az ingatlan mindkét szintjén több gardrób szoba és további gardróbszekrény beépítési lehetőséget építettek
- a fűtésről kondenzációs gázkazán gondoskodik, kiváló hatásfokkal, nagyon alacsony rezsivel
- szintenként került beépítésre hűtő-fűtő klíma
- a műanyag nyílászárókon redőny és rovarhálók találhatók
- az 500 m2-es telek körbe van kerítve, a kerítés ára is benne van a vételárban
- a garázson mindkét oldalon hőszigetelt Hörmann garázskapuk vannak, ezért a hátsó kertbe is biztosított az átjárás
- a konyha konyhaszigetes konyhabútornak van előkészítve
- a szeméttároló helye is ki van építve
- kiskapu, nagykapu elkészült, elektromos távirányításhoz elő van készítve
- burkolatválasztást követően 60 napon belül költözhető
- CSOK+ és más támogatás igénybe vehető

Részletes műszaki tartalommal és megtekintéssel kapcsolatban várjuk hívását a hét minden napján!

Családi ház részletei

Ár: 149 000 000 Ft
Méret: 184 négyzetméter
Azonosító: 11573486
Telek: 500 négyzetméter
Ingatlan állapota: Kitűnő
Jelleg: családi ház
Építőanyag: Kérdezzen rá a hirdetőtől »
Fűtés jellege: Cirkó
Egész szobák: 5

Egyéb jellemzők

  • Csatorna
  • Garázs
  • Kábel TV
  • Melléképület
  • Parketta
  • Pince
  • Terasz

Hasonló családi ház hirdetések

Eladó családi ház

Debrecen

Debrecen-Ajsójózsa, új építésű lakóparkjában,modern építésű 180m2-es ...

Eladó családi ház

Debrecen

Debrecen Szabadság-telep városrészében egy kiváló lehetőségeket rejtő, ...

Eladó családi ház

Debrecen

Ha egy tágas, jól felszerelt és gazdaságosan fenntartható otthont keresel ...

Eladó családi ház

Debrecen

Debrecentől pár perces távolságra, Pallag irányában, új lakópark épül. A ...

Hasonló családi ház hirdetések

Eladó családi ház

Debrecen

Debrecen-Ajsójózsa, új építésű lakóparkjában,modern építésű 180m2-es ...

Eladó családi ház

Debrecen

Debrecen Szabadság-telep városrészében egy kiváló lehetőségeket rejtő, ...

Eladó családi ház

Debrecen

Ha egy tágas, jól felszerelt és gazdaságosan fenntartható otthont keresel ...

Eladó családi ház

Debrecen

Debrecentől pár perces távolságra, Pallag irányában, új lakópark épül. A ...