Eladó családi ház Debrecen, Tizenháromváros, 185 000 000 Ft

Leírás

Befektetői ingatlan!

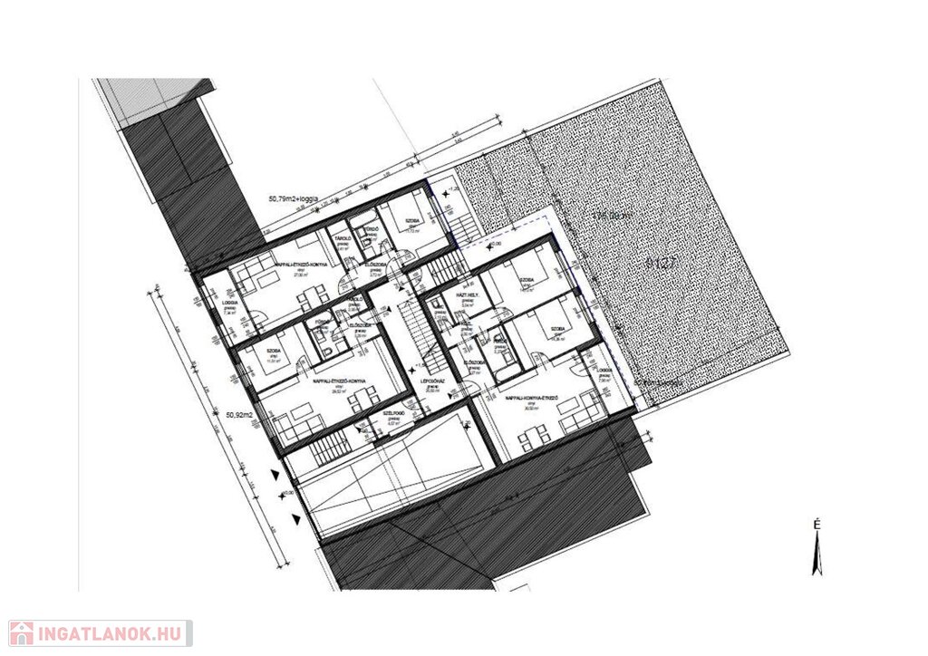
8 lakásos lakóingatlan építésére alkalmas 535 m2 terület Debrecenben a külső vásártéren.
Az új építéssel kapcsolatban az ingatlan engedélyezett tervvel rendelkezik.

Jelenleg az ingatlan több egységből álló, összesen 180 nm alapterületű, felújítandó épület együttes.
Az utcafront szélessége 17 m. Zárt sorú beépítési módban épült, széles kapubejáróján biztosított az udvari beállási lehetőség.
A főépület alapterülete 100 nm, belmagassága 3,4 m szinte teljesen alápincézett, 80 nm szuterénrésszel rendelkezik.
4 kis alapterületű udvari egysége garázsként, műhelyként, irodaként, tárolóként kiválóan hasznosítható.

Az főépület pillanatnyilag üzleti célú felhasználásra kialakított terekkel rendelkezik, a válaszfalak eltávolításával kényelmes 3 szoba + 1 légterű nappali +étkező+konyha lehetőségét kínálja.
Nagyjából 300 nm egybefüggő, kellemesen elszeparált, jól használható udvar áll rendelkezésre családi, lakhatási célú hasznosítás esetén pihenésre, kikapcsolódásra, üzleti célú hasznosítás esetén tárolásra, kerthelyiség kialakítására.

Rendezett tulajdoni viszonyokkal, azonnal birtokba vehető.
Felújítandó vagy (és)Bontandó. Szabályozás szerint 60 %-ban beépíthető, legnagyobb beépítési magasság 9,5 m.

Ha Önnek vonzó lehetőségnek tűnik ez a sorház, keressen engem bizalommal elérhetőségeim bármelyikén.
Elérhetőség: 30/339-1481

Családi ház részletei

Ár: 185 000 000 Ft
Méret: 190 négyzetméter
Azonosító: 11427572
Városrész: Tizenháromváros
Telek: 535 négyzetméter
Összesített energetikai besorolás: G
Ingatlan állapota: Felújítandó
Jelleg: családi ház
Építőanyag: Tégla
Fűtés jellege: Konvektoros
Fűtés módja: Gáz
Komfort fokozat: Komfort
Szintek száma: Földszintes
Egész szobák: 3
Nappalik: 1

Egyéb jellemzők

  • Csatorna
  • Pince

Térkép

Hasonló családi ház hirdetések

Eladó családi ház

Debrecen

Kiváló adottságokkal rendelkező, új házat kínálunk eladásra Debrecen ...

Eladó családi ház

Debrecen

Debrecenben, a kedvelt Csapókert városrészben eladó egy 2004-ben épült, ...

Eladó családi ház

Debrecen

Debrecen-Alsójózsán, a Kiserdő utcai játszótér közelében, földszintes, ...

Eladó családi ház

Debrecen

???? ÚJ ÉPÍTÉSŰ, MODERN, 4 SZOBA + DUPLA GARÁZSOS CSALÁDI HÁZ DEBRECEN ...

Hasonló családi ház hirdetések

Eladó családi ház

Debrecen

Kiváló adottságokkal rendelkező, új házat kínálunk eladásra Debrecen ...

Eladó családi ház

Debrecen

Debrecenben, a kedvelt Csapókert városrészben eladó egy 2004-ben épült, ...

Eladó családi ház

Debrecen

Debrecen-Alsójózsán, a Kiserdő utcai játszótér közelében, földszintes, ...

Eladó családi ház

Debrecen

???? ÚJ ÉPÍTÉSŰ, MODERN, 4 SZOBA + DUPLA GARÁZSOS CSALÁDI HÁZ DEBRECEN ...