Eladó családi ház Debrecen 192 000 000 Ft

Leírás

Debrecentől pár perces távolságra, Pallag irányában, új lakópark épül.
A Nagyerdő közvetlen szomszédságában, nyolcholdas területen, 32 családnak nyújt otthont a lakópark.
A telkek nagysága és elhelyezkedése lehetővé teszi, hogy olyan ingatlanok épüljenek, melyek elsődleges célja:
- természetközeliség
- intimitás
- exkluzivitás
- egyediség
- zárt közösség.
A teljesen közművesített telkeket térkövezett belső útról lehet megközelíteni.
Fekvésének köszönhetően további építkezés a lakóparkon túl nem lesz, ezért nem kell tartania a túlzsúfolt lakókörnyezettől.
Pallagon a pár éve működő Nemzetközi Iskola, óvoda, középiskola lehetőséget nyújt gyermekei számára a tanulás és sport igényeinek.

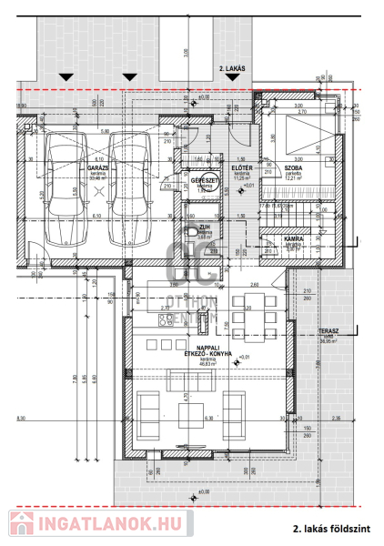
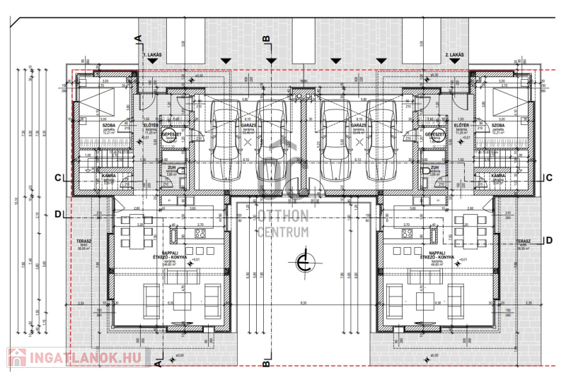
Az ikerházak 2.lakása: 190nm alapterületű, nappali + 4 szobás, 600 nm-es telekrésszel.

Földszint:
- nappali étkezőkonyha kialakítással és kamrával (50 nm) KONYHABÚTORRAL gépek nélkül
- dolgozószoba (12 nm)
- zuhanyzó mosdóval (4 nm)
- gépészet
- dupla gépkocsi beállású garázs (34 nm)
- terasz (40 nm)

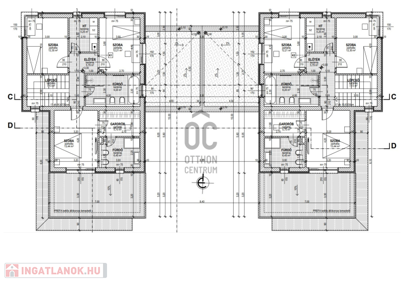
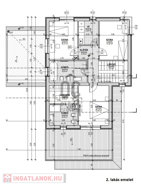
Emelet:
- 3 hálószoba
- 2 fürdőszoba
- gardrób
- mosókonyha
- tetőterasz.

Átadás: 2025. február

Illetékmentesség, CSOK-kal kapcsolatos és bankfüggetlen hitelügyintézést banki kollégánk teljeskörűen és ingyen bonyolítja Önnek irodánkban, da akár otthonában is!

Családi ház részletei

Ár: 192 000 000 Ft
Méret: 191 négyzetméter
Azonosító: 10865314
Erkély mérete: 63.00 négyzetméter
Telek: 600 négyzetméter
Ingatlan állapota: Kitűnő
Jelleg: ikerház
Építőanyag: Kérdezzen rá a hirdetőtől »
Fűtés jellege: Cirkó
Egész szobák: 5

Egyéb jellemzők

  • Csatorna
  • Garázs
  • Kábel TV
  • Melléképület
  • Parketta
  • Pince
  • Terasz

Hasonló családi ház hirdetések

Eladó családi ház

Debrecen

Kiváló adottságokkal rendelkező, új házat kínálunk eladásra Debrecen ...

Eladó családi ház

Debrecen

Debrecen Csapó utca közelében, jól szeparált, lakóegység és irodahelyiség ...

Eladó családi ház

Debrecen, Belváros

DEBRECEN BELVÁROS, CSENDES UTCÁJÁBAN ÚJÉPÍTÉSŰ 170M2-ES LUXUS IKERHÁZ, ...

Eladó családi ház

Debrecen

Debrecenben, a kedvelt Csapókert városrészben eladó egy 2004-ben épült, ...

Hasonló családi ház hirdetések

Eladó családi ház

Debrecen

Kiváló adottságokkal rendelkező, új házat kínálunk eladásra Debrecen ...

Eladó családi ház

Debrecen

Debrecen Csapó utca közelében, jól szeparált, lakóegység és irodahelyiség ...

Eladó családi ház

Debrecen, Belváros

DEBRECEN BELVÁROS, CSENDES UTCÁJÁBAN ÚJÉPÍTÉSŰ 170M2-ES LUXUS IKERHÁZ, ...

Eladó családi ház

Debrecen

Debrecenben, a kedvelt Csapókert városrészben eladó egy 2004-ben épült, ...