Eladó családi ház Debrecen 194 900 000 Ft

Leírás

Gyönyörű pallagi ház jó környéken eladó!

Volt már veled úgy, hogy ránéztél egy házra és elkapott az érzés, mintha épp Hamupipőke üvegcipőjét találtad volna meg? Ez a ház pont ilyen! Csak szerencsére nem változik át éjfélkor.

Ez az új állapotú kertes családi ház az öko lakóparkban található.
- 2021-ben épült
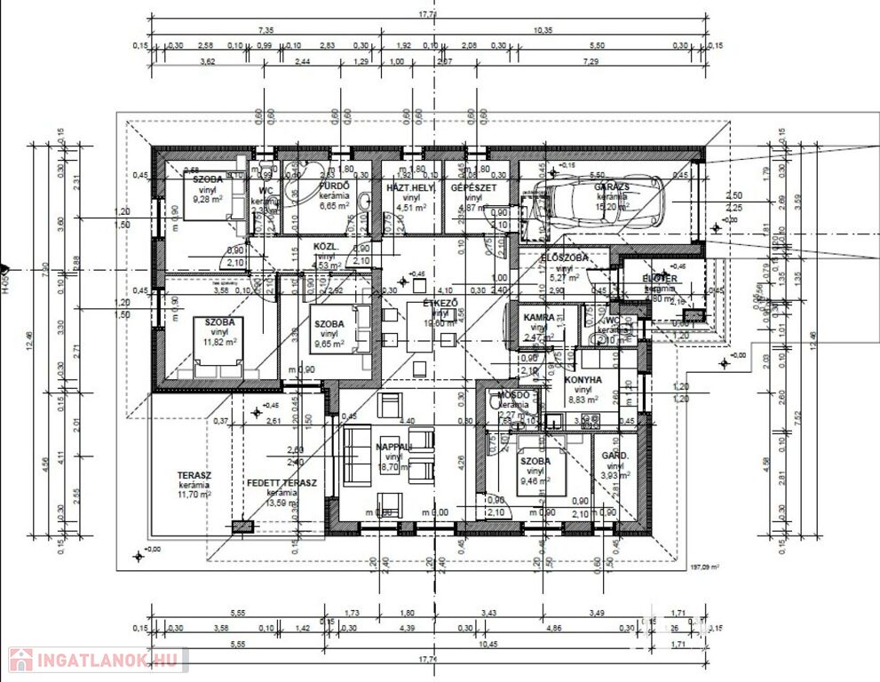
- 171 m² nettó terület teraszokkal együtt, a lakótér 141 m² garázzsal , a telek 871 m²
- 1 szintes, 4 szoba és 1 nappali, 1 nagy étkező
- 2 külön WC és 2 fürdőszoba, mindkettőben zuhanyzó található, az egyikben 2személyes kád
- mosókonyha, gardrób
- fűtés elektromos kazánnal
- 15cm szigetelés
- hátul egy fedett terasz
- garázs egy autónak, plusz kocsibeálló előtte
- 2 klíma
- vízlágyító rendszer --- nem vízkövesedik a berendezés
- játszótér a gyerekeknek
- melléképület alapozása kész, mobil szerszámos is van
- öntöző rendszer locsolási mellékmérővel
- elektromos redőnyök, szúnyogháló
- riasztóval felszerelt
A környék nyugodt, családbarát, ugyanakkor Debrecen könnyen elérhető, így a mindennapi ügyintézés és bevásárlás is kényelmes.
A berendezés opcionálisan megvásárolható, ha megtetszett az enteriőr.


Gyere, nézd meg személyesen is, érdemes!
Külső képekért és további információkért, megtekintésért keress bizalommal!
FÁBIÁN GYÖNGYI
+36 20 2693135
Ingatlanértékesítő
Városi Ingatlaniroda
Debrecen
(További képekért és információkért kérem hívjon!)

Családi ház részletei

Ár: 194 900 000 Ft
Méret: 141 négyzetméter
Azonosító: 11604948
Irodai azonosító: 684254
Telek: 871 négyzetméter
Ingatlan állapota: Kitűnő
Jelleg: családi ház
Építőanyag: Tégla
Fűtés jellege: Cirkó
Egész szobák: 5
Nappalik: 1

Egyéb jellemzők

  • Beépíthető tetőtér
  • Csatorna
  • Garázs
  • Melléképület
  • Pince
  • Terasz

Hasonló családi ház hirdetések

Eladó családi ház

Debrecen

Debrecen Óvárosi részén, teljeskörűen felújított, több generáció ...

Eladó családi ház

Debrecen

Debrecen-Alsójózsán, a Kiserdő utcai játszótér közelében, földszintes, ...

Eladó családi ház

Debrecen

ÚJ ÉPÍTÉSŰ, MODERN, 4 SZOBA + DUPLA GARÁZSOS CSALÁDI HÁZ DEBRECEN ALSÓ ...

Eladó családi ház

Debrecen, Belváros

PRÉMIUM BELVÁROSI ÉLETTÉR – LUXUS IKERHÁZ DEBRECENBEN! Debrecen egyik ...

Hasonló családi ház hirdetések

Eladó családi ház

Debrecen

Debrecen Óvárosi részén, teljeskörűen felújított, több generáció ...

Eladó családi ház

Debrecen

Debrecen-Alsójózsán, a Kiserdő utcai játszótér közelében, földszintes, ...

Eladó családi ház

Debrecen

ÚJ ÉPÍTÉSŰ, MODERN, 4 SZOBA + DUPLA GARÁZSOS CSALÁDI HÁZ DEBRECEN ALSÓ ...

Eladó családi ház

Debrecen, Belváros

PRÉMIUM BELVÁROSI ÉLETTÉR – LUXUS IKERHÁZ DEBRECENBEN! Debrecen egyik ...