Eladó családi ház Debrecen 198 900 000 Ft

Leírás

AKCIÓ! 41 MILLIÓ ÁRENGEDMÉNY!

Debrecen Óvárosi részén a Senyei-Oláh István utcán eladó egy teljes körűen felújított két generációs ingatlan.

Ára: 198.900.000 Ft
(régi ár: 239.900.000 Ft).

Nézze meg videónkat is: https://youtu.be/g5UW51_HNnM

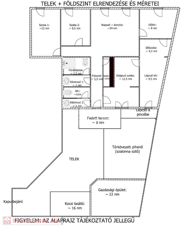
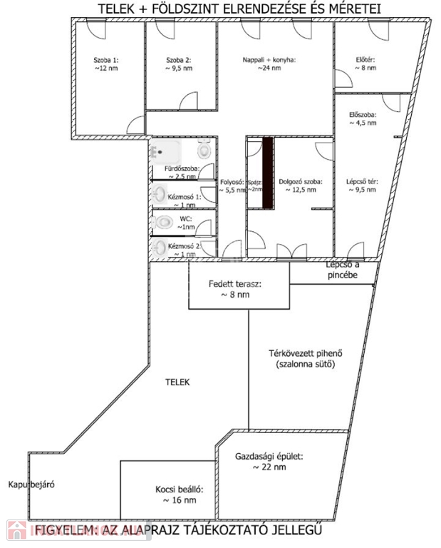
Az ingatlan alap méretei:
- a telek mérete: 250 nm,
- az ingatlan méretei: 91nm+92nm+95nm= 278 nm.

Az épület hasznos alapterülete 183 nm melyben található:
- Földszinten: előtér, mosdó+WC, fürdőszoba, folyosó, spájz, nappali-konyha-étkező, 2 szoba, dolgozó szoba, előszoba, lépcső tér.
- Emeleten: előtér, mosókonyha, spájz, 2 fürdőszoba, mosdó, közlekedő, nappali-konyha-étkező, 2 szoba, lépcső tér.
- Található még a telken egy fedett terasz, egy fedett kocsi beálló, egy teljes körűen berendezett gazdasági épület, egy pihenő+ sütő-főző tér.
- Továbbá a ház alatt található egy 8 helységből álló mindennel felszerelt pince hálózat.

Ez egy teljeskörűen felújított ingatlan. Sőt annyira friss, hogy egyes felújítási fázisok még most is zajlank, igy akár még kisebb igényeinket most is jelezhetjük. Itt minden modern anyagokból lett/ lesz felújítva, igy egy olyan ingatlant kapunk amire már nem kell költeni.

A régi földszintes épület a 2000 évek elején kapott egy emeletet, majd végül most 2025-ben minden pontja felújításon esett át. 40 és 50 cm-es tégla falazatból áll az épület, amely kapott egy 10 cm-es szigetelést + a földszinten még kapott egy hang gátló gipszkarton réteget.

A tető is teljesen megújult és új beton cserepekkel látták el. A földszinten új műanyag nyílászárók, míg az emeleten új fa nyílászárók lettek be építve, melyeket hő védő rolókkal láttak el. Gyönyörű és impozáns terekkel felújított lépcső és lépcső fordulok teszik még igényesebbé a házat.

Az egész házban gázcirkó látja el a fűtést, de a felújítás során az összes fűtőtest le lett cserélve modernebbre, ezek mellett pedig több hűtő-fűtő klíma is rendelkezésünkre áll. A ház kényelmét szolgálja még a praktikus vízlágyító készülék is. Ami még jobbá teszi a házat az pedig a jó minőségű, jól felszerelt és szép bútorzat, amely természetesen része az árnak. Az emeleten ki lett alakítva egy napos, szép kis erkély is számunkra.

A ház méretéből és kialakításából adódóan, akár több generáció számára is alkalmas lehet. Vállalkozok számára is remek lehetőség, ugyanis a méretek és helységek számából adódóan, akár kiadásra is lehetőség van, ami a belváros közelsége miatt (a Fórum pár perc sétára) igen nagy lehetőség. Ehhez segítségünkre van a kiváló tömegközlekedés is, illetve az Egyetemek közelsége.    

A ház mellett van még a telken egy jól felszerelt és minden közművel ellátott gazdasági épület, így természetesen fűtés is és külön bojler is megtalálható benne a sok bútor mellett. Található még a telken egy fedett kocsi beálló, de természetesen az udvaron még további autóknak is van hely.

A telken még ki lett alakítva egy sütő + pihenő övezet is egy térkövezett részen. A hátsó bejáratnál található egy szép fából kialakított fedett terasz is. Ha ez még nem lenne elég, akkor a ház alatt húzódik egy légbefúvó rendszerrel ellátott 8 helységből álló pince hálózat, ami akár vállalkozásnak is meg felel, mint ahogy jelenleg is használatban van.

Figyelem!
Most jön a ráadás, mindezek mellett az ingatlant egy több 10 milliót termelő vállalkozással együtt kaphatja meg! Jelenleg az épületben egy jól menő, gazdaságos és régi vállalkozás található (Intézmény higiénia és megtakarításokkal foglalkozó vállalkozás), amely az eladási ár részét képezi.

Foglaljuk össze:
- van itt egy teljes körűen és igényesen felújított belvároshoz közeli ház az óváros szívében,
- van itt egy akár több generáció számára is elegendő épület,
- van itt egy jól menő vállalkozás, és
- van itt egy sok plusz egységgel ellátott telek.

Ez egy kihagyhatatlan lehetőség!    

Fontos!
Az ingatlan per és tehermentes, rövid időn belül beköltözhető, 3 gyerekes CSOK Pluszra is alkalmas!

Ha felkeltette érdeklődését, hívja irodánkat bizalommal!
Ha hitelre van szüksége éljen ingyenes, személyre szabott hitel ügyintézési szolgáltatásunkkal is.

Családi ház részletei

Ár: 198 900 000 Ft
Méret: 183 négyzetméter
Azonosító: 11610096
Irodai azonosító: 385054
Cím: Senyei-Oláh István utca
Telek: 250 négyzetméter
Ingatlan állapota: Felújított
Jelleg: sorház
Építőanyag: Tégla
Fűtés jellege: Cirkó
Fűtés módja: Gáz
Komfort fokozat: Összkomfort
Kor: 21-50 éves
Szintek száma: 2 szint
Egész szobák: 6

Egyéb jellemzők

  • Csatorna
  • Garázs
  • Pince
  • Terasz

Térkép

Hasonló családi ház hirdetések

Eladó családi ház

Debrecen

Kiváló adottságokkal rendelkező, új házat kínálunk eladásra Debrecen ...

Eladó családi ház

Debrecen

Debrecen Óvárosi részén, teljeskörűen felújított, több generáció ...

Eladó családi ház

Debrecen

Debrecen-Alsójózsán, a Kiserdő utcai játszótér közelében, földszintes, ...

Eladó családi ház

Debrecen

ÚJ ÉPÍTÉSŰ, MODERN, 4 SZOBA + DUPLA GARÁZSOS CSALÁDI HÁZ DEBRECEN ALSÓ ...

Hasonló családi ház hirdetések

Eladó családi ház

Debrecen

Kiváló adottságokkal rendelkező, új házat kínálunk eladásra Debrecen ...

Eladó családi ház

Debrecen

Debrecen Óvárosi részén, teljeskörűen felújított, több generáció ...

Eladó családi ház

Debrecen

Debrecen-Alsójózsán, a Kiserdő utcai játszótér közelében, földszintes, ...

Eladó családi ház

Debrecen

ÚJ ÉPÍTÉSŰ, MODERN, 4 SZOBA + DUPLA GARÁZSOS CSALÁDI HÁZ DEBRECEN ALSÓ ...