Eladó családi ház Debrecen 208 000 000 Ft

Leírás

Új építésű, földszintes, önálló családi ház, kiemelkedően magas műszaki tartalommal, eladó, ahol a belső tereket még saját elképzelései szerint alakíttathatja ki.

Debrecen- Pallag városrészében, közművesített, közvilágítással ellátott, fásított, gondozott utcában, összetartó közösség várja az új lakókat.
Tervezésnél főszempont volt a kényelmes, praktikus, de mégis elegáns élettér kialakítsa.

A műszaki tartalomból néhány fontos adat:
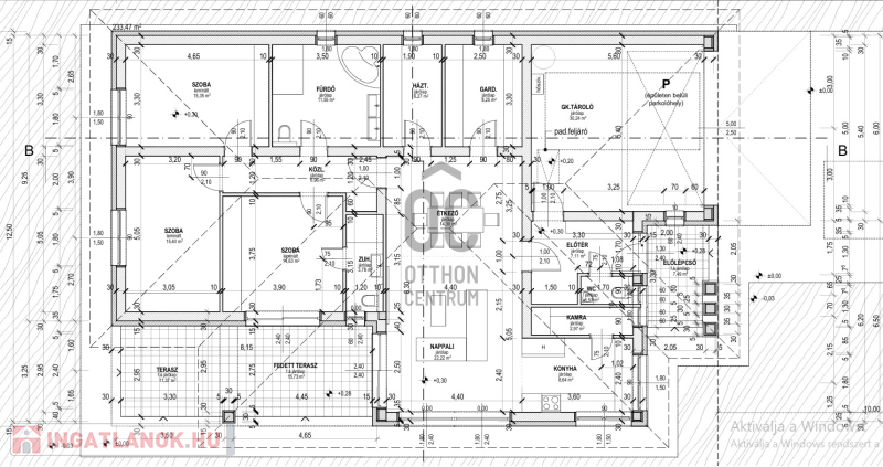
- 934 nm-s telken kapott helyet a nettó 169 nm-s + 27 nm részben fedett terasszal rendelkező otthon
- helyiségei: 45 nm-s terasszal kapcsolatos tágas, világos konyha-étkező -nappali, 3 hálószoba (melyek 15 nm-ek), 2 fürdő szoba, háztartási helyiség, gardrob, kamra, garázs
- teherhordó falak : PTH 30 N+F falazóblokk + 15 cm külső hőszigetelés
- a ház adottságai alapján, optimálisra méretezett, költség hatékony fűtési és hűtési rendszer: padló fűtéssel, mennyezethűtéssel, hőszivattyús rendszerrel.
- nyílászárói: korszerű műanyag szerkezetűek, kívül színezett, fokozott hőszigetelésű, 3 rétegű üveggel, külső belső könyöklők/párkányok kompozit kő borításúak
- árnyékolás: elektromos működtetésű, aluminíum redőny színes, beépített tokkal
- minőségi, stílusos burkolatok, szaniterek és belső ajtók még kiválaszthatóak
- a kivitelés már előre haladott állapotban van
- az ár tartalmazza a beépített lakás szellőztető rendszert és vízlágyító berendezést, a riasztó és kamerarendszer előkészítését, kerítést

A részletes műszaki leírással és a házzal kapcsolatos egyéb információkkal állok szíves rendelkezésére.
Hívjon és egyeztessünk a részletekről!
Tervezett átadás: 2026 tavasz.

Bankfüggetlen hitelügyintézést banki kollégánk teljes körűen és ingyen bonyolítja Önnek irodánkban, da akár otthonában is!







Debrecen, Pallag, Barackvirág, családi ház, kert, eladó, telek, 4szoba, új, zöld,

Családi ház részletei

Ár: 208 000 000 Ft
Méret: 169 négyzetméter
Azonosító: 11578200
Telek: 934 négyzetméter
Ingatlan állapota: Kitűnő
Jelleg: családi ház
Építőanyag: Kérdezzen rá a hirdetőtől »
Egész szobák: 4

Egyéb jellemzők

  • Csatorna
  • Garázs
  • Kábel TV
  • Melléképület
  • Parketta
  • Pince
  • Terasz

Hasonló családi ház hirdetések

Eladó családi ház

Debrecen

Debrecen Csapó utca közelében, jól szeparált, lakóegység és irodahelyiség ...

Eladó családi ház

Debrecen, Belváros

DEBRECEN BELVÁROS, CSENDES UTCÁJÁBAN ÚJÉPÍTÉSŰ 170M2-ES LUXUS IKERHÁZ, ...

Eladó családi ház

Debrecen

Debrecen-Alsójózsán, a Kiserdő utcai játszótér közelében, földszintes, ...

Eladó családi ház

Debrecen, Belváros

Debrecen belvárosában – csendes utcában – 90%-os készültségű, 170 ...

Hasonló családi ház hirdetések

Eladó családi ház

Debrecen

Debrecen Csapó utca közelében, jól szeparált, lakóegység és irodahelyiség ...

Eladó családi ház

Debrecen, Belváros

DEBRECEN BELVÁROS, CSENDES UTCÁJÁBAN ÚJÉPÍTÉSŰ 170M2-ES LUXUS IKERHÁZ, ...

Eladó családi ház

Debrecen

Debrecen-Alsójózsán, a Kiserdő utcai játszótér közelében, földszintes, ...

Eladó családi ház

Debrecen, Belváros

Debrecen belvárosában – csendes utcában – 90%-os készültségű, 170 ...