Eladó családi ház Debrecen 295 000 000 Ft

Leírás

Debrecen egyik legkedveltebb, csendes és zöldövezeti részén, a Csapókertben, közvetlenül a Liget tér szomszédságában kínálunk eladásra egy 2019-ben épült, prémium felszereltségű ingatlant.

Főbb paraméterek:
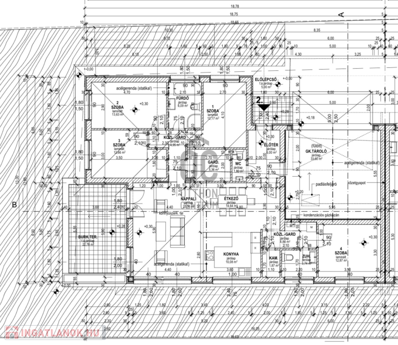
-Telek területe: 820 m²
-Lakóterület: ~200 m²
-Szobák: 4 tágas hálószoba
-Nappali + amerikai konyha: 50 m², elegáns és világos központi tér
-Fürdőszobák: 2 db
-Illemhelyek: összesen 4 db (külön vendég-WC + udvari toalett)
-Gardrób és kamra a maximális praktikumért
-Dupla garázs: 33 m², elektromos autó fali töltővel, teljes falhosszon beépített szekrényekkel
-Üvegterasz: 20 m², négy évszakos használatra kialakítva

Luxus és kényelem:
-Padlófűtés az egész házban
-Okos árnyékolástechnika
-Riasztó- és kamerarendszer
-15 cm grafitos szigetelés
-10 kW napelem rendszer
-Szülői hálóban infra szauna
-Dolby atmos házimozirendszer+ motoros vetítővászon

Kültéri élmények:
-7,5 méteres, hőszivattyúról hűtött-fűtött medence
-Teraszon jakuzzi a tökéletes kikapcsolódásért
-Telepített robotfűnyíró és automata öntözőrendszer, mely fúrt kútról és városi vízről is üzemeltethető
- 13 méter hosszú filagória, mosogatóval, mosogatógéppel, hűtővel, borhűtővel és toalettel
- hatalmas kutyakennel a házikedvenceknek
- játszótér a legkisebbeknek

Ez az ingatlan tökéletes választás mindazoknak, akik a belváros közelsége mellett, modern, energiatakarékos és minden igényt kielégítő otthont keresnek. A tágas terek, a magas minőségű kivitelezés, valamint a kültéri wellness szolgáltatások garantálják a maximális kényelmet.
Kérdés, időpont egyeztetés esetén várom hívását!

Családi ház részletei

Ár: 295 000 000 Ft
Méret: 200 négyzetméter
Azonosító: 11565180
Telek: 820 négyzetméter
Ingatlan állapota: Kitűnő
Jelleg: ikerház
Építőanyag: Kérdezzen rá a hirdetőtől »
Fűtés jellege: Cirkó
Egész szobák: 5

Egyéb jellemzők

  • Csatorna
  • Garázs
  • Kábel TV
  • Melléképület
  • Parketta
  • Pince
  • Terasz

Hasonló családi ház hirdetések

Eladó családi ház

Debrecen

Minden szempontból remek lehetőség ez a több generáció számára is alkalmas ...

Eladó családi ház

Debrecen

Fancsika víztározók szomszédságában eladóvá vált egy közel 6 hektáros ...

Eladó családi ház

Debrecen, Belváros

Eladó sokoldalúan hasznosítható ingatlan Debrecen belvárosában! Debrecen ...

Eladó családi ház

Debrecen, Kertváros

Elhelyezkedését tekintve igazi unikum a piacon! Eladó Debrecen luxus kertvárosi ...

Hasonló családi ház hirdetések

Eladó családi ház

Debrecen

Minden szempontból remek lehetőség ez a több generáció számára is alkalmas ...

Eladó családi ház

Debrecen

Fancsika víztározók szomszédságában eladóvá vált egy közel 6 hektáros ...

Eladó családi ház

Debrecen, Belváros

Eladó sokoldalúan hasznosítható ingatlan Debrecen belvárosában! Debrecen ...

Eladó családi ház

Debrecen, Kertváros

Elhelyezkedését tekintve igazi unikum a piacon! Eladó Debrecen luxus kertvárosi ...