Eladó családi ház Debrecen 62 000 000 Ft

Leírás

Elhelyezkedés: Debrecen, Bánk Fogoly utca
Ingatlan típusa: Szabadon álló családi ház
Építési technológia: Fém-könnyűszerkezetes, modern
Energetikai besorolás: A+
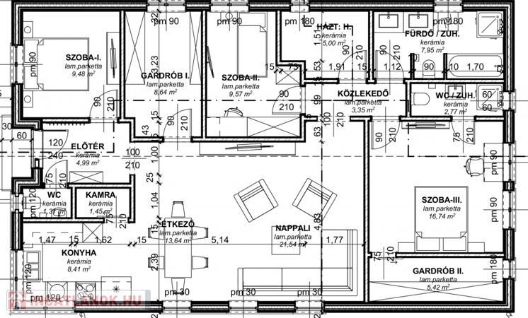
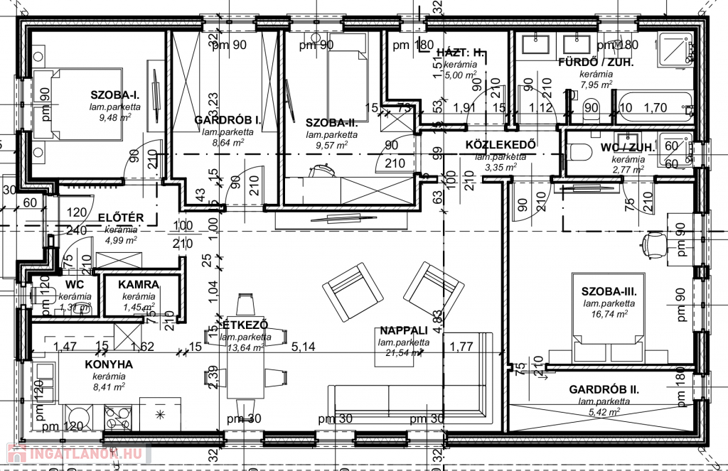
Bruttó alapterület: 100 m²
Fűtés/hűtés: Légkondicionáló (klíma)

Elrendezés:

- Nappali

- Amerikai konyha

- Kamra

- 3 db hálószoba

- 1 db fürdőszoba (kád/zuhany + 2 WC)

- 1 db külön WC/mosóhelyiség

Műszaki jellemzők részletesen:

- Beton síkalap, zsalukő lábazat, szerelőbeton

- Bitumenes szigetelő lemez + 2 cm lépésálló XPS szigetelés

- Falazat egyedi acélvázas szerkezet

- Külső fal: 10 cm szendvicspanel + 5 cm PS szigetelés + 1,5 mm nemesvakolat

- Belső burkolat: Gipszkarton

- Födém & Mennyezet: Gipszkarton mennyezet

- Párazáró fólia + szálas hőszigetelés (kőzetgyapot)

- Tetőszerkezet & Fedés: Vasszerkezet, Cserepes lemezfedés (speciális anti-kondenzációs filc bevonattal), Páraáteresztő fólia

- Nyílászárók: 3 rétegű, 7 légkamrás, argon gázzal töltött műanyag ablakok és ajtók

- Épületgépészet: 2 db Gree márkájú, egyenként 3.5 kW teljesítményű klímaegység, 1 db villanybojler

- Burkolatok (keretösszegek az áron belül)
A vevő a kínált keretösszegen belül választhat anyagot. A kiválasztott anyag beszerzése, szállítása és beépítése az árban benne van.

- Szániterek (mosdók, WC): 200 000 Ft-ig

- Járólapok: 350 000 Ft-ig

- Csempék: 250 000 Ft-ig

- Laminált padló (lakótér): 200 000 Ft-ig

- Teraszburkolat: 100 000 Ft-ig

A hirdetés adatai tájékoztatók, nem minősülnek szerződéses kötelezettségvállalásnak.
További információért hívjon bizalommal, akár hétvégén is. Megtekintésre telefonos egyeztetés alapján van lehetőség. (06 30 9536 051)
További ingatlankinálatunkat megtekintheti a WWW.TELEINGATLAN.HU weboldalunkon.

Referencia szám: A20260128

Családi ház részletei

Ár: 62 000 000 Ft
Méret: 100 négyzetméter
Azonosító: 11595639
Irodai azonosító: A20260128-5134354
Telek: 780 négyzetméter
Összesített energetikai besorolás: A+
Ingatlan állapota: Épülő
Jelleg: családi ház
Építőanyag: Könnyűszerkezetes
Fűtés jellege: Villany
Fűtés módja: Villany
Komfort fokozat: Összkomfort
Kor: Új építésű
Szintek száma: Földszintes
Egész szobák: 3

Egyéb jellemzők

  • Garázs

Térkép

Hasonló családi ház hirdetések

Eladó családi ház

Debrecen

Debrecen kedvelt Biharikert részén eladó egy 112 nm-es, rendezett, önálló ...

Eladó családi ház

Debrecen

Debrecen Óvárosában, az Árpád téren egy 220 m2-es telekterületen lévő, ...

Eladó családi ház

Debrecen

Eladó Debrecen egyik legfelkapottabb környékén, Mesterfalva városrészben ...

Eladó családi ház

Debrecen

Debrecen egyik legkedveltebb részén, a Szabadság-telepen, stabil szerkezetű, ...

Hasonló családi ház hirdetések

Eladó családi ház

Debrecen

Debrecen kedvelt Biharikert részén eladó egy 112 nm-es, rendezett, önálló ...

Eladó családi ház

Debrecen

Debrecen Óvárosában, az Árpád téren egy 220 m2-es telekterületen lévő, ...

Eladó családi ház

Debrecen

Eladó Debrecen egyik legfelkapottabb környékén, Mesterfalva városrészben ...

Eladó családi ház

Debrecen

Debrecen egyik legkedveltebb részén, a Szabadság-telepen, stabil szerkezetű, ...