Eladó családi ház Decs 22 900 000 Ft

Leírás

A Tolna vármegye szívében, Decs városában található, Rákóczi utcai ingatlanunk tökéletes választás lehet Önnek, ha a csendes, mégis jól megközelíthető környezetet keresi.
Az ingatlan használt, de korához képest jó állapotának köszönhetően rengeteg lehetőséget rejt magában.
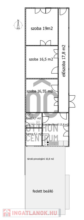
A ház alapterülete 94 négyzetméter, amely három tágas szobát foglal magában, így ideális családok számára is.
A fürdőszoba egybenyitott, zuhanyzós, ami kényelmes használatot biztosít.
A telek mérete 701 négyzetméter, így bőven van hely a kertészkedésre vagy akár egy kis pihenőhely kialakítására is.
Az ingatlan fűtése gázkonvektorral történik, ami gazdaságos fűtési megoldást nyújt a hideg hónapokban.
A tágas szobák és a világos terek barátságossá teszik a házat.
A konyha nagyobb családok számára is megfelelő méretű.
A tető cseréppel fedett.
A ház mögötti tárolóból jó állapotú és méretű pince nyílik.
A fedett autóbeálló igazán tágas.
Az ólak is megvannak, ha valaki állatokat tartana.
Az ingatlan Falusi CSOK kompatibilis, így ideális választás lehet fiatal családok számára, akik szeretnék kihasználni a támogatási lehetőségeket.
Decs városa nemcsak a természet közelségét kínálja, hanem a környék ellátottsága is kiváló.
A közeli boltok, iskolák és egészségügyi intézmények mind könnyen elérhetők, így a mindennapi élet kényelmesen zajlik.
A közlekedési lehetőségek is kedvezőek, hiszen a település jól kapcsolódik a környező városokhoz, autóval és tömegközlekedéssel egyaránt.
A csendes utcák és a barátságos szomszédság garantálja a nyugodt életvitel lehetőségét.

Ha Ön olyan ingatlant keres, amely nemcsak otthont, hanem értéknövelő befektetést is jelent, akkor ez a ház remek választás lehet. Bízzon meg bennünket, és ne habozzon kérdésekkel keresni, hiszen célunk, hogy a legjobb döntést hozhassa meg az ingatlanvásárlás során. Az ingatlanpiac folyamatosan változik, és mi itt vagyunk, hogy Önnek segítsünk a legjobb lehetőségek megtalálásában.
Időpontért keressen bátran!

Kedves Ügyfelünk, az ingatlanról videót is készítettünk. Ha ezt a hirdetést az Otthon Centrum weboldalán nézi, akkor a videóra a képek után tud kattintani. Ha egy másik weboldalon találta ezt a hirdetést, kérem nyissa meg az Otthon Centrum weboldalát, kattintson a „Regisztrációs szám keresése” menüpontra, és írja be ezt a regisztrációs számot a keresőbe: H507998 Itt meg tudja tekinteni az ingatlanról készült videót. Vagy írjon nekem, és szívesen elküldöm a videót.

Ha a vásárláshoz hitelre van szüksége, kollégánk ingyenes, bankfüggetlen pénzügyi szolgáltatással áll rendelkezésre!

családi ház vegyes jó állapot 3 szoba nagy kert gázfűtés OC H507998

Családi ház részletei

Ár: 22 900 000 Ft
Méret: 94 négyzetméter
Azonosító: 11573282
Telek: 701 négyzetméter
Ingatlan állapota: Átlagos
Jelleg: családi ház
Építőanyag: Kérdezzen rá a hirdetőtől »
Fűtés jellege: Konvektoros
Egész szobák: 3

Egyéb jellemzők

  • Csatorna
  • Garázs
  • Kábel TV
  • Melléképület
  • Parketta
  • Pince
  • Terasz