Eladó családi ház Diósd 134 900 000 Ft

Leírás

DIÓSD Sashegyi részén, új építésű ingatlanok környezetben lévő, kettő db kétszintes, 124,6 m2 -es alapterülettel rendelkező (113,4 m2 hasznos), 3 szoba + nappali + 2 fürdőszobás ikerház, hőszivattyúval, GARÁZZSAL és terasszal készült ÚJ ÉPÍTÉSŰ IKERHÁZAT kínálunk megvételre.

Az ingatlan egy 758 m2-es telekre került megépítésre.

MINDKÉT LAKÓHÁZ ALAPRAJZA, KIVITELEZÉSE, MŰSZAKI TARTALMA AZONOS!
A lakóházak egymástól elkerítve, külön bejárattal kerültek kialakításra.

Az utcafronti, előkertes ikerházfél (1. számú lakóház) 372 m2-es telekrészen épült, elkerítve a hátsó féltől, garázzsal.

AZ 1. SZÁMÚ LAKÓHÁZ KULCSRAKÉSZ ÁRA : 134,9 millió Ft.

A hátsó ikerházfélhez ( 2.számú lakás) 386 m2-es telekrész tartozik, elkerített kertrésszel, külön bejárattal, garázzsal.

A lakóházakban lévő mindkét garázs térkövezett szolgalmi úton érhető el.

2. SZÁMÚ LAKÓHÁZ KULCSRAKÉSZ ÁRA: 139,9 millió Ft

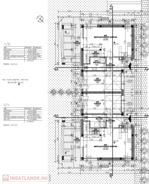
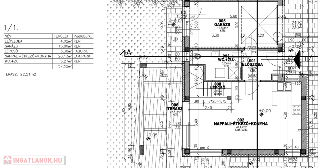
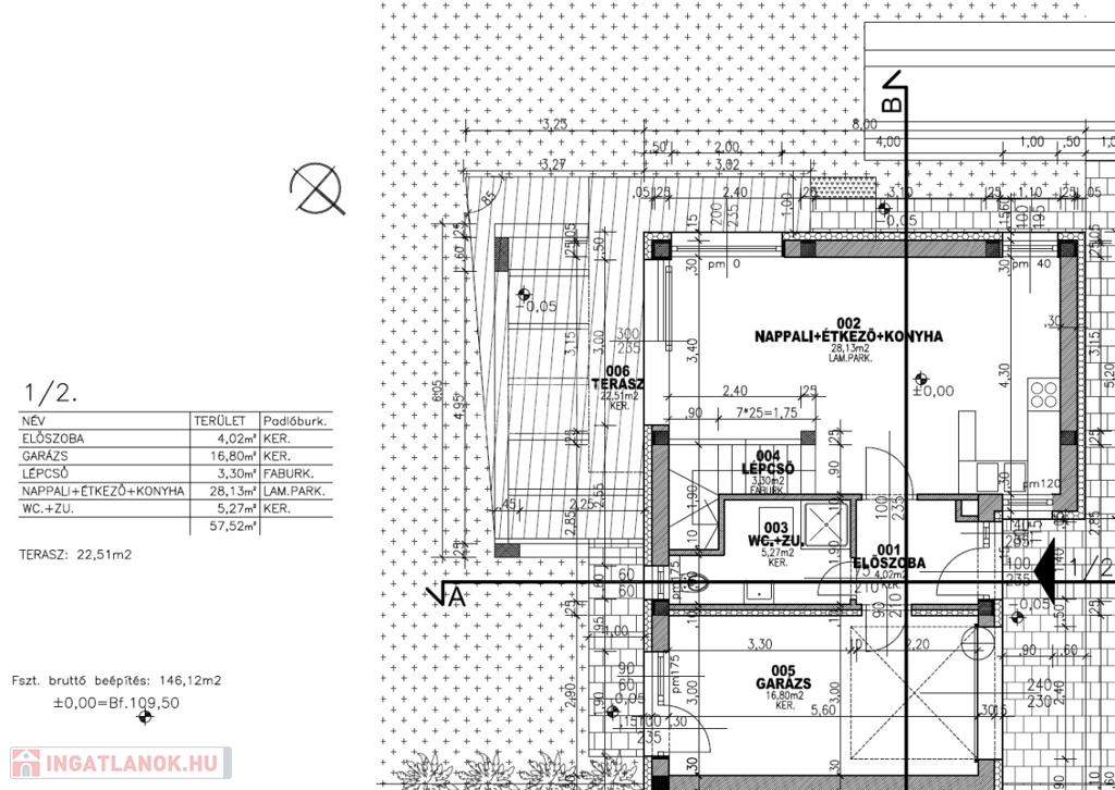
A tervezés szerint a lakóházak FÖLDSZINTJÉN :
előszoba 4 m2, nappali-étkező+ konyha 28 m2, zuhanyozó +WC (5,27 m2), emeletre vezető lépcsőtér 3,3 m2, garázs 17,4 m2, plusz egy 22,5 m2-es terasz került kialakításra.

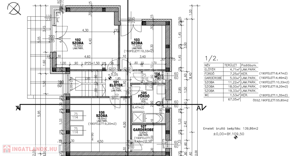
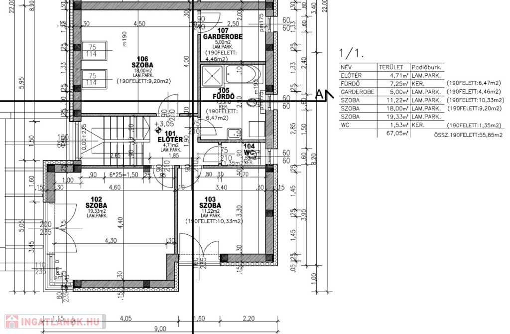
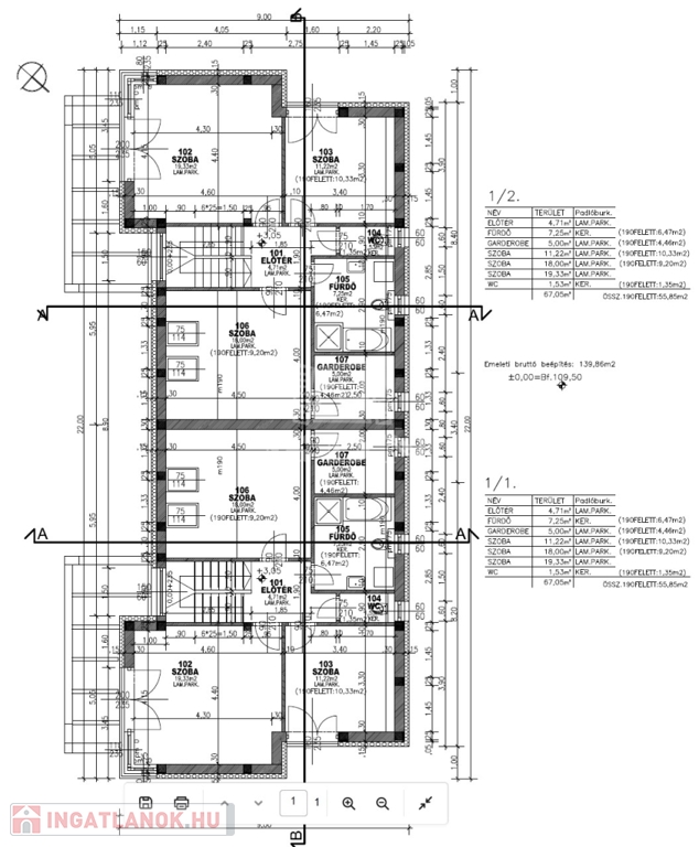
EMELETEN:
közlekedő-lépcsőtér 9,4 m2, 3 szoba (19,33 m2, 11,22 m2, 9,20 m2), fürdőszoba (7,25 m2), WC (1,53 m2), gardrób (5 m2).

A HELYISÉGEK ELRENDEZÉSE AZ ALAPRAJZOKON LÁTHATÓ !

KÉPEK EGY RÉSZE berendezési és külső látványterv, amelyek a terek remek kihasználhatóságának, a színek, bútorok variálhatóságának bemutatására készültek.

MŰSZAKI TARTALOM:
- YTONG 30 cm-es falazat, 15 cm külső szigetelés
- válasz falak 10 cm-es ytong tégla
- monolit vasbeton födém
- a tető antracit Leier cserépfedést kapott
- három rétegű üvegezéssel, antracit színű műanyag külső nyílászárok
- elektromos antracit színű redőnyök, szúnyoghálóval
- minden helyiségben padlófűtés, helyiségenként szabályozható osztógyűjtővel
- 2 db inverteres fűtő-hűtő klíma
- fűtés hőszivattyúval
- vízmelegítő 100 l tartály, hőszivattyús
- elektromos garázsajtóval felszerelt fűtött garázs
- WPC kerítés
- térkövezett járdák

Hideg és meleg burkolatok 8000 Ft /m2, beltéri ajtók 80.000 Ft /db, kád 100.000 Ft/db, szaniterek 30.000 Ft / db árig választhatók amit tartalmaz az ingatlan vételára.

AZ IKERHÁZ TERVEZETT ÁTADÁSA: 2026 MÁRCIUS

A lakóházak, ÖNÁLLÓ MÉRŐÓRÁKKAL, HASZNÁLATBAVÉTELI ENGEDÉLLYEL, TÁRSASHÁZ ALAPÍTÓ OKIRATTAL, valamint H-TARIFÁS VILLANYÓRÁKKAL kerülnek átadásra.

Az ingatlan Sashegy alsó részén, csendes utcában található.
A környék infrastruktúrája jó, közelben bölcsőde, óvoda, orvosi rendelő, bevásárlási lehetőségek (INTERSPAR)
Könnyen elérhető az 7-es főút és az autópályák is M0,M1,M7.

Az ingatlanok HITELKÉPESEK !
További kérdéseivel, ÉRDEKLŐDÉSÉVEL VÁROM JELENTKEZÉSÉT!
FORDULJON HOZZÁM BIZALOMMAL !

(G.I.)

Családi ház részletei

Ár: 134 900 000 Ft
Méret: 124 négyzetméter
Azonosító: 11592510
Irodai azonosító: 391527
Cím: MODERN, ÚJ ÉPÍTÉSŰ IKERHÁZ DIÓSDON
Telek: 386 négyzetméter
Ingatlan állapota: Kitűnő
Jelleg: ikerház
Építőanyag: Kérdezzen rá a hirdetőtől »
Fűtés jellege: Geotermikus
Fűtés módja: Hőszivattyú
Komfort fokozat: Összkomfort
Kor: Új építésű
Szintek száma: 1 szint
Egész szobák: 4

Egyéb jellemzők

  • Csatorna
  • Garázs
  • Pince
  • Terasz

Térkép

Hasonló családi ház hirdetések

Eladó családi ház

Diósd

ÚJ ÉPÍTÉSŰ IKERHÁZAK DIÓSDON! ÁTADÁS IDÉN DECEMBER! A házak társasházi ...

Eladó családi ház

Diósd

ÚJ ÉPÍTÉSŰ IKERHÁZAK DIÓSDON! ÁTADÁS IDÉN DECEMBER! A házak társasházi ...

Eladó családi ház

Diósd

AKCIÓS ÁR: 35% FOGLALÓ ESETÉN 119.500.000 Ft! DIÓSDON, új építésű, ...

Eladó családi ház

Diósd

☀️ Eladó újszerű családi ház nagy telekkel – Diósd kedvelt részén, ...

Hasonló családi ház hirdetések

Eladó családi ház

Diósd

ÚJ ÉPÍTÉSŰ IKERHÁZAK DIÓSDON! ÁTADÁS IDÉN DECEMBER! A házak társasházi ...

Eladó családi ház

Diósd

ÚJ ÉPÍTÉSŰ IKERHÁZAK DIÓSDON! ÁTADÁS IDÉN DECEMBER! A házak társasházi ...

Eladó családi ház

Diósd

AKCIÓS ÁR: 35% FOGLALÓ ESETÉN 119.500.000 Ft! DIÓSDON, új építésű, ...

Eladó családi ház

Diósd

☀️ Eladó újszerű családi ház nagy telekkel – Diósd kedvelt részén, ...