Eladó családi ház Diósd 135 000 000 Ft

Leírás

Panoráma Diósd csúcsán!

Kivételes környezetben kínálunk egy 2 + tetőteraszos (ennek egy része zöld terasz) családi házat.
A bruttó 277 nm-es (garázzsal együtt) ingatlan építési munkálatai 2022-ben kezdődtek, melynek készültségi szintje jelenleg 50%-os.

Az időközben történt munkálatok miatt változások:
- magasabb nyílászáró nyílások kialakítása (ha netán a vevő más redőnytokot, vagy a szabványtól eltérő beltéri ajtókat kívánna beépíteni)
- tetőterasznál plusz WC helyiség kialakítás,
- telken plusz garázsépítési lehetőség.

A tervezett fűtés hószivattyús rendszerrel és padlófűtéses technológiával kerül kivitelezésre.

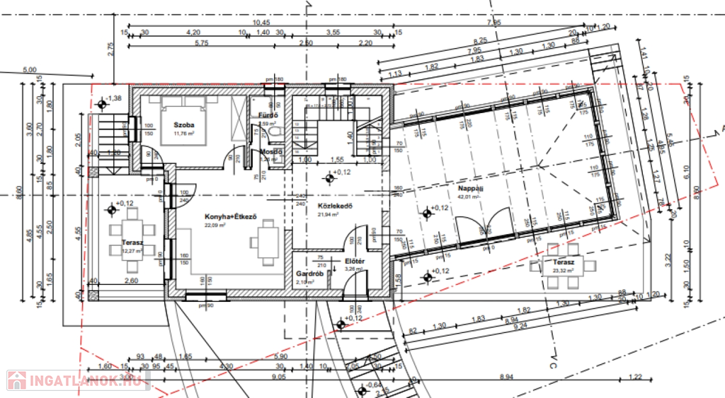
Ingatlan jellemzői:
- telek méret 558 nm (összközműves)
- 2 beállásos garázs,
- tárolók a garázs szinten,
- földszint: nappali, szoba, konyha-étkező, közlekedő, gardrób, előtér, terasz,
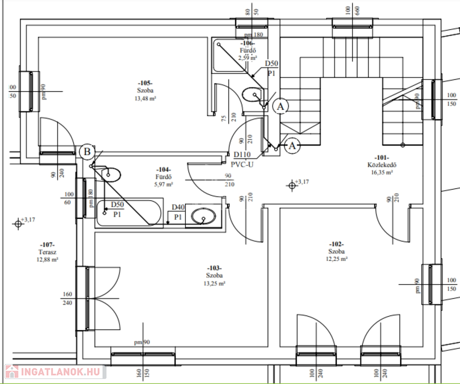
- emelet: 3 szoba, közlekedő,
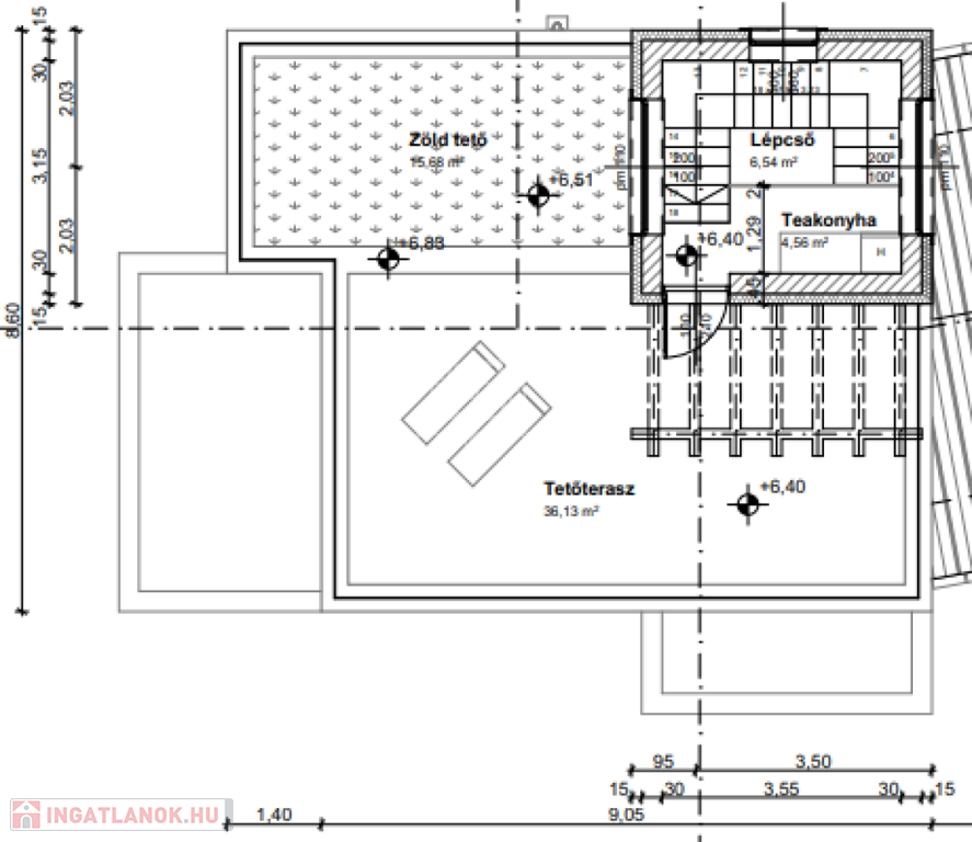
- tetőszint: teakonyha, zöld tető, tetőterasz.

Egyéb jellemzők:
- övezet: Lke-4,
- maximális beépítés: 30%,
- tervezett beépítés: 145,14m2 (26,01%)
- minimális zöldterület: 50%,
- tervezett zöldterület: 288,08m2 (51,63%),
- maximális épületmagasság: 5,5m,
- tervezett épületmagasság: 5,49m.

Családi ház részletei

Ár: 135 000 000 Ft
Méret: 200 négyzetméter
Azonosító: 11544791
Irodai azonosító: 383955
Cím: Sárgarigó utca
Telek: 558 négyzetméter
Ingatlan állapota: Kitűnő
Jelleg: családi ház
Építőanyag: Tégla
Fűtés jellege: Geotermikus
Fűtés módja: Hőszivattyú
Komfort fokozat: Összkomfort
Kor: Új építésű
Szintek száma: 2 szint
Egész szobák: 5

Egyéb jellemzők

  • Csatorna
  • Garázs
  • Pince
  • Terasz

Térkép

Hasonló családi ház hirdetések

Eladó családi ház

Diósd

ÚJ ÉPÍTÉSŰ IKERHÁZAK DIÓSDON! ÁTADÁS IDÉN DECEMBER! A házak társasházi ...

Eladó családi ház

Diósd

AKCIÓS ÁR: 35% FOGLALÓ ESETÉN 119.500.000 Ft! DIÓSDON, új építésű, ...

Eladó családi ház

Diósd

☀️ Eladó újszerű családi ház nagy telekkel – Diósd kedvelt részén, ...

Eladó családi ház

Diósd

ÚJ ÉPÍTÉSŰ IKERHÁZAK DIÓSDON! ÁTADÁS IDÉN DECEMBER! A házak társasházi ...

Hasonló családi ház hirdetések

Eladó családi ház

Diósd

ÚJ ÉPÍTÉSŰ IKERHÁZAK DIÓSDON! ÁTADÁS IDÉN DECEMBER! A házak társasházi ...

Eladó családi ház

Diósd

AKCIÓS ÁR: 35% FOGLALÓ ESETÉN 119.500.000 Ft! DIÓSDON, új építésű, ...

Eladó családi ház

Diósd

☀️ Eladó újszerű családi ház nagy telekkel – Diósd kedvelt részén, ...

Eladó családi ház

Diósd

ÚJ ÉPÍTÉSŰ IKERHÁZAK DIÓSDON! ÁTADÁS IDÉN DECEMBER! A házak társasházi ...