Eladó családi ház Diósd 210 000 000 Ft

Leírás

Új építésű exkluzív családi ház Diósd legértékesebb részén, Diósdligeten.

Diósd rendezett környezetében formálódik ez a letisztult, luxus megjelenésű családi ház, ahol minden részlet a modern életstílust szolgálja.

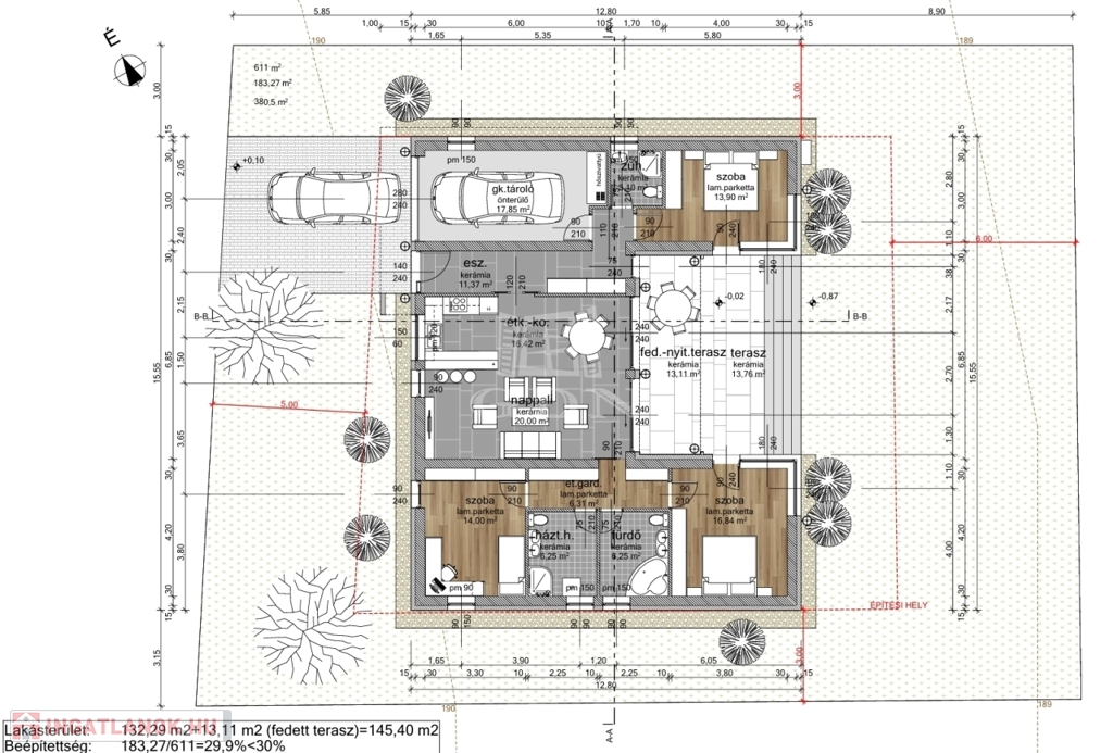
A belső terek elrendezése:
- kényelmes közlekedő
- amerikai konyhás nappali, ahol főzés közben is kapcsolatban maradhat a család és a vendégek
- 3 hálószoba
- mindegyik szobához külön fürdőszoba!
- a nappaliból megközelíthető a szinte egybenyitható hatalmas méretű terasz, ami megnöveli a teret, ahol igazán élvezheti a családi, baráti összejöveteleket
- garázs, melyből közvetlenül megközelítheti a belső tereket, így ha esik, ha fúj, az Ön kényelme teljes mértékben biztosított.

A tágas, amerikai konyhás nappali a ház szíve, amely természetes fénnyel, teraszkapcsolattal válik igazán élhetővé.
A három hálószoba, a garázs és a korszerű gépészet mind azt szolgálja, hogy a kényelem és az energiahatékonyság kéz a kézben járjon.

Prémium műszaki tartalom, ami a jövőnek épül:

Porotherm falazat, monolit vasbeton födém
15 cm grafitos homlokzati hőszigetelés
3 rétegű 7légkamrás antracit nyílászárók elektromos alumínium redőnnyel
hőszivattyús rendszer, H tarifa
teljes padlófűtés
klimatizált terek - központi hűtés és szellőzőrendszer
elektromos redőnyök

Extra előkészítések a jövőre:
napelem- és elektromos autó-töltő
kamerarendszer, riasztó, modern okosmegoldások

Lokáció, ami ritka érték:
Aszfaltozott utca, kész házak környezete, nincs további építkezés.
Budapest mindössze 15 perc autóval, M0, M6, M7 gyorsan elérhető.
Iskola, óvoda, bevásárlás, éttermek – minden karnyújtásnyira.

Nem tömegmegoldás. Nem sablon.
Egy átgondolt, időtálló otthon azoknak, akik minőséget keresnek.

A kivitelezés tapasztalt, referenciákkal rendelkező építőcsapat munkája, e-naplós rendszerrel, átlátható folyamatokkal.
Tervezett átadás: 2026 nyár használatbavételi engedéllyel

A képek között látványtervek szerepelnek, szobákról, nappali berendezés, fürdőszoba. Ötletként kiválóan szolgálnak, az elképzeléseknek a fantázia szab határt.

Ne vigyék el Ön elől! Érdeklődjön és válassza ki még most Ön a burkolatokat, színeket és kövesse tovább az építkezés folyamatát!
Teljes mértékben személyre szabható belső kialakítás:
Burkolatok, szaniterek, beltéri ajtók – az új tulajdonos döntései alapján, rugalmas kivitelezéssel.

Családi ház részletei

Ár: 210 000 000 Ft
Méret: 145 négyzetméter
Azonosító: 11600889
Irodai azonosító: 392800
Cím: Új építés luxus kivitelezés
Telek: 611 négyzetméter
Ingatlan állapota: Kitűnő
Jelleg: családi ház
Építőanyag: Tégla
Fűtés jellege: Geotermikus
Fűtés módja: Hőszivattyú
Komfort fokozat: Dupla komfort
Kor: Új építésű
Szintek száma: Földszintes
Egész szobák: 4

Egyéb jellemzők

  • Csatorna
  • Garázs
  • Pince
  • Terasz

Térkép

Hasonló családi ház hirdetések

Eladó családi ház

Diósd

DIÓSDLIGETEN, ÖRÖKPANORÁMÁVAL RENDELKEZŐ, LUXUS KIVÉTELEZÉSŰ, MAGAS ...

Eladó családi ház

Diósd

Kedves Ingatlankereső! Ha luxusra, természetközeli nyugalomra vágyik, ...

Eladó családi ház

Diósd

EXKLUZÍV IKERHÁZRÉSZ DIÓSD ZÖLDÖVEZETI RÉSZÉN – ...

Eladó családi ház

Diósd

Új építésű családi ház eladó – Diósd, Fenyves lakóövezet Ár: ...

Hasonló családi ház hirdetések

Eladó családi ház

Diósd

DIÓSDLIGETEN, ÖRÖKPANORÁMÁVAL RENDELKEZŐ, LUXUS KIVÉTELEZÉSŰ, MAGAS ...

Eladó családi ház

Diósd

Kedves Ingatlankereső! Ha luxusra, természetközeli nyugalomra vágyik, ...

Eladó családi ház

Diósd

EXKLUZÍV IKERHÁZRÉSZ DIÓSD ZÖLDÖVEZETI RÉSZÉN – ...

Eladó családi ház

Diósd

Új építésű családi ház eladó – Diósd, Fenyves lakóövezet Ár: ...