Eladó családi ház Domony 130 000 000 Ft

Leírás

Eladó újépítésű, exkluzív családi ház Domonyvölgy szívében

Domonyvölgyben, a Gödöllői-dombság gyönyörű, természetvédelmi területén kínáljuk megvételre ezt a 619 m²-es telken épülő modern családi házat, amely a kényelem és a fenntarthatóság jegyében készül.

Az épület jelenlegi tervei szerint 118 m² lakóterű, de igény szerint akár 180 m²-re is bővíthető, így tökéletes választás lehet kisebb és nagyobb családoknak egyaránt.

Területi besorolása Lf-2 (falusias lakóövezet), 30% beépíthetőség, 5 méteres épületmagasság engedélyezett.

A belterületi övezet utolsó építési telke.

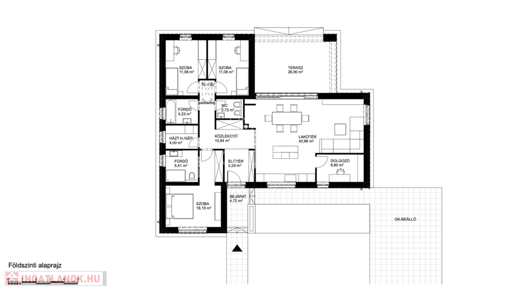
Főbb helyiségek:
- tágas, amerikai konyhás nappali-étkező (41 m²)
- 4 szoba (16, 11, 11 és 7 m²)
- 2 fürdőszoba, külön WC
- háztartási helyiség, közlekedők, előtér
- 27 m²-es terasz
- igény szerint garázs is kialakítható

Műszaki tartalom:

- beton alap, tégla falazat, kerámia tetőcserép
- háromrétegű, hőszigetelt műanyag nyílászárók
- vizes helyiségekben greslap, szobákban melegburkolat
- hőszivattyús fűtés előkészítéssel, napelemrendszer lehetőséggel
- kémény kiépítve kandallóhoz
- közművek: víz, villany az utcában, csatorna a telken belül (telekre való bevitel folyamatban, a vevő igényeihez igazítva)

Ez a ház magas műszaki tartalommal épül, amely modern és energiatakarékos otthont biztosít. A kivitelező cég referenciájaként a környéken épülő házak megtekinthetők.

Finanszírozási lehetőségek:

- CSOK Plusz
- 3%-os Otthon Start hitel
- Zöld hitel







Környék és elhelyezkedés:

A Budapesttől mindössze 35 km-re található Domonyvölgy a Natura 2000 természetvédelmi területen helyezkedik el, ahol négy hangulatos tó, erdők és különleges élővilág várja a kikapcsolódásra vágyókat.
Tömegközlekedéssel könnyen elérhető Gödöllő, illetve Aszód és Bag ahonnan számos busz és vonathálózat áll rendelkezésre.
M3 autópálya pár perc alatt elérhető (Bag, Gödöllő)

Szabadidős lehetőségek a közelben:
D-Beach homokos partszakasszal és pálmafákkal
Lázár Lovaspark – csikós bemutató, állatsimogató, magyaros vendéglátás
Domonyvölgyi víztározó és horgásztó
Extrém élmények: quad túra, off-road terepjáró, tankvezetés, paintball

Ez a ház ideális választás mindazoknak, akik szeretnék a főváros közelségét ötvözni a nyugodt, természetközeli életérzéssel – egy exkluzív, korszerű és bővíthető otthonban.

Az ingatlan előre egyeztetett időpontban megtekinthető!

Családi ház részletei

Ár: 130 000 000 Ft
Méret: 118 négyzetméter
Azonosító: 11604484
Irodai azonosító: 393368
Cím: Akác utca
Telek: 645 négyzetméter
Ingatlan állapota: Kitűnő
Jelleg: családi ház
Építőanyag: Tégla
Fűtés jellege: Egyedi
Komfort fokozat: Dupla komfort
Kor: Új építésű
Szintek száma: 1 szint
Egész szobák: 4

Egyéb jellemzők

  • Csatorna
  • Garázs
  • Pince
  • Terasz

Térkép