Eladó családi ház Dömsöd 49 900 000 Ft

Leírás

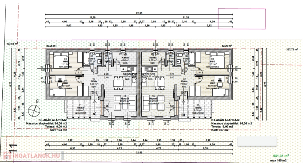
Eladó ikerház Dömsödön, a Dunavecsei út környékén.

A két fél között a telek mérete miatt árkülönbség van

A Lakás - 64,06 m2, telekméret: 194 m2 - ára 49.900.000 ft
B Lakás - 64,06 m2, telekméret 357 m2 - ára 50.900.000 ft

Az ingatlan jelenleg építés alatt áll és nappali kapcsolatos lesz!

A ház fűtéséről hőszivattyú gondoskodik.

Összesen 2 szoba és nappalis lesz az ikerház.

Várható átadási idő 2026 nyár.

Amennyiben szeretne egy teljesen új és korszerűen épített energiatakarékos otthonba költözni, ne habozzon, hívjon bizalommal!

FINANSZÍROZÁS:
Nálunk mindent egy helyen intézhet:
- hivatalos ingatlanközvetítés;
- szakszerű jogi képviselet;
- profi CSOK-PLUSZ, és hitelügyintézés: 16 Bank, több mint 100 konstrukció;

VÁROM MEGTISZTELŐ HÍVÁSÁT!

A részletes adatvédelmi tájékoztató folyamatosan elérhető a oldalon.

Családi ház részletei

Ár: 49 900 000 Ft
Méret: 64 négyzetméter
Azonosító: 11581558
Irodai azonosító: 389965
Cím: Dunavecsei út környéke
Telek: 194 négyzetméter
Ingatlan állapota: Épülő
Jelleg: ikerház
Építőanyag: Tégla
Fűtés jellege: Geotermikus
Fűtés módja: Hőszivattyú
Komfort fokozat: Összkomfort
Kor: Új építésű
Szintek száma: Földszintes
Egész szobák: 3

Egyéb jellemzők

  • Csatorna
  • Garázs
  • Pince
  • Terasz

Térkép

Hasonló családi ház hirdetések

Eladó családi ház

Dömsöd

KARÁCSONYI AKCIÓ!!!   Modern ikerházi otthon, UTCAFRONTI LAKÁS, 2 hálószoba, ...

Eladó családi ház

Dömsöd

Eladásra kinálok Pest megyében Dömsöd településen egy csendes, nyugodt ...

Eladó családi ház

Dömsöd

ENERGIATAKARÉKOS IKERHÁZ DÖMSÖDÖN! KARÁCSONYI AKCIÓ!! Modern, téglaépítésű ...

Hasonló családi ház hirdetések

Eladó családi ház

Dömsöd

KARÁCSONYI AKCIÓ!!!   Modern ikerházi otthon, UTCAFRONTI LAKÁS, 2 hálószoba, ...

Eladó családi ház

Dömsöd

Eladásra kinálok Pest megyében Dömsöd településen egy csendes, nyugodt ...

Eladó családi ház

Dömsöd

ENERGIATAKARÉKOS IKERHÁZ DÖMSÖDÖN! KARÁCSONYI AKCIÓ!! Modern, téglaépítésű ...