Eladó családi ház Dömsöd 69 900 000 Ft

Leírás

DÖMSÖDÖN BUDAPESTTŐL 35 KM TÁVOLSÁGRA
KIVÁLÓ KIVITELEZŐ, VERSENYKÉPES ÁRON, KIVÁLÓ OTTHONT AJÁNL ÖNNEK! CSOK +, HŐSZIVATTYÚ!

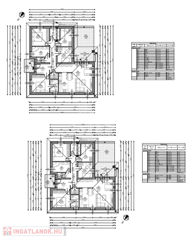
Dömsödön kínálom közös fal nélküli ikerház jellegű, "A" utcafronti 108 m2 lakását 537 m2 saját kerttel.

Az otthon nettó 108,19 m2 lakótérrel, 537 m2 körülkerített teleken épül.
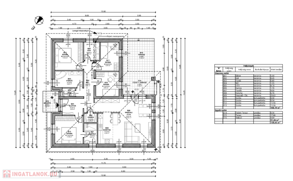
Helyiségei: előszoba 5,00 m2, közlekedő 8,45 m2, fürdőszoba 6,80 m2, wc 1,55 m2, háztartási helyiség 4,18 m2, kamra 1,78 m2, fürdő 4,00 m2, konyha 6,76 m2, nappali/étkező 29,63 m2, szoba 8,40 m2,
szoba 8,54 m2, szoba 11,56 m2, szoba 11,56 m2, terasz 26,42 m2.

A telek ideális 537 négyzetméteres, a szomszédot csak akkor látjuk és halljuk ha mi is szeretnénk, a teraszon zavartalanul pihenhetünk.

Az épület Leier 30 téglából épül, fafödémmel, cserépfedésű tetővel. A homlokzaton 10 cm-es grafitos Dryvit rendszerű hőszigeteléssel, 30 cm vastag szálas szerkezetű födémszigeteléssel az aljzatban pedig 10 cm lépésálló szigetelés kerül beépítésre.

Műszaki tartalom:
-Hideg burkolatok 4.500.- Ft/nm meleg burkolatok 3.500.- Ft/nm
-Fűtés hőszivattyú, hőleadás padlófűtés.
-Homlokzati nyílászárók, fehér színű műanyag nyílászárók három rétegű üvegezéssel.
-Belső falak 2x glettelve fehérre festve.
-A telek körülkerítve, utcafronton épített kerítés 4 m széles kapu és személy bejáró.
-Kaputól a bejáratig járda.
-A telek alap tereprendezéssel kerül átadásra.
-Szaniterek keretösszegig választhatók

Várható átadás 2025 május.

Első "A" lakás 537 m2 kert, 108 m2 lakótér ára:69.900.000 ft
Hátsó "B" lakás 683 m2 kert, 108 m2 lakótér ára: 73.900.000 ft

Várom megtisztelő hívását!

FINANSZÍROZÁS:
Nálunk mindent egy helyen intézhet:
- hivatalos ingatlanközvetítés;
- szakszerű jogi képviselet;
- profi CSOK-PLUSZ, és hitelügyintézés: 16 Bank, több mint 100 konstrukció;

A részletes adatvédelmi tájékoztató folyamatosan elérhető a GDN ingatlan adatvédelem oldalon.

Családi ház részletei

Ár: 69 900 000 Ft
Méret: 108 négyzetméter
Azonosító: 11567453
Irodai azonosító: 387676
Cím: Pest Megye
Telek: 537 négyzetméter
Ingatlan állapota: Kitűnő
Jelleg: családi ház
Építőanyag: Tégla
Fűtés jellege: Geotermikus
Fűtés módja: Hőszivattyú
Komfort fokozat: Összkomfort
Kor: Új építésű
Szintek száma: Földszintes
Egész szobák: 3
Fél szobák: 2

Egyéb jellemzők

  • Csatorna
  • Garázs
  • Pince
  • Terasz

Térkép

Hasonló családi ház hirdetések

Eladó családi ház

Dömsöd

ELADÓ TETŐTÉR-BEÉPÍTÉSES CSALÁDI HÁZ DÖMSÖD KÖZPONTI, CSENDES RÉSZÉN Dömsöd ...

Eladó családi ház

Dömsöd

DÖMSÖDÖN BUDAPESTTŐL 35 KM TÁVOLSÁGRA KIVÁLÓ KIVITELEZŐ, VERSENYKÉPES ...

Hasonló családi ház hirdetések

Eladó családi ház

Dömsöd

ELADÓ TETŐTÉR-BEÉPÍTÉSES CSALÁDI HÁZ DÖMSÖD KÖZPONTI, CSENDES RÉSZÉN Dömsöd ...

Eladó családi ház

Dömsöd

DÖMSÖDÖN BUDAPESTTŐL 35 KM TÁVOLSÁGRA KIVÁLÓ KIVITELEZŐ, VERSENYKÉPES ...