Eladó családi ház Dunaharaszti 124 999 000 Ft

Leírás


RITKASÁG!

NAPPALI + 4 HÁLÓS ÚJ ÉPTÉSÚ CSALÁDIHÁZ PETFŐFI LIGET SZÍVÉBEN!



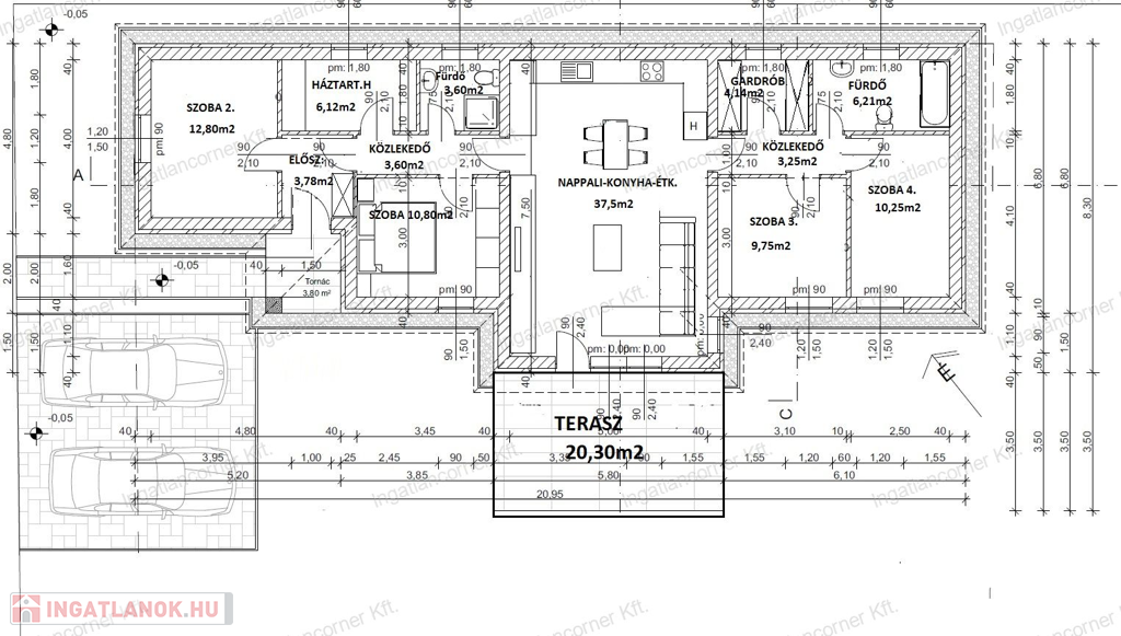
Dunaharaszti Petőfi ligeti részén ÖNÁLLÓ 593m2-es telken fekvő EGYSZINTES, ÚJ ÉPÍTÉSŰ CSALÁDIHÁZ, 112m2 alapterülettel + 20,30m2-es TERASZAL kedvező áron ELADÓ!



Elosztását tekintve KIVÁLÓ: A ház közepében helyezkedik el egy fényárban úszó 37,5m2-es NAPPALI-KONYHA-ÉTKEZŐ, NÉGY HÁLÓSZOBA (12,80m2, 10,80m2,10,25m2, 9,76m2), két ablakos FÜRDŐSZOBA az egyik épített zuhanyzóval a másik káddal felszerelve (6,21m2 és 3,60m2) külön HÁZTATÁSI HELYISÉGGEL, ahol a gépészeten kívül a mosó szárítógép is kényelmesen elfér, illetve egy GARDRÓB helyiség is helyet kapott, melynek minkét oldala bútorozható, de akár dolgozó szobának is tökéletes választás.

Jelenleg még a belső válaszfalak IGÉNY SZERINT VARIÁLHATÓAK!



Műszaki adatok:

- KÖRÍTŐ FALAZAT: 30cm-es Porotherm RAPID téglából épül (amelynek JOBB a hőszigetelése, környezetbarát, nem kerül annyi víz a falakban, miután a téglák nem habarccsal illesztik össze, hanem extra vékony ragasztóhabbal.

- BELSŐ VÁLASZFALAK: 10cm Ytongból készülnek.

- HOMLOKZATI SZIGETELÉS: 15 cm-es DRYVIT szigetelés

- NYÍLÁSZÁRÓK: 3 rétegű, 5 kamrás fehér műanyag nyílászárók kerülnek beépítésre (rejtett redőnytokos kialakítással)

- FÖDÉMEN: fafödémes épület, melyen 30cm-es (URSA) üveggyapot szigetelés kerül.

- HÉJÁZAT: antracit színű beton cserepezéssel, antracit szinterezett eresz csatornával, telken elhelyezett szikkasztóba vezetve.

- BURKOLATOK: 6.000.-Ft/m2-ig a meleg burkolatok 5.000.-Ft/m2-ig tartalmazzák a vételárat, melyek szabadon válaszhatók.

- FŰTÉS: 8 Kw-os MIDEA HŐSZIVATTYÚRÓL működő teljes PADLÓFŰTÉSSEL kerül kiépítésre.

- MELEGVÍZ ELLÁTÁS: 200 literes puffer tartály gondoskodik.

- HŰTÉS: 2 db. BOSCH 3,5Kw-os fűtésre optimalizált KLÍMA kerül felhelyezésre az ügyfél igényei szerinti helyre.

- ELEKTROMOS KIÁLLÁSOK: 65 db. elektromos kiállást tartalmaz a vételár

- ELEKTROMOS HÁLÓZAT: 1x32 Amper nappali villanyóra (amely igény esetén bővíthető), H TARIFÁS dobozolással kiépítve.

- BIZTONSÁG: Riasztórendszer alapcsövezésre kerül

- FESTÉS: 2X glettelés ás 2x fehér festés az árban

- PAKOLHATÓ PADLÁSTÉR (lenyitható hőszigetelt létrés padlásfeljáró kerül beépítésre, igény esetén a padlástér járható felületté tehető felárért)

- GÉPKOCSIBEÁLLÁS: telken belül 2 autó számára VIACOLOR burkolattal ellátott beálló kerül kiépítésre.

- UTCAFRONTON: épített kerítés kerül megépítésre, látványtervek alapján.

- KERT: TERMŐFÖLDDEL feltöltve kerül átadásra



Az épület stílusa MODERN ÉS FIATALOS, így ajánlom mindazoknak, akik saját családi házra vágynak – egy jól megtervezett, egyszintes otthonra, ahol a kényelem és a praktikum tökéletes összhangban van!



Kiváló kivitelezésben, minőségi anyagokból, SZÁMTALAN REFERENCIÁVAL rendelkezünk, így igény esetén, akár TÖBB már megépített HÁZUNK is MEGTEKINTHETŐ akár belülről is!!!



KÖZELBEN: 8 perc sétányira az INGYENES helyi buszjárat elérhető, de a vonat 10 perc sétatávolsággal elérhető. Iskola, óvoda, bölcsőde egyszerűen megközelíthető illetve számtalan bevásárlási lehetőség, hentes, zöldséges, pékség 5 perc sétányira, Aldi, Lidl, Tesco 5 perc autóútra.



MÁR 20% ÖNERŐVEL megvásárolható. és MÁR 2 MFt-tal megfizetésével foglalható!



-Építés kezdete: 2025. május vége

-Az ingatlan 100%-os készültségének várható ideje: 2025. év vége



Várom hívását! Amennyiben nem tudom felvenni a telefont, hamarosan visszahívom!



Független, ingyenes hitel-CSOK ügyintézéssel segítem kedves Ügyfeleimet, igen kedvező hitelekkel 2025-ben!



Ha az ingatlan megvásárlásához el szeretné adni a jelenleg meglévő ingatlanját, ebben is nagyon szívesen segítek. Az Ingatlancorner kft. igen alacsony közvetítői díjjal, a legmagasabb színvonalon képviseli az Ön érdekeit.

Családi ház részletei

Ár: 124 999 000 Ft
Méret: 112 négyzetméter
Azonosító: 11524367
Irodai azonosító: 107004002
Telek: 593 négyzetméter
Ingatlan állapota: Kitűnő
Jelleg: családi ház
Építőanyag: Tégla
Komfort fokozat: Dupla komfort
Kor: Új építésű
Egész szobák: 5

Hasonló családi ház hirdetések

Eladó családi ház

Dunaharaszti

MOST AKCIÓS ÁRON MEGVEHETI ÁLMAI OTHHONÁT!!!! Dunaharaszti ...

Eladó családi ház

Dunaharaszti, Óváros

Dunaharasztin központi helyen,hév megállótól 1 busz megállóra 260 nm ...

Eladó családi ház

Dunaharaszti

Eladó tárolón keresztül kapcsolódó új-építésű ...

Eladó családi ház

Dunaharaszti

MOST AKCIÓS ÁRON MEGVEHETI ÁLMAI OTHHONÁT!!!! Dunaharaszti ...

Hasonló családi ház hirdetések

Eladó családi ház

Dunaharaszti

MOST AKCIÓS ÁRON MEGVEHETI ÁLMAI OTHHONÁT!!!! Dunaharaszti ...

Eladó családi ház

Dunaharaszti, Óváros

Dunaharasztin központi helyen,hév megállótól 1 busz megállóra 260 nm ...

Eladó családi ház

Dunaharaszti

Eladó tárolón keresztül kapcsolódó új-építésű ...

Eladó családi ház

Dunaharaszti

MOST AKCIÓS ÁRON MEGVEHETI ÁLMAI OTHHONÁT!!!! Dunaharaszti ...