Eladó családi ház Dunaharaszti 91 160 000 Ft

Leírás


Dunaharaszti kedvelt lakóparkjában, a Bezerédi lakóparkban, kettő 8-lakásos társasház új-építésű lakásainak értékesítése elkezdődött! Az ingatlanok már 2M. Ft-tal leköthetők, AKÁR 20%-os önerővel!



A földszinten 3 db saját kerttel rendelkező nappali + 2 hálószobás, illetve 1db nappali + 1 hálószobás lakás található. Mindegyik lakáshoz saját tároló és 2 db parkoló tartozik! A tároló és a parkolók a vételár részét képezik!

Az emeleten 3 db nappali + 1 hálószobás lakás és 1db nappali + 2 hálószobás lakás található! Mind a négy emeleti lakáshoz tartozik tároló és 2db külső autóbeálló. Ezek szintén a vételár részét képezik.

Az ingatlanok fan-coil klímával és riasztóval felszereltek, fűtésük hőszivattyús rendszerről történik, padlófűtés hő leadással.



Az ingatlanok jogi formája társasház, a lakások alábetétesítve lesznek!



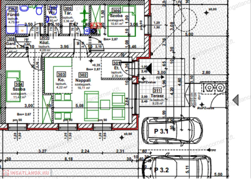
Földszinti lakások:



1, lakás nettó 49,15 m2 + 18,35 m2 terasz, nappali + 1 háló, 150 m2 telek, fan-coil klíma (a hálószobákban kiállás előkészítés), riasztó, tároló, 2 db parkoló.

1-es tömb: ELKELT!

2-es tömb, ár: 73 740 000 Ft. SZABAD!



2, lakás nettó 57,04 m2 + 13,83 m2 terasz, nappali + 2 szoba, 173,5 m2 telek, fan-coil klíma (a hálószobákban kiállás előkészítés), riasztó, kaputelefon, tároló, 2 db parkoló. utca

1-es tömb: ELKELT!

2-es tömb, ár: 89 625 000 Ft. SZABAD!



3, lakás nettó 60,71 m2 + 9,29 m2 terasz, nappali + 2 háló, 119 m2 telek, fan-coil klíma (a hálószobákban kiállás előkészítés), riasztó, kaputelefon, 2db parkoló

1-es tömb, ár: 91 155 000 Ft. SZABAD!

2-es tömb, ár: 91 155 000 Ft. SZABAD!



4, lakás nettó 58,45 m2 + 9,74 m2 terasz, nappali + 2 háló, 108 m2 telek, fan-coil klíma (a hálószobákban kiállás előkészítés), riasztó, kaputelefon, 2db parkoló

1-es tömb, ár: ELKELT!

2-es tömb, ár: 89 655 000 Ft. SZABAD!



Emeleti lakások:



5, lakás nettó 41,08 m2 + 12,37 m2 fedett terasz, nappali + 1 szoba, fan-coil klíma (a hálószobákban kiállás előkészítés), riasztó, kaputelefon, tároló, 2 db utcai parkoló.

1-es tömb, ár: ELKELT!

2-es tömb, ár: 70 910 000 Ft. SZABAD!



6, lakás nettó 50,56 m2 + 18,6 m2 fedett terasz, nappali + 1 szoba, fan-coil klíma (a hálószobákban kiállás előkészítés), riasztó, kaputelefon, tároló, 2 db utcai parkoló.

1-es tömb, ár: 89 790 000 Ft. SZABAD!

2-es tömb, ár: 89 790 000 Ft. SZABAD!



7, lakás nettó 61,62 m2, + 3,14 m2 erkély, nappali + 1 háló, fan-coil klíma (a hálószobákban kiállás előkészítés), riasztó, kaputelefon, 2db parkoló

1-es tömb, ár: 94 785 000 Ft. SZABAD!

2-es tömb, ár: 94 785 000 Ft. SZABAD!



8, lakás nettó 57,05 m2, + 5,4 m2 erkély, nappali + 2 háló, fan-coil klíma (a hálószobákban kiállás előkészítés), riasztó, kaputelefon, 2db parkoló

1-es tömb, ár: 85 545 000 Ft. SZABAD!

2-es tömb, ár: 85 545 000 Ft. SZABAD!



A hirdetés az 3-as lakás hirdetése!





Műszaki jellemzői:



Porotherm Klíma 30 kerámia falazat TM + 10 cm Grafit 80 homlokzati hőszigetelő

Válaszfalak, Porotherm 30 AKU Z tégla falazat 30 cm

Nyílászáró műanyag bukó-nyíló, hőszigetelt, 3 légkamrás thermo üvegezéssel, hő visszaverő fóliával.

Fűtés és meleg víz hőszivattyús rendszerről működő padlófűtés, fan-coil klíma

Riasztó

Laminált parketta a hálószobákban, hidegburkolat a többi helyiségben (szabadon választható 3.000,-/m2-ig tartalmazza az ár)

2 db udvari gépkocsi beálló, viacolor burkolat

Tereprendezés, kerítés, kapu



Bővebb műszaki tartalmat igény esetén e-mailben tudok küldeni!



Várható átadás: 1-es tömb 2026. április

2-es tömb 2027 első negyedév



A kivitelező megbízható, számos referenciával rendelkezik

A kivitelezést modern, időtálló stílus és prémium anyaghasználat jellemzi. Megbízható, igényes kivitelezőtől kiváló ár-érték arányú ingatlant vásárolhat. A környék szép és rendezett, új, újszerű ingatlanok környezetében található!



A hitelügyintézésben igény szerint segítséget nyújtunk, cégünk kiváló hitelügyintézői kapcsolatokkal rendelkezik,



Fizetési ütemezés: Az ingatlanok 2 M. Ft-tal leköthetők, további fizetési ütemezés a kivitelezővel történt egyeztetés alapján.



Kiváló elhelyezkedése miatt a közeli főutak (M0, 51-es út) gyorsan elérhetőek.

A közelben minden megtalálható, amire szükség lehet.



Dunaharaszti az elmúlt 10 évben rendkívül nagy fejlődésen ment keresztül, Budapestre HÉV-vel, busszal, vonattal (jelenleg a Budapest-Belgrád vasútvonal építése miatt a vasúti forgalom szünetel) és autóval is gyorsan be lehet jutni Budapestre.

Több bölcsőde, óvoda, általános iskola és egy gimnázium is van Dunaharasztin. A bevásárlási lehetőség nagy, minden megtalálható, amire szükség lehet!



Várom hívását, NE maradjon le róla!

Családi ház részletei

Ár: 91 160 000 Ft
Méret: 65 négyzetméter
Azonosító: 11512754
Irodai azonosító: 107003975
Telek: 119 négyzetméter
Összesített energetikai besorolás: A+
Ingatlan állapota: Kitűnő
Jelleg: sorház
Építőanyag: Tégla
Komfort fokozat: Összkomfort
Kor: Új építésű
Egész szobák: 3

Hasonló családi ház hirdetések

Eladó családi ház

Dunaharaszti

Dunaharaszti Ligeti részén, átmenő forgalomtól mentes ...

Eladó családi ház

Dunaharaszti

BEZERÉDI LAKÓPARKBAN 81 nm-es CSOK (akár 3 gyerekes) képes ...

Eladó családi ház

Dunaharaszti

*** Dunaharasztiban, a Rózsa utca közelében megvételre kínálok egy FELÚJÍTOTT, ...

Eladó családi ház

Dunaharaszti

Eladó Dunaharaszti Alsóváros részen egy 450 m2 telekkel ...

Hasonló családi ház hirdetések

Eladó családi ház

Dunaharaszti

Dunaharaszti Ligeti részén, átmenő forgalomtól mentes ...

Eladó családi ház

Dunaharaszti

BEZERÉDI LAKÓPARKBAN 81 nm-es CSOK (akár 3 gyerekes) képes ...

Eladó családi ház

Dunaharaszti

*** Dunaharasztiban, a Rózsa utca közelében megvételre kínálok egy FELÚJÍTOTT, ...

Eladó családi ház

Dunaharaszti

Eladó Dunaharaszti Alsóváros részen egy 450 m2 telekkel ...