Eladó családi ház Dunakeszi 164 900 000 Ft

Leírás

Prémium minőségű új építésű ikerház Dunakeszi legszebb részén, a Duna közelében! A modern hőszivattyús rendszer mellett kiemelkedő műszaki tartalom: beépített redőnyök, választható hideg-meleg burkolatok, exkluzív szaniterek, igényes beltéri ajtók és háromrétegű külső nyílászárók, hogy otthonod minden részlete tökéletes legyen.

Az építtető kivitelező cég több éves szakmai tapasztalattal és helyismerettel teremti meg a lehetőséget az új otthonok vételére Dunakeszi. Egy ház kivitelezésénél talán még fontosabb az elhelyezkedés, ezért nagyon gondosan választják meg azt a telket, amelyre elkezdenek építkezni.

A hőszivattyús fűtés és a kiemelt műszaki tartalom mellett a ház külső hőszigetelése is prémium minőségű, így az ingatlan A+ energetikai besorolású. Ennek köszönhetően a fenntartási költség minimális, miközben a kényelem maximális.

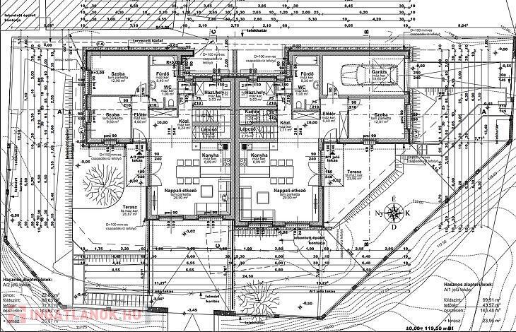
A ház alaprajzát, gondosan kellő odafigyeléssel rajzolták meg, hogy a megépítés után, nagy terek, és kihasználható szobák legyenek. A ház alatt garázs és pince lesz kialakítva.

Ez a ház nemcsak lakás – ez életstílus! Ne maradj le róla!

Bővebb tájékoztatásért, referenciákért, és a terület körbejárásához keressen minket telefonon vagy üzenetben.

Amennyiben a vásárláshoz meglévő ingatlanát kellene eladni, és vagy hitelt tervez akkor irodáink készséggel segítenek a legjobb megoldásokat megtalálni.

Családi ház részletei

Ár: 164 900 000 Ft
Méret: 149 négyzetméter
Azonosító: 11599805
Irodai azonosító: 24735
Telek: 350 négyzetméter
Ingatlan állapota: Épülő
Jelleg: családi ház
Építőanyag: Kérdezzen rá a hirdetőtől »
Fűtés jellege: Egyéb
Szintek száma: Földszintes
Egész szobák: 5

Hasonló családi ház hirdetések

Eladó családi ház

Dunakeszi

Dunakeszin Dunához közel, csendes, átmenő forgalomtól mentes utcában, ...

Eladó családi ház

Dunakeszi

Kétgenerációs családi ház eladó Dunakeszi központjában – hatalmas, ...

Eladó családi ház

Dunakeszi

Dunakeszi Révdűlőben eladó egy jó adottságú, 2005-ben épült ikerházfél. Az ...

Eladó családi ház

Dunakeszi

Dunakeszin Duna parthoz közeli, !! központhoz közel, mégis csendes, átmenő ...

Hasonló családi ház hirdetések

Eladó családi ház

Dunakeszi

Dunakeszin Dunához közel, csendes, átmenő forgalomtól mentes utcában, ...

Eladó családi ház

Dunakeszi

Kétgenerációs családi ház eladó Dunakeszi központjában – hatalmas, ...

Eladó családi ház

Dunakeszi

Dunakeszi Révdűlőben eladó egy jó adottságú, 2005-ben épült ikerházfél. Az ...

Eladó családi ház

Dunakeszi

Dunakeszin Duna parthoz közeli, !! központhoz közel, mégis csendes, átmenő ...