Eladó családi ház Dunavarsány 79 900 000 Ft

Leírás

Csak irodánk kínálatában!

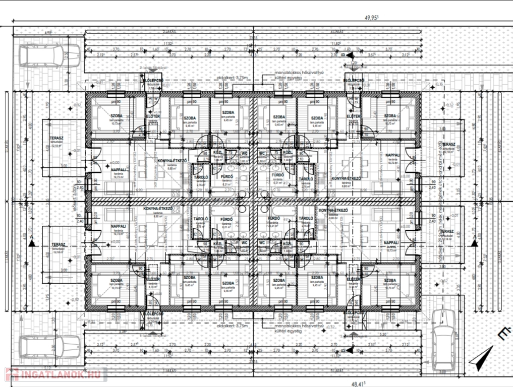
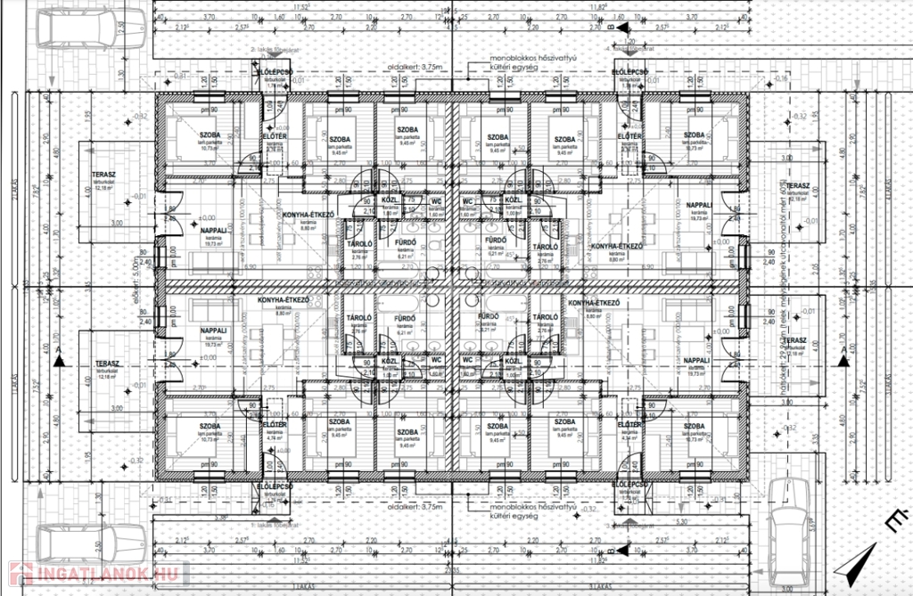
Dunavarsány Nagyvarsányi részén lévő 1225 nm-es telekre tervezett földszintes, négylakásos társasház nettó 83 nm alapterületű lakásait kínáljuk megvételre, saját használatú, lekerített telekrésszel. Az építkezés megkezdése szeptember 1. A lakások tervezett átadása 2026. tavasza.

1-es lakás 83 nm telek területe 206 nm,- 79.900.000.-Ft
2-es lakás 83 nm telek területe 205 nm,- 79.900.000.-Ft
3-as lakás 83 nm telek területe 355 nm,- 82.900.000.-Ft
4-es lakás 83 nm telek területe 458 nm,- 82.900.000.-Ft

A lakások beosztása:
- előtér 4,74 nm,
- konyha+ étkező 8,8 nm,
- nappali 19,73 nm,
- tároló 2,76 nm,
- szoba 10,73 nm,
- szoba 9,45 nm,
- szoba 9,45 nm,
- fürdő 6,21 nm,
- WC 1,6 nm,
- közlekedő 1,0 nm,
- terasz 12 nm.

Műszaki tartalom:
- falazat 30-as Porotherm tégla,
- 12 cm-es EPS szigetelés,
- nincs közös fal !! ( 2x25-ös téglafal,közte szigetelő anyag)
- 3 rétegű fehér színű műanyag nyílászárók,
- fa födém+ 30 cm-es tetőszigetelés,
- cseréptető,
- monoblokkos hőszivattyú, hőszivattyús bojler,
- 1 db hűtő-fűtő klíma,
- burkolatok 6.000.-Ft/nm,
- beltéri ajtók 65.000.-Ft/db,
- szaniterek 250.000.-Ft,
- terasz burkolva,
- tolókapu motoros előkészítése,
- riasztó előkészítés,
- lakásonként 1 autónak térkövezett beálló, egyéb rész murvázva,
- 3x16 amper, H tarifa.

A kivitelező referencia munkái megtekinthetők.

Amivel segítjük az Ön ingatlanvásárlását:
- ingyenes hitelügyintézés,
- jogi háttér,
- földhivatali ügyintézés,
- energetikai tanúsítvány,
- a vevő számára az ingatlanközvetítés ingyenes.

Irodánk 30 éves szakmai tapasztalattal áll ügyfelei rendelkezésére!

Várom szíves megkeresését!

Családi ház részletei

Ár: 79 900 000 Ft
Méret: 83 négyzetméter
Azonosító: 11553589
Irodai azonosító: 385465
Cím: Nagyvarsány
Telek: 206 négyzetméter
Ingatlan állapota: Kitűnő
Jelleg: sorház
Építőanyag: Tégla
Fűtés jellege: Geotermikus
Fűtés módja: Hőszivattyú
Komfort fokozat: Összkomfort
Kor: Új építésű
Szintek száma: Földszintes
Egész szobák: 4

Egyéb jellemzők

  • Csatorna
  • Garázs
  • Pince
  • Terasz

Térkép