Eladó családi ház Enese 87 900 000 Ft

Leírás


Kulcsrakész ház eladó Kulcsrakész ház eladó! KÖLTÖZHETŐ!

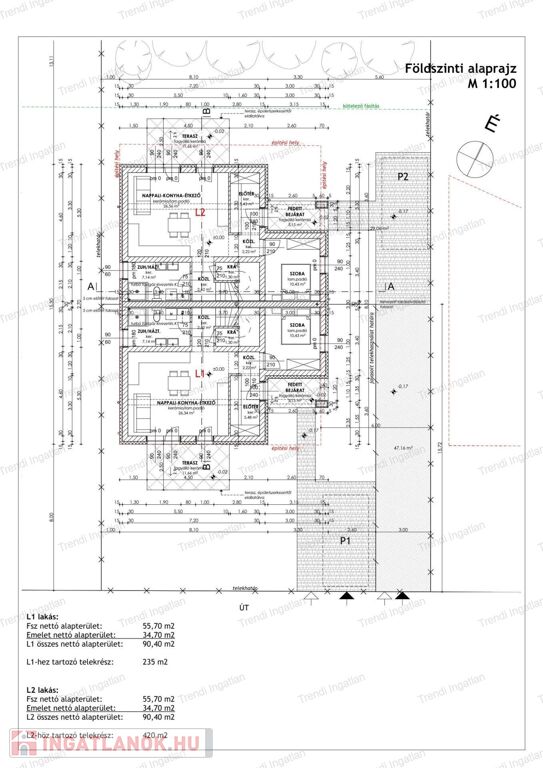
Enesén új építésű nappali + 3 szobás, 90,40 nm-es, kétszintes ikerház 420 nm-es telekrésszel kulcsrakész állapotban eladó.

Minőségi kivitelezés és kiváló belső elrendezés jellemző a házra. A földszinten amerikai konyhás nappali, szoba, zuhanyzóval és WC-vel felszerelt háztartási helyiség, közlekedő, előtér található. A nappaliból elérhető 11,66 nm-es terasz. Az emeleten 2 szoba, fürdőszoba, gardrób, közlekedő került kialakításra. Az ár tartalmazza a konyhabútort, a függönyöket, a lámpákat és a nappaliban valamint az emeleten található szobákban a klímát.A szobák laminált parkettával, a többi helyiség járólappal burkolt.

A ház 30-as falazóelemből, 15 cm-es homlokzati szigeteléssel, 3 rétegű műanyag nyílászárókkal került kivitelezésre. A nappaliba klíma került, az emeleti szobákban klímaelőkészítés található. Fűtésről kondenzációs kazán gondoskodik padlófűtéssel.

Az ingatlan kulcsrakész ára: 87.900.000 Ft.

Az ár tartalmazza a telek árát.

Kulcsrakész átadás várható ideje: 2025 november vége

Bővebb információkért forduljon hozzám bizalommal.

Hétköznap és hétvégén is várom hívását!

Díjmentes, bankfüggetlen hitelügyintézéssel állunk rendelkezésére.

A hirdetésben feltüntetett képek illusztrációk.

Családi ház részletei

Ár: 87 900 000 Ft
Méret: 90 négyzetméter
Azonosító: 11582486
Irodai azonosító: 196400825
Telek: 420 négyzetméter
Ingatlan állapota: Kitűnő
Jelleg: ikerház
Építőanyag: Tégla
Kor: Új építésű
Egész szobák: 4

Hasonló családi ház hirdetések

Eladó családi ház

Enese

Kulcsrakész ház eladó! KÖLTÖZHETŐ! Enesén új építésű ...

Eladó családi ház

Enese

Kulcsrakész ház eladó! KÖLTÖZHETŐ! Enesén új építésű ...

Eladó családi ház

Enese

Kulcsrakész ház eladó Kulcsrakész ház eladó! KÖLTÖZHETŐ! Enesén ...

Hasonló családi ház hirdetések

Eladó családi ház

Enese

Kulcsrakész ház eladó! KÖLTÖZHETŐ! Enesén új építésű ...

Eladó családi ház

Enese

Kulcsrakész ház eladó! KÖLTÖZHETŐ! Enesén új építésű ...

Eladó családi ház

Enese

Kulcsrakész ház eladó Kulcsrakész ház eladó! KÖLTÖZHETŐ! Enesén ...