Eladó családi ház Enying 52 450 000 Ft

Leírás

ELADÓ FELÚJÍTANDÓ CSALÁDI HÁZ ENYINGEN!

FIGYELEM!
- A ház a Balatontól 15 perce található autóval!
- A ház műszaki szempontból FELÚJÍTÁST igényel!
- A házhoz tartozik egy hatalmas telek, különálló pince és gazdasági épületek!
- Az esetleges elírások, információk és a változtatások jogát fenntartjuk


ALAPADATOK:
- A ház építési éve ∼1950, VEGYES FALAZATÚ: TÉGLA, TÖMÉSFAL
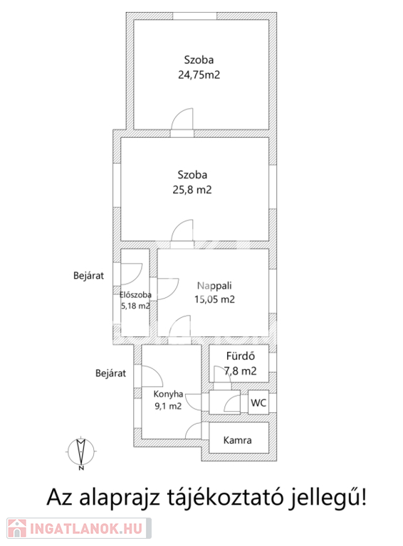
- A ház hasznos alapterülete 87,68 m2
- A házban megtalálható 3 szoba, konyha, spejz, kamra, fürdő
- A telek vállalkozásra is alkalmas és megosztható, belterületi ingatlan


MŰSZAKI ÉS ESZTÉTIKAI ÁLLAPOT:
- A fűtés GÁZKAZÁNNAL ÉS KANDALLÓVAL történik
- A meleg vizet VILLANYBOJLER biztosítja
- A nyílászárók mindenhol JÓ ÁLLAPOTÚ MŰANYAG nyílászárók fa és műanyag redőnnyel
- A villanyvezeték- és vízvezeték-hálózat KORSZERŰSÍTÉST IGÉNYEL!

KÖZELBEN TALÁLHATÓ:
- Új uszoda
- Óvoda, bölcsőde
- Rendelőintézet
- Nagyobb üzletláncok ( Lidl, Penny, Aldi, Coop)
- Kisebb üzlethelyiségek ( 4 pékség és 4 hentesüzlet)
- Gyógyszertár
- Nyugdíjasotthonok


Amennyiben az ingatlan megvásárlásához el kell adnia jelenlegi otthonát, úgy annak és a teljes folyamatnak a lebonyolításában is állok rendelkezésre!
További információkért forduljon hozzám bizalommal, hívjon a megadott telefonszámon - akár hétvégén is!


TOVÁBBI SZOLGÁLTATÁSAINK:
- Megbízható ügyvédi háttér
- INGYENES, FÜGGETLEN hitelügyintézés
- INGYENES, FÜGGETLEN biztosítási tanácsadás
- Energetikai tanúsítvány és ingatlan értékbecslés készítése
- Klíma rendszerek kiépítése és beüzemelése
- Riasztó- és kamera rendszerek kiépítése
- Közművek és szolgáltatók átírása
- Birtokbaadás lebonyolítása
- Kert- és tereprendezés
- Ingatlan takarítás
- Ingatlan felújítás
- Költöztetés


#gonahome #tegyelprobara #keressbizalommal #mindenamiingatlan

Családi ház részletei

Ár: 52 450 000 Ft
Méret: 87 négyzetméter
Azonosító: 11591371
Irodai azonosító: 338992
Telek: 7974 négyzetméter
Ingatlan állapota: Felújítandó
Jelleg: családi ház
Építőanyag: Vályog
Fűtés jellege: Cirkó
Fűtés módja: Gáz
Komfort fokozat: Összkomfort
Egész szobák: 3