Eladó családi ház Érd 124 900 000 Ft

Leírás

RENDKIVÚL JÓ ADOTTSÁGOKKAL RENDELKEZŐ, TÁGAS, JÓ MEGJELENÉSŰ CSALÁDI HÁZ, ÉRD - FENYVES PARKVÁROSBAN

! ! ! 70 NÉGYZETMÉTERES AMERIKAI KONYHÁS NAPPALI ! ! !

EBBEN A HÁZBAN MINDEN MEGTALÁLHATÓ VAGY KIALAKITHATÓ, AMIRE CSAK VÁGYIK!

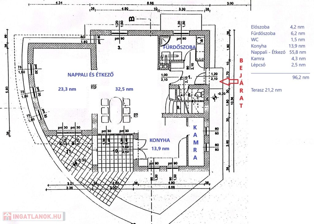
Jelenlegi elrendezésében:
- Tágas amerikai konyhás nappali, melyből könyvespolccal választottak le egy szobát
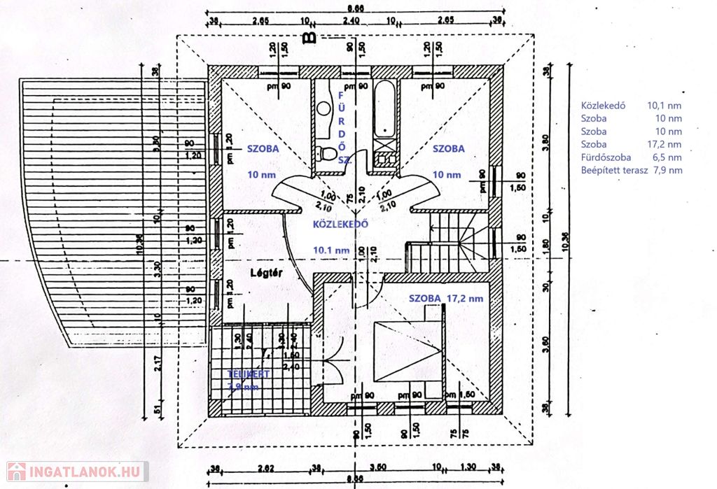
- 3 hálószoba
- 2 fürdőszoba
- kamra
- tágas közlekedő
- nagy terasz
- nyitott erkély
- beépített erkély

Azon kívül, hogy a közösségi tér hatalmas ebben a házban, a helyiséget igazán különlegessé és egyedivé teszi a két szint közötti nyitott átrium.

A HÁZ KIVÜLRŐL IS JÓ MEGJELENÉSŰ.
2004-ben épült, 38 tégla falazattal, 10 cm szigeteléssel.
Fűtésről és melegvízről gázcirkó gondoskodik, radiátoros hőleadókkal. A gázcirkó készülék 2025 januárjában lett cserélve.
A ház áram ellátása 3x16 Amper

A házban van néhány befejezetlen részlet, de egy esztétikai felújítást követően igazán egyedi és tágas otthona lehet egy nagyobb családnak is.

A kert sík, ideális méretű (776 nm) ahhoz, hogy mindennek is jusson hely. Kutyáknak szabad tér, gyerkőcöknek játszótér, felnőtteknek tágas terasz a pihenéshez. Kialakítható több autó számára beálló vagy garázs.

A HÁZ NAGYON KÖNNYEN EGYEDI IGÉNYEKRE SZABHATÓ
- az alsó szinten leválasztható fallal a 23,3 nm helyiség szobának és akkor is marad egy tágas nappali konyhával
- vagy a fürdőszoba magasságában egy fallal leválasztható egy 11 nm-s szoba
- ha kandallóra vágyik, az is megoldható, mert a házban dupla kémény van

- Az emeleten a nagy méretű szobából leválasztható egy külön gardrób
- az emeleti terasz beépítése megkezdődött, jelenleg télikert, de lehet nyitott erkély vagy szoba is.


A környék nyugodt, csendes, szép és rendezett házak veszik körbe az ingatlant.
Az utcában áll meg az iskolabusz, mely Bem tér és az új érdi iskola közt közlekedik.
Érdi Interspar és a Bem tér 10 perces sétával elérhető. Bem térről buszokkal lehet eljutni Budapest kelenföldi pályaudvarra.
Autóval 2 perc az M7 autópálya.

Az ingatlan igény-, per- és tehermentes.

JÖJJÖN EL, NÉZZE MEG, RITKA AZ ILYEN JÓ ADOTTSÁGÚ CSALÁDI HÁZ!



AMENNYIBEN NEM RENDELKEZIK A TELJES VÉTELÁRRAL, segítünk Önnek megtalálni a legjobb megoldást!
BANKFÜGGETLEN hitelcentrumunk minden elérhető bank és hitelintézet ajánlatát versenyezteti az Ön kedvéért, ráadásul díjmentesen. Önnek nincs más dolga, mint elbeszélgetni munkatársunkkal, aki a hallott információk alapján versenyre hívja a bankokat, hogy Ön hosszú távon is a legjobb konstrukciót kaphassa. A legjobb ajánlatokból végül Ön választhatja ki a nyertest. Munkatársaink sokéves szakmai tapasztalattal várják Önt, előre egyeztetve akár a normál munkaidő után is.

Családi ház részletei

Ár: 124 900 000 Ft
Méret: 158 négyzetméter
Azonosító: 11497920
Irodai azonosító: 379592
Cím: Fenyves Parkváros
Telek: 780 négyzetméter
Ingatlan állapota: Átlagos
Jelleg: családi ház
Építőanyag: Tégla
Fűtés jellege: Cirkó
Fűtés módja: Gáz
Komfort fokozat: Dupla komfort
Kor: 21-50 éves
Szintek száma: 1 szint
Egész szobák: 5

Egyéb jellemzők

  • Csatorna
  • Garázs
  • Pince
  • Terasz

Térkép

Hasonló családi ház hirdetések

Eladó családi ház

Érd

Kedves Ingatlankereső! Ajánlom figyelmébe ezt a 2021-ben épült önálló ...

Eladó családi ház

Érd

CSOK KEDVEZMÉNYEK DECEMBER VÉGÉIG, RAGADD MEG AZ ALKALMAT! ÉRD PARKVÁROSBAN, ...

Eladó családi ház

Érd

ÚSZÓMEDENCE - CSODÁS KERT - IDILLI KÖRNYEZET! AKÁR 2 GENERÁCIÓ SZÁMÁRA ...

Eladó családi ház

Érd

Kedves Ingatlankereső! Ez a most épülő új építésű családi-ház KERESI ...

Hasonló családi ház hirdetések

Eladó családi ház

Érd

Kedves Ingatlankereső! Ajánlom figyelmébe ezt a 2021-ben épült önálló ...

Eladó családi ház

Érd

CSOK KEDVEZMÉNYEK DECEMBER VÉGÉIG, RAGADD MEG AZ ALKALMAT! ÉRD PARKVÁROSBAN, ...

Eladó családi ház

Érd

ÚSZÓMEDENCE - CSODÁS KERT - IDILLI KÖRNYEZET! AKÁR 2 GENERÁCIÓ SZÁMÁRA ...

Eladó családi ház

Érd

Kedves Ingatlankereső! Ez a most épülő új építésű családi-ház KERESI ...