Eladó családi ház Érd 129 700 000 Ft

Leírás

TUSCULÁNUM VÁROSRÉSZ SZÍVÉBEN, VARÁZSLATOS TELKEN ÉPÜLŐ, TÁGAS CSALÁDI HÁZ, HŐSZIVATTYÚS FŰTÉSSEL, TERASSZAL, GARÁZZSAL!


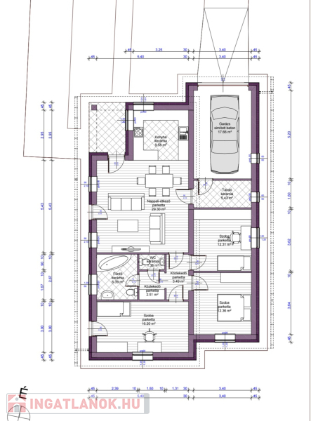
Érden eladó egy 580 m2-es, telken épülő, ÚJ ÉPÍTÉSŰ, nettó 110 m2-es, 3 szoba + nappalis,akár 4 szobás is lehet, igénynek megfelelően!

Az ingatlan ideális helyen épül, csend, nyugalom jellemzi a helyet!

Fontos, hogy az ingatlanvásárlás hosszú távon is értékálló befektetés legyen!

Kiváló adottságú telek előnyeit figyelembe véve alaposan átgondolt tervezés alapján épül az ingatlan benapozottsága optimális.

A beépített anyagok minőségének és a korszerű technológiának köszönhetően az ingatlan energiatakarékos, gazdaságosan üzemeltethető.

Rövid műszaki leírás:
A ház vasalt, szigetelt beton sávalapra épül, 30-as Porotherm tégla tartófalakkal és 10-es Porotherm tégla, vakolt válaszfalakkal.
A homlokzatra 15 cm-es dryvit, a lábazatra 10 cm-es xps, az aljzatra 10 cm-es lépésálló és a fa szerkezetű födémre 30 cm-es kőzetgyapot szigetelés kerül.
A tető fedése Terran cseréppel.
A fűtésről hőszivattyú gondoskodik, padlófűtéssel.

A hideg és meleg burkolatok igény szerint választhatók 5.000 Ft / nm árig.

Ajánlom mindazon gyerekes házaspároknak, pároknak, nyugdíjasoknak, akik egy igazán kiváló, jól megközelíthető, jó adottságokkal rendelkező, csendes, nyugodt helyen szeretnék élni a mindennapjaikat. Ha szeretne kiszabadulni a városi körforgásból, de mégsem akar végleg elszakadni tőle, akkor a legjobb választás ez a környék, ahol az ébredés után saját teraszán kortyolhatja a reggeli kávéját, szippanthatja magába a friss levegőt és hallgathatja a madarak csicsergését.

Amennyiben az ajánlatom felkeltette érdeklődését, kérem keressen telefonon.

Szép napot és sikeres vásárlást kívánok Önnek!

Családi ház részletei

Ár: 129 700 000 Ft
Méret: 120 négyzetméter
Azonosító: 11572283
Cím: Tusculánum
Telek: 580 négyzetméter
Ingatlan állapota: Kitűnő
Jelleg: családi ház
Építőanyag: Kérdezzen rá a hirdetőtől »
Egész szobák: 4

Egyéb jellemzők

  • Csatorna
  • Garázs
  • Kábel TV
  • Melléképület
  • Parketta
  • Pince
  • Terasz

Hasonló családi ház hirdetések

Eladó családi ház

Érd

Kedves Ingatlankereső! Ajánlom figyelmébe ezt a 2021-ben épült önálló ...

Eladó családi ház

Érd

Kedves Ingatlankereső! Ez a most épülő új építésű családi-ház KERESI ...

Eladó családi ház

Érd

Kedves Ingatlankereső! Ez a most épülő új építésű családi-ház KERESI ...

Eladó családi ház

Érd

Kedves Ingatlankereső! Ha Érden szeretne élni, és természetközeli nyugalomra ...

Hasonló családi ház hirdetések

Eladó családi ház

Érd

Kedves Ingatlankereső! Ajánlom figyelmébe ezt a 2021-ben épült önálló ...

Eladó családi ház

Érd

Kedves Ingatlankereső! Ez a most épülő új építésű családi-ház KERESI ...

Eladó családi ház

Érd

Kedves Ingatlankereső! Ez a most épülő új építésű családi-ház KERESI ...

Eladó családi ház

Érd

Kedves Ingatlankereső! Ha Érden szeretne élni, és természetközeli nyugalomra ...