Eladó családi ház Érd 129 900 000 Ft

Leírás

TÁGAS ÖNÁLLÓ CSALÁDI HÁZ, KIVÁLÓ KÖZLEKEDÉSSEL, HŐSZIVATTYÚS FŰTÉSSEL, TERASSZAL, GARÁZZSAL!

CSERÉPSZÍN, HOMLOKZATSZÍN VÁLTOZTATHATÓ!

Ajánlom figyelmébe, ezt az önálló családi házat, tágas garázzsal a Krasznahorkai utcában!
Csend, nyugalom, barátságos szomszédok jellemzi ezt a helyet!

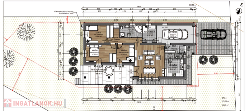
Érden eladó egy 670 m2-es, telken épülő, ÚJ ÉPÍTÉSŰ, nettó 123 m2-es,bruttó 152 nm-es 3 szoba + 1 fél,+ nappalis, garázzsal,
családi ház, 30 nm-es terasszal, hőszivattyúval, várja leendő tulajdonosát!
A TELKEN AZ ÉPÍTTETŐ MEGHAGYTA A FÁKAT, CSERJÉKET, ÍGY NEM KELL VÁRNI ÉVEKET, MÍG ZÖLD KÖRNYEZETET KAPUNK!

Fontos, hogy az ingatlanvásárlás hosszú távon is értékálló befektetés legyen!

Kiváló adottságú telek előnyeit figyelembe véve alaposan átgondolt tervezés alapján épül az ingatlan benapozottsága optimális.

A beépített anyagok minőségének és a korszerű technológiának köszönhetően az ingatlan energiatakarékos, gazdaságosan üzemeltethető.

Rövid műszaki leírás:
A ház vasalt, szigetelt beton sávalapra épül, 30-as OKOS tégla tartófalakkal és 10-es Porotherm tégla, vakolt válaszfalakkal.
A homlokzatra 15 cm-es dryvit, a lábazatra 10 cm-es xps, az aljzatra 10 cm-es lépésálló és a fa szerkezetű födémre 30 cm-es kőzetgyapot szigetelés kerül.
A tető fedése Terran cseréppel.
A fűtésről hőszivattyú gondoskodik, padlófűtéssel.

A hideg és meleg burkolatok igény szerint választhatók 5.000 Ft / nm árig.

Ajánlom mindazon 1-3 gyerekes házaspároknak, pároknak, nyugdíjasoknak, akik egy igazán kiváló, jól megközelíthető, jó adottságokkal rendelkező, csendes, nyugodt helyen szeretnék élni a mindennapjaikat. Ha szeretne kiszabadulni a városi körforgásból, de mégsem akar végleg elszakadni tőle, akkor a legjobb választás ez a környék, ahol az ébredés után saját teraszán kortyolhatja a reggeli kávéját, szippanthatja magába a friss levegőt és hallgathatja a madarak csicsergését.

Amennyiben az ajánlatom felkeltette érdeklődését, kérem keressen telefonon.

Szép napot, és sikeres vásárlást kívánok Önnek!

Családi ház részletei

Ár: 129 900 000 Ft
Méret: 152 négyzetméter
Azonosító: 11566091
Telek: 670 négyzetméter
Ingatlan állapota: Kitűnő
Jelleg: családi ház
Építőanyag: Kérdezzen rá a hirdetőtől »
Egész szobák: 4
Fél szobák: 1

Egyéb jellemzők

  • Csatorna
  • Garázs
  • Kábel TV
  • Melléképület
  • Parketta
  • Pince
  • Terasz

Hasonló családi ház hirdetések

Eladó családi ház

Érd

FENYVES-PARKVÁROS SZÍVÉBEN, ÖNÁLLÓ CSALÁDI HÁZ TÁGAS TERASSZAL, KIVÁLÓ ...

Eladó családi ház

Érd

Kedves Ingatlankereső! Ajánlom figyelmébe ezt a 2021-ben épült önálló ...

Eladó családi ház

Érd, Fenyves-Parkváros

Otthon a nyugalom szívében – Érd Fenyves-Parkvárosában Érd egyik legkedveltebb, ...

Eladó családi ház

Érd

Érdligeten, Érd legjobb részén kínálunk eladásra egy 67 nm-es családi ...

Hasonló családi ház hirdetések

Eladó családi ház

Érd

FENYVES-PARKVÁROS SZÍVÉBEN, ÖNÁLLÓ CSALÁDI HÁZ TÁGAS TERASSZAL, KIVÁLÓ ...

Eladó családi ház

Érd

Kedves Ingatlankereső! Ajánlom figyelmébe ezt a 2021-ben épült önálló ...

Eladó családi ház

Érd, Fenyves-Parkváros

Otthon a nyugalom szívében – Érd Fenyves-Parkvárosában Érd egyik legkedveltebb, ...

Eladó családi ház

Érd

Érdligeten, Érd legjobb részén kínálunk eladásra egy 67 nm-es családi ...