Eladó családi ház Érd 147 000 000 Ft

Leírás

Az ingatlan egyik legnagyobb előnye, hogy a lakóházon kívül a telken még az alábbi, különálló épületek is megtalálhatók:

-Önálló, külön bejáratú üzlethelyiség.
-Különálló tároló/raktár.
-Fedett gépkocsibeálló.

Ház:
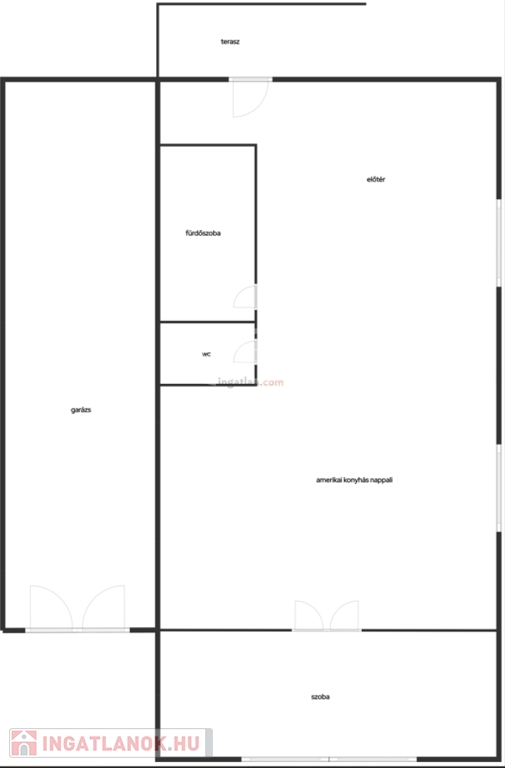
Az ingatlan két külön lakásra osztható, így rugalmasan használható akár bérbeadásra, akár saját vállalkozás + lakhatás kombinációra is.


Alsó szinten nappali, étkező-konyha, 2 szoba és fürdő található.

Tetőtéri rész amerikai konyhás nappalival + hálóval, külön WC-vel és fürdővel rendelkezik.
Itt akár önálló bérlői egységek vagy egy nagyobb családi otthon is kialakítható.
37m2-es hosszú, szerelőaknás garázs.

Nyílászárók: vegyes típusúak (modern fa és műanyag)
Új villanyhálózat.

Elhelyezkedés: frekventált, főút menti pozíció. Jó láthatóság!
Rugalmas beosztás: különálló egységek kialakítására.
Többféle hasznosítás: lakó + üzleti funkció egy helyen.
Erős piaci kereslet: az ilyen jellegű ingatlanok hosszú távon stabil bérleti lehetőséget kínálnak (pl. irodának vagy szolgáltató egységnek is keresett).

AMENNYIBEN NEM RENDELKEZIK A TELJES VÉTELÁRRAL, segítünk Önnek megtalálni a legjobb megoldást!
BANKFÜGGETLEN hitelcentrumunk minden elérhető bank és hitelintézet ajánlatát versenyezteti az Ön kedvéért, ráadásul díjmentesen. Önnek nincs más dolga, mint elbeszélgetni munkatársunkkal, aki a hallott információk alapján versenyre hívja a bankokat, hogy Ön hosszú távon is a legjobb konstrukciót kaphassa. A legjobb ajánlatokból végül Ön választhatja ki a nyertest. Munkatársaink sokéves szakmai tapasztalattal várják Önt, előre egyeztetve akár a normál munkaidő után is.

Családi ház részletei

Ár: 147 000 000 Ft
Méret: 180 négyzetméter
Azonosító: 11602885
Irodai azonosító: 393167
Cím: Riminyáki út
Telek: 577 négyzetméter
Ingatlan állapota:
Jelleg: családi ház
Építőanyag: Tégla
Fűtés jellege: Cirkó
Fűtés módja: Gáz
Komfort fokozat: Összkomfort
Kor: 50 évesnél régebbi
Szintek száma: 1 szint
Egész szobák: 4
Fél szobák: 1

Egyéb jellemzők

  • Csatorna
  • Garázs
  • Pince
  • Terasz

Térkép

Hasonló családi ház hirdetések

Eladó családi ház

Érd

Kedves Ingatlankereső! Ez a most épülő új építésű családi-ház KERESI ...

Eladó családi ház

Érd

Kedves Ingatlankereső! Ez a most épülő új építésű családi-ház KERESI ...

Eladó családi ház

Érd, Fenyves-Parkváros

Otthon a nyugalom szívében – Érd Fenyves-Parkvárosában Érd egyik legkedveltebb, ...

Eladó családi ház

Érd

Kedves Ingatlankereső! Ha Érden szeretne élni, és természetközeli nyugalomra ...

Hasonló családi ház hirdetések

Eladó családi ház

Érd

Kedves Ingatlankereső! Ez a most épülő új építésű családi-ház KERESI ...

Eladó családi ház

Érd

Kedves Ingatlankereső! Ez a most épülő új építésű családi-ház KERESI ...

Eladó családi ház

Érd, Fenyves-Parkváros

Otthon a nyugalom szívében – Érd Fenyves-Parkvárosában Érd egyik legkedveltebb, ...

Eladó családi ház

Érd

Kedves Ingatlankereső! Ha Érden szeretne élni, és természetközeli nyugalomra ...