Eladó családi ház Érd 154 500 000 Ft

Leírás

Kedves Ingatlankereső!

Ez a most épülő új építésű családi-ház KERESI tulajdonosát!!

TÖKÉLETES VÁLASZTÁS A NAGYVÁROSOK ZAJÁTÓL TÁVOLI, ENERGIAHATÉKONY ÁLOMOTTHONT KERESŐK SZÁMÁRA!

Szeretné meglepni szeretteit vagy biztonságban tudni a pénzét?

Akkor ha ön is így gondolja ajánlanám ezt az ingatlant!!

JÖJJENEK, NÉZZENEK KÖRÜL, HOGYAN IS ALAKÍTANÁK KI AZ ÖNÖK IGÉNYEI SZERINT SZÉP OTTHONNÁ!!

Kérem hívjon, találkozzunk a helyszínen, hogy körbesétálhassunk a nyugodt , szép környezetben megépülő ingatlant, alakítsuk ki együtt az Ön és kedves családja szép új otthonát :)

Az energiahatékonyság jegyében HŐSZIVATTYÚ rendszert alkalmaztunk, mely nagyon ENERGIATAKARÉKOS FELHASZNÁLÁST tesz lehetővé.

A kivitelező törekszik arra,hogy magas minőségű,egyedi kivitelezésű ingatlant alkosson ezen a nem mindennapi környéken!!

A ház – csakúgy, mint a kivitelező számtalan, megtekinthető referencia háza esetében is – magas minőségi anyagok felhasználásával és magas műszaki tartalommal épül.

A házat ajánljuk családosoknak, hiszen itt minden az Állam adta kedvezményt, lehetőséget kihasználhatnak, legyen az Babaváró, CSOK támogatás és hitel is!

Miért ne venné igénybe az Állam adta támogatásokat, lehetőségeket? Döntsön okosan, használja ki amíg lehet!

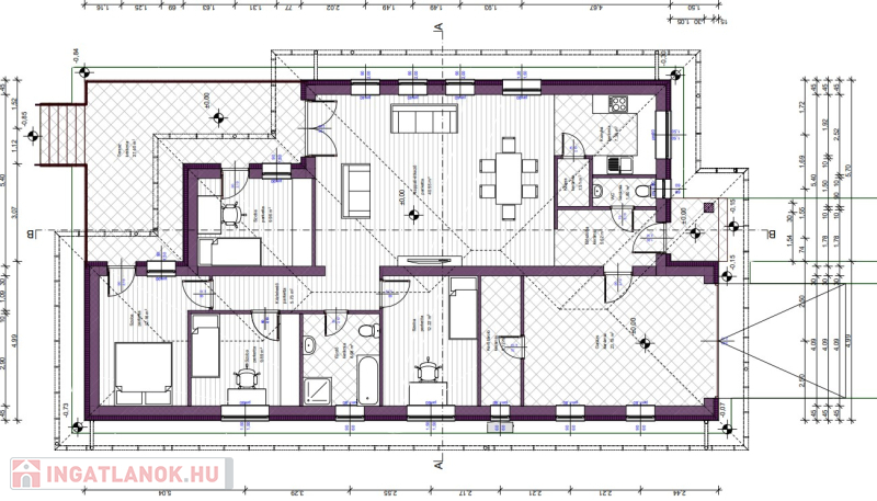
Leendő tulajdonosának lehetősége van az alaprajzon a statikát nem érintő, mozgatható válaszfalak módosítására, igénye szerint, valamint a belső burkolatok, ajtók kiválasztására, megadott értékhatárig.

Rövid műszaki leírás:
-30-as téglafal
-15cm szigetelés
-10cm válaszfalak
-műanyag nyílászárók
-hőszivattyús fűtésrendszer
-padlófűtés mindenhol
-elektromos nagykapu
-elektromos garázskapu
-H tarifa


Ez az ingatlanok részleteiben igen gazdag elgondolás szerint lesznek megépítve. Tapasztalt a kivitelező cég, így megannyi referencia munkával igazolható, hogy a megálmodástól a megvalósításhoz vezető út nem csak egy illúzió. Az építkezés során szigorúan csak a legmagasabb minőségű anyagokat fogja a kivitelező felhasználni, hogy igazán exkluzív otthont hozzon létre.
Mindemellett számítunk az Ön igényeinek bevonásaira is, burkolatok és szaniterek és egyéb kiegészítők tekintetében.


Aki a csendre, nyugalomra vágyik a zöldövezetben, luxus környezetben szeretne élni, de fontos neki, hogy elérhető távolságra legyen a város nyüzsgése is, annak kiváló választás ez a környék.

HÍVJON FEL, KÉRJEN EGY IDŐPONTOT, JÖJJÖN, NÉZZE MEG!

Nekem ebben az ingatlanban az elhelyezkedése mellett, a formálhatósága és a benne rejlő rengeteg lehetőség tetszik a legjobban.

Ha Ön is így látja, hívjon, nézze meg, legyen az új tulajdonosa mielőbb!

Nem fogja megbánni!


Szép napot sikeres vásárlást kívánok!

Köszönöm hogy időt szánt a hirdetésemre!

Családi ház részletei

Ár: 154 500 000 Ft
Méret: 140 négyzetméter
Azonosító: 11533290
Telek: 732 négyzetméter
Ingatlan állapota: Kitűnő
Jelleg: családi ház
Építőanyag: Kérdezzen rá a hirdetőtől »
Egész szobák: 5

Egyéb jellemzők

  • Csatorna
  • Garázs
  • Kábel TV
  • Melléképület
  • Parketta
  • Pince
  • Terasz

Hasonló családi ház hirdetések

Eladó családi ház

Érd

Budapest vonzáskörzetében, Érden eladásra kínálunk nettó 157 nm alapterületű ...

Eladó családi ház

Érd

Érd közkedvelt, újépítésű részén kínálok megvételre egy kiváló ...

Eladó családi ház

Érd

Kedves Ingatlankereső! Ajánlom figyelmébe ezt az iker-ház hátsó részét! Szeretné ...

Eladó családi ház

Érd

Kedves Ingatlankereső! Ha Érden szeretne élni, és természetközeli nyugalomra ...

Hasonló családi ház hirdetések

Eladó családi ház

Érd

Budapest vonzáskörzetében, Érden eladásra kínálunk nettó 157 nm alapterületű ...

Eladó családi ház

Érd

Érd közkedvelt, újépítésű részén kínálok megvételre egy kiváló ...

Eladó családi ház

Érd

Kedves Ingatlankereső! Ajánlom figyelmébe ezt az iker-ház hátsó részét! Szeretné ...

Eladó családi ház

Érd

Kedves Ingatlankereső! Ha Érden szeretne élni, és természetközeli nyugalomra ...