Eladó családi ház Érd 164 900 000 Ft

Leírás

TUSCULÁNUM VÁROSRÉSZ SZÍVÉBEN, VARÁZSLATOS TELKEN ÉPÜLŐ, TÁGAS CSALÁDI HÁZ, HŐSZIVATTYÚS FŰTÉSSEL, DUPLA GARÁZZSAL!

AZ INGATLAN MÁJUSRA KULCSRAKÉSZ!


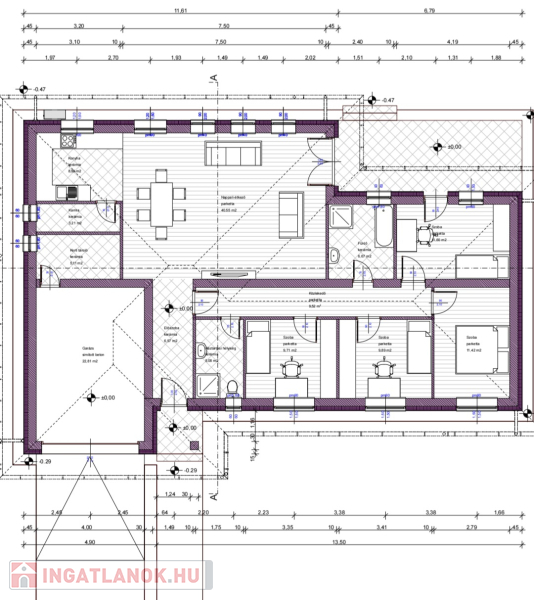
Érden eladó egy 700 m2-es, telken épülő, ÚJ ÉPÍTÉSŰ, nettó 127,41 m2-es, 4 szoba + nappali!

Az ingatlan ideális helyen épül, csend, nyugalom jellemzi a helyet!

Fontos, hogy az ingatlanvásárlás hosszú távon is értékálló befektetés legyen!

Kiváló adottságú telek előnyeit figyelembe véve alaposan átgondolt tervezés alapján épül az ingatlan benapozottsága optimális.

A beépített anyagok minőségének és a korszerű technológiának köszönhetően az ingatlan energiatakarékos, gazdaságosan üzemeltethető.

Rövid műszaki leírás:
A ház vasalt, szigetelt beton sávalapra épül, 30-as Porotherm tégla tartófalakkal és 10-es Porotherm tégla, vakolt válaszfalakkal.
A homlokzatra 15 cm-es dryvit, a lábazatra 10 cm-es xps, az aljzatra 10 cm-es lépésálló és a fa szerkezetű födémre 30 cm-es kőzetgyapot szigetelés kerül.
A tető fedése Terran cseréppel.
A fűtésről hőszivattyú gondoskodik, padlófűtéssel.

A hideg és meleg burkolatok igény szerint választhatók!

Ajánlom mindazon 1-3 gyerekes házaspároknak, pároknak, nyugdíjasoknak, akik egy igazán kiváló, jól megközelíthető, jó adottságokkal rendelkező, csendes, nyugodt helyen szeretnék élni a mindennapjaikat. Ha szeretne kiszabadulni a városi körforgásból, de mégsem akar végleg elszakadni tőle, akkor a legjobb választás ez a környék, ahol az ébredés után saját teraszán kortyolhatja a reggeli kávéját, szippanthatja magába a friss levegőt és hallgathatja a madarak csicsergését.

Amennyiben az ajánlatom felkeltette érdeklődését, kérem keressen telefonon.

Szép napot és sikeres vásárlást kívánok Önnek!

Családi ház részletei

Ár: 164 900 000 Ft
Méret: 152 négyzetméter
Azonosító: 11596113
Cím: Parkváros
Telek: 700 négyzetméter
Ingatlan állapota: Kitűnő
Jelleg: családi ház
Építőanyag: Kérdezzen rá a hirdetőtől »
Egész szobák: 5

Egyéb jellemzők

  • Csatorna
  • Garázs
  • Kábel TV
  • Melléképület
  • Parketta
  • Pince
  • Terasz

Hasonló családi ház hirdetések

Eladó családi ház

Érd

Budapest vonzáskörzetében, Érden eladásra kínálunk nettó 157 nm alapterületű ...

Eladó családi ház

Érd

ÖRÖK PANORÁMÁS, ÖNÁLLÓ CSALÁDI HÁZ, NAGY TELEKKEL kiemelkedő minőségben! DÍJNYERTES ...

Eladó családi ház

Érd

Kedves Ingatlankereső! Ajánlom figyelmébe ezt a TÁRSASHÁZAT! Szeretné ...

Eladó családi ház

Érd

5600 NM - EZ NEM PUSZTÁN EGY TELEK. EZ BIRTOK. RENGETEG LEHETŐSÉGGEL CSALÁDI ...

Hasonló családi ház hirdetések

Eladó családi ház

Érd

Budapest vonzáskörzetében, Érden eladásra kínálunk nettó 157 nm alapterületű ...

Eladó családi ház

Érd

ÖRÖK PANORÁMÁS, ÖNÁLLÓ CSALÁDI HÁZ, NAGY TELEKKEL kiemelkedő minőségben! DÍJNYERTES ...

Eladó családi ház

Érd

Kedves Ingatlankereső! Ajánlom figyelmébe ezt a TÁRSASHÁZAT! Szeretné ...

Eladó családi ház

Érd

5600 NM - EZ NEM PUSZTÁN EGY TELEK. EZ BIRTOK. RENGETEG LEHETŐSÉGGEL CSALÁDI ...