Eladó családi ház Érd 166 900 000 Ft

Leírás

PANORÁMÁS KILÁTÁSSAL, ÖNÁLLÓ CSALÁDI HÁZ, KIVÁLÓ KÖZLEKEDÉSSEL!


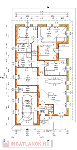
Ajánlom figyelmébe, ezt az önálló családi házat,ami nettó 197 nm-es, bruttó 235 nm-es!

Exkluzív otthonra vágyik, ahol a luxus, kényelem és nyugalom találkozik? Ne keressen tovább!

TÖKÉLETES VÁLASZTÁS A NAGYVÁROSOK ZAJÁTÓL TÁVOLI, ENERGIAHATÉKONY ÁLOMOTTHONT KERESŐK SZÁMÁRA!

Az energiahatékonyság jegyében HŐSZIVATTYÚ rendszert alkalmaztunk, mely nagyon ENERGIATAKARÉKOS FELHASZNÁLÁST tesz lehetővé.


Olyan kertes házra vágyik,melynek párja nincs a környéken és csak a bőröndöt kell begurítania?
Akkor ne keressen tovább Megtalálta!

A kivitelező törekszik arra,hogy magas minőségű,egyedi kivitelezésű ingatlant alkosson ezen a nem mindennapi környéken!!

A ház – csakúgy, mint a kivitelező számtalan, megtekinthető referencia háza esetében is – magas minőségi anyagok felhasználásával és magas műszaki tartalommal épül.


Fontos, hogy az ingatlanvásárlás hosszú távon is értékálló befektetés legyen!

A házat ajánljuk családosoknak, hiszen itt minden az Állam adta kedvezményt, lehetőséget kihasználhatnak, legyen az Babaváró, CSOK támogatás és hitel is!

Miért ne venné igénybe az Állam adta támogatásokat, lehetőségeket? Döntsön okosan, használja ki amíg lehet!

Rövid műszaki leírás:
-téglafal 30-as
-válaszfalak 10cm
-hőszigetelés 15cm
-beton cserép fedés
-hőszivattyús fűtés rendszer,300literes melegvíz tárolóval
-Hősszivattyú
-padlófűtés
-2 db.klíma,
-riasztó rendszer,
-külső-belső márványpárkányok
-motoros kapu
-motoros garázskapu
-kaputelefon
-elektromos redőnyök
-szúnyogháló
-beltéri ajtók 100EFt-ig választhatóak
-burkolatok 8EFt-ig.

HÍVJON FEL, KÉRJEN EGY IDŐPONTOT, JÖJJÖN, NÉZZE MEG!

Nekem ebben az ingatlanban az elhelyezkedése mellett, a formálhatósága és a benne rejlő rengeteg lehetőség tetszik a legjobban.

Ha Ön is így látja, hívjon, nézze meg, legyen az új tulajdonosa mielőbb!

Ez az ingatlan nem csak egy ház, hanem egy életérzés! Foglaljon időpontot még ma egy személyes megtekintésre!


Nem fogja megbánni!


Szép napot sikeres vásárlást kívánok!

Köszönöm hogy időt szánt a hirdetésemre!

Készséggel állok rendelkezésre további kérdésekkel kapcsolatban!

Családi ház részletei

Ár: 166 900 000 Ft
Méret: 235 négyzetméter
Azonosító: 11536583
Cím: Fenyves-parkváros
Telek: 998 négyzetméter
Ingatlan állapota: Kitűnő
Jelleg: családi ház
Építőanyag: Kérdezzen rá a hirdetőtől »
Egész szobák: 5

Egyéb jellemzők

  • Csatorna
  • Garázs
  • Kábel TV
  • Melléképület
  • Parketta
  • Pince
  • Terasz

Hasonló családi ház hirdetések

Eladó családi ház

Érd

Budapest vonzáskörzetében, Érden eladásra kínálunk nettó 157 nm alapterületű ...

Eladó családi ház

Érd

ÖRÖK PANORÁMÁS, ÖNÁLLÓ CSALÁDI HÁZ, NAGY TELEKKEL kiemelkedő minőségben! DÍJNYERTES ...

Eladó családi ház

Érd

5600 NM - EZ NEM PUSZTÁN EGY TELEK. EZ BIRTOK. RENGETEG LEHETŐSÉGGEL CSALÁDI ...

Eladó családi ház

Érd

Kedves Ingatlankereső! Ha Érden szeretne élni, és természetközeli nyugalomra ...

Hasonló családi ház hirdetések

Eladó családi ház

Érd

Budapest vonzáskörzetében, Érden eladásra kínálunk nettó 157 nm alapterületű ...

Eladó családi ház

Érd

ÖRÖK PANORÁMÁS, ÖNÁLLÓ CSALÁDI HÁZ, NAGY TELEKKEL kiemelkedő minőségben! DÍJNYERTES ...

Eladó családi ház

Érd

5600 NM - EZ NEM PUSZTÁN EGY TELEK. EZ BIRTOK. RENGETEG LEHETŐSÉGGEL CSALÁDI ...

Eladó családi ház

Érd

Kedves Ingatlankereső! Ha Érden szeretne élni, és természetközeli nyugalomra ...