Eladó családi ház Érd 98 000 000 Ft

Leírás

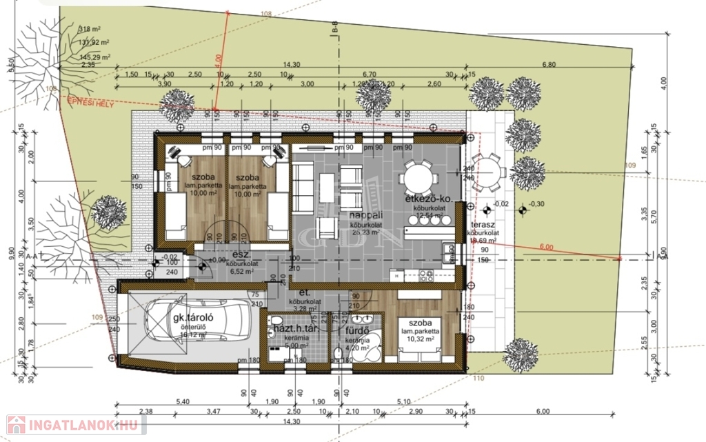
Eladó épülő családiház, Érd Ófaluban

ELADÓ építési engedéllyel rendelkező nappali + 3 hálószobás családiház, közel a vízparthoz. A kiváló műszaki paraméterekkel épülő házhoz tartozik egy garázs és tároló is.
A műszaki tartalom és az alaprajz tekintetében még lehetőség van módosítások kérésére.

Helyiségek: 105 nm
Amerikai-konyhás nappali. 3 hálószoba, háztartási helyiség, duplakomfort, garázs

Terasz: 27 nm
Garázs: 16 nm
Kert: 145 nm

TELEK: 318nm

Főbb műszaki paraméterek:
- vasaltbeton sávalap
- szerkezete: 30-as Ytong
- 15cm Dryvit hőszigetelés
- hőszivattyú 12 kW- os
- hűtő-fűtő klíma
- 3 rétegű műanyag nyílászárók hőszigetelő üvegezéssel
- rejtett redőnyök
- fafödém
- betoncserép

Közművek: víz, villany, csatorna az ingatlanban.
Parkolás: saját garázs

MEGBÍZHATÓ KIVITELEZŐ, TÖBB MINT 20 ÉVES tapasztalattal, számos referencia munkával a családi és társasházak kivitelezésében.

Várható átadás: 2026.II. negyedév

Ha minőségi otthonra vágyik kiváló infrastruktúrával, ne hagyja ki ezt az ajánlatot! Érdeklődjön most!
Az adatok tájékoztató jellegűek!

AMENNYIBEN NEM RENDELKEZIK A TELJES VÉTELÁRRAL, segítünk Önnek megtalálni a legjobb megoldást!

INFRASTRUKTÚRA:
Érd remek választás mind az infrastruktúra, mind a közlekedés szempontjából. A környéken számos iskola, óvoda, egészségügyi intézmény és bevásárlási lehetőség található, így minden fontos szolgáltatás könnyen elérhető.

KÖZLEKEDÉS:
Érdet több fő út és autópálya szeli át, amelyek gyorsan elérhetővé teszik Budapest belvárosát és a környező településeket. Az M7-es és M6-os autópályák közelében található, így az autós közlekedés rendkívül gyors és kényelmes. Emellett a tömegközlekedés is jól működik, buszok és vonatok biztosítják a zökkenőmentes utazást a fővárosba és a környező városokba.

Családi ház részletei

Ár: 98 000 000 Ft
Méret: 105 négyzetméter
Azonosító: 11564075
Irodai azonosító: 387123
Cím: Épülő családi ház, Érd-Ófalu
Telek: 318 négyzetméter
Ingatlan állapota: Kitűnő
Jelleg: családi ház
Építőanyag: Kérdezzen rá a hirdetőtől »
Fűtés jellege: Geotermikus
Fűtés módja: Hőszivattyú
Komfort fokozat: Összkomfort
Kor: Új építésű
Szintek száma: Földszintes
Egész szobák: 1
Fél szobák: 3

Egyéb jellemzők

  • Csatorna
  • Garázs
  • Pince
  • Terasz

Térkép

Hasonló családi ház hirdetések

Eladó családi ház

Érd

Családi házas övezet csendes zsákutcájában, 2 lakásos épületben, emeleti, ...

Eladó családi ház

Érd

Újszerű, belső kétszintes családi ház eladó Érd Parkvárosban! Eladásra ...

Eladó családi ház

Érd

Budapesti vagy Balaton környéki ingatlan beszámítása lehetséges – értékegyeztetéssel! Érden, ...

Eladó családi ház

Érd

BELSŐ KÉTSZINTES, HŐSZIVATTYÚS FŰTÉSSEL, KERTKAPCSOLATOS, MODERN STÍLUSÚ, ...

Hasonló családi ház hirdetések

Eladó családi ház

Érd

Családi házas övezet csendes zsákutcájában, 2 lakásos épületben, emeleti, ...

Eladó családi ház

Érd

Újszerű, belső kétszintes családi ház eladó Érd Parkvárosban! Eladásra ...

Eladó családi ház

Érd

Budapesti vagy Balaton környéki ingatlan beszámítása lehetséges – értékegyeztetéssel! Érden, ...

Eladó családi ház

Érd

BELSŐ KÉTSZINTES, HŐSZIVATTYÚS FŰTÉSSEL, KERTKAPCSOLATOS, MODERN STÍLUSÚ, ...