Eladó családi ház Fehérvárcsurgó 74 900 000 Ft

Leírás

UTOLSÓ LAKÁS A LAKÓPARKBAN - KIVÉTELES LEHETŐSÉG PRÉMIUM KÖRNYEZETBEN!

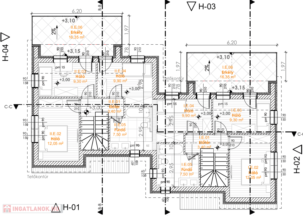
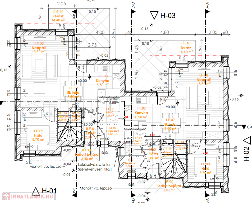
Székesfehérvár agglomerációjában, a Gaja-völgyi tájvédelmi centrum peremén épülő luxus lakóparkban kínáljuk eladásra ezt a 4 szoba + nappalis, igényes kivitelezésű, exclusive ikerházat.

A minőségi anyagokból épült, A++ besorolású, korszerű családi otthon 4 hálószobával, emeletenként egy-egy fürdőszobával, földszinti amerikai-konyhás nappalival, 30 nm-es terasszal és elektromos kapuval zárt kerttel várja első lakóit. A zárt, sorompón át megközelíthető, portaszolgálattal rendelkező lakópark kizárólag lakók számára igénybe vehető, díjmentes wellness szolgáltatást nyújt a közös költség keretén belül. Két medencével, hozzájuk kapcsolódó vendéglátóegységgel, fitnesz és szépségipari szolgáltatásokkal biztosít színvonalas pihenést a családok számára.

A lakópark biztonságáról az üzemeltető által működtetett kamera- és portarendszer gondoskodik.
Az ingatlan fűtését levegő-vízrendszerű, 8,5 kW teljesítményű hőszivattyú biztosítja, padlófűtésen keresztül. A hőmérséklet 2 db termosztáttal szabályozható az ingatlanon belül. Meleg vizet szintén a hőszivattyú által fűtött, 150 literes hőtárolós tartály szolgáltat. Víz és villany egyéni fogyasztás alapján kerül elszámolásra, gáz nem elérhető az ingatlanban.

Parkolás az udvaron kialakított, térkövezett gépkocsibeállón lehetséges, 1 autó számára.

Szerkezeti jellemzők:
- 30-as Porotherm tégla falazat
- 10-es Ytong válaszfalak
- hőszigetelt, 3 rétegű, 5 kamrás műanyag nyílászárók, redőnyökkel (fehér színben)
- nyíló-bukó nyílászárók (fehér színben)
- belül műanyag, kívül fémlemez ablakpárkányok
- fa beltéri ajtók
- minőségi, kezelt fa tetőszerkezet betoncserép fedéssel
- tetőcseréphez színben illő ereszcsatorna
- tört fehér Dryvit vakolat tetőcseréphez illeszkedő, sötétebb színű díszítéssel

Szigetelés:
- 12 cm-es homlokzati hőszigetelés
- 8 cm-es vízálló lábazat szigetelés
- 12 cm-es lépésálló szigetelés a padlózatban

Gépészet:
- 8,5 kW teljesítményű hőszivattyú
- padlófűtés
- hőszivattyú által üzemeltetett 150 literes meleg víz tartály
- 3 x 16 A túlfeszültség elleni védelemmel, életvédelmi fi-relével
- Legrand Valena kapcsolók és konektorok fehér színben

Kulcsrakész vételár tartalmazza:
- választható szaniterek
- választható hidegburkolatok
- választható meleg burkolatok
- 1 db térkövezett kocsibeálló
- bejárati ajtó
- kerítéssel körülhatárolt udvar elektromos kapuval

A kulcsrakész vételár nem tartalmazza (előre egyeztetett felár ellenében kérhető):
- konyhabútor
- lámpatestek
- emelő-toló teraszajtó
- klíma
- riasztó
- H-tarifa előkészítés
- rejtett tokú redőnyök szúnyoghálóval
- kerti öntözőrendszer 1 db kerti csappal
- gyepszőnyeg
- udvari medence

Fehérvárcsurgó rendezett, csendes településén bolt, bölcsőde, óvoda, iskola, orvos, gyógyszertár egyaránt elérhető. Székesfehérvár és Mór autóval 15 perc alatt megközelíthető. A tömegközlekedés Székesfehérvár irányába megfelelő.
Kitűnő választás biztonságos, igényes otthont kereső családok, családtervezés előtt álló fiatalok számára!
Kulcsrakész átadás megállapodás szerint, a szerződéskötéstől számított 8-10 hónap.

Az ingatlanra CSOK hitelkonstrukció igényelhető, melynek ügyintézésében segítséget tudunk nyújtani.

Irányár: 74,9 M

Bővebb információért keressen minket bizalommal, segítünk megtalálni új otthonát.

Családi ház részletei

Ár: 74 900 000 Ft
Méret: 114 négyzetméter
Azonosító: 11473128
Telek: 400 négyzetméter
Összesített energetikai besorolás: A++
Ingatlan állapota: Épülő
Jelleg: ikerház
Építőanyag: Tégla
Fűtés jellege: Hőszivattyú
Fűtés módja: Hőszivattyú
Komfort fokozat: Összkomfort
Kor: Új építésű
Elhelyezkedés: Udvari
Szintek száma: 2 szint
Egész szobák: 4
Nappalik: 1

Egyéb jellemzők

  • Terasz

Térkép

Videók (1)