Eladó családi ház Fonyód 39 200 000 Ft

Leírás

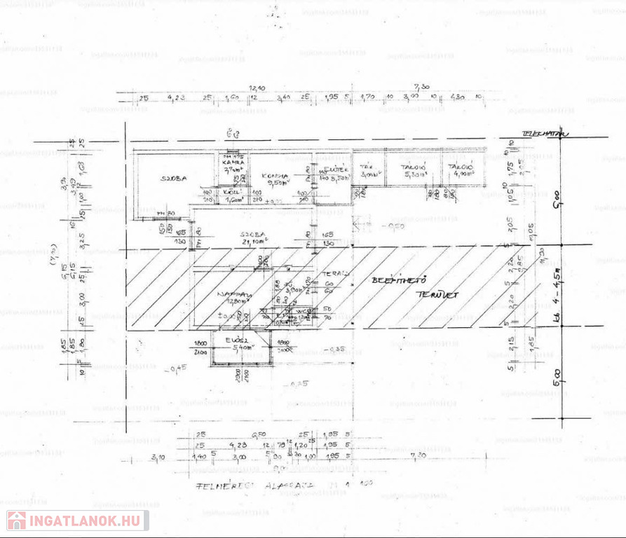
Somogy vármegye, Fonyód, 88m-es családi ház eladó. Az 518m2-es telken elhelyezkedő részben felújítandó ingatlan lakótere 78m2, míg a fedett terasz 20m2. A családi ház rendhagyó módon két külön bejáratú, ám egybenyitható lakrésszel rendelkezik. Az utcafronti lakrészben előszoba, nappali, fürdőszoba és hálószoba, míg a hátsó részben előtér, konyha, kamra, közlekedő és hálószoba került kialakításra. A 70-es évek közepén épült ház melegéről gáz-konvektoros fűtés gondoskodik. Az udvarán melléképületekkel is rendelkező ingatlantól a Balaton part 1,5km távolságra található.

Családi ház részletei

Ár: 39 200 000 Ft
Méret: 88 négyzetméter
Azonosító: 11568741
Irodai azonosító: 337109
Telek: 518 négyzetméter
Ingatlan állapota: Átlagos
Jelleg: családi ház
Építőanyag: Tégla
Fűtés jellege: Konvektoros
Fűtés módja: Gáz
Komfort fokozat: Komfort
Egész szobák: 3

Egyéb jellemzők

  • Terasz