Eladó családi ház Göd 165 900 000 Ft

Leírás

Alsógöd kertvárosában kínálunk eladásra két újépítésű, 166 m²-es családi házat, amelyhez 744 m²-es, külön elkerített kert tartozik.

A két lakóegység egy telken belül helyezkedik el, a megközelítés közös használatú magánúton történik, a házak ettől függetlenül önálló bejárattal és külön garázzsal rendelkeznek.

Az épület 30 cm-es téglafalazattal készül, 10 cm vastag külső dryvit hőszigeteléssel. A tető betoncserép fedést kap.

Az ingatlan korszerű műszaki tartalommal épül, a fűtést hőszivattyús rendszer biztosítja, a hőleadás padlófűtéssel történik. Az egész éves komfortot tovább növeli a 2 db inverteres klímaberendezés, melyek a vételár részét képezik, így az üzemeltetés energiatakarékos és kényelmes.

A külső nyílászárók műanyag szerkezetűek, hőszigetelő üvegezéssel kerülnek beépítésre, hozzájárulva az alacsony fenntartási költségekhez.

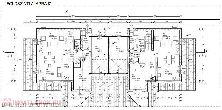
A lakótér tágas, jól átgondolt elrendezésű, kifejezetten családi életre tervezve.

Elosztása:

Földszint: Amerikai konyhás nappali, hálószoba, fürdőszoba, WC, garázs.

Emelet: 3 db Hálószoba, fürdőszoba, gépészeti helyiség és egy fedett terasz.

Az újépítés előnye, hogy nem igényel felújítást, azonnal költözhető állapotban van. A 744 m²-es, leválasztott kert valóban saját használatú, alkalmas pihenésre, gyerekeknek, kerti programokra vagy akár további fejlesztésekre is.

Várható átadás: 2026.December-2027.Január

Jelen esetben foglalózás után, hideg meleg burkolatok, beltéri nyílászárók, szaniterek választhatóak melyek a meghirdetett ár részét képezik a belső műszaki tartalom szerint.

Megtekintés érdekében vagy felmerülő kérdés esetén keresse irodánkat.

A hirdetésben szereplő adatok tájékoztató jellegűek.

Az ingatlan hitelre is megvásárolható. Bankfüggetlen tanácsadóink, az ország összes pénzintézete közül gyorsan és gördülékenyen találja meg az Önnek legmegfelelőbb konstrukciót, egyedi kedvezményekkel. A hitel és az ingatlan közvetítés vevőink részére díjmentes.

Családi ház részletei

Ár: 165 900 000 Ft
Méret: 166 négyzetméter
Azonosító: 11601285
Irodai azonosító: 24835
Telek: 744 négyzetméter
Ingatlan állapota: Épülő
Jelleg: családi ház
Építőanyag: Kérdezzen rá a hirdetőtől »
Fűtés jellege: Egyéb
Szintek száma: 1 szint
Egész szobák: 5

Hasonló családi ház hirdetések

Eladó családi ház

Göd, Felsőgöd

Kivételes, különleges lehetőséget ajánlok figyelmébe. Együtt, de még ...

Eladó családi ház

Göd

ÚJ ÉPÍTÉSŰ ÖNÁLLÓ, EGY SZINTES CSALÁDI HÁZ ELADÓ! CSALÁDI OTTHONTEREMTÉSI ...

Eladó családi ház

Göd

Felsőgödön, a Fő út és a vasút között, kertvárosi, kiváló infrastruktúrával ...

Eladó családi ház

Göd

Alsógödön csendes mellékutcában kínálunk megvételre egy újépítésű, ...

Hasonló családi ház hirdetések

Eladó családi ház

Göd, Felsőgöd

Kivételes, különleges lehetőséget ajánlok figyelmébe. Együtt, de még ...

Eladó családi ház

Göd

ÚJ ÉPÍTÉSŰ ÖNÁLLÓ, EGY SZINTES CSALÁDI HÁZ ELADÓ! CSALÁDI OTTHONTEREMTÉSI ...

Eladó családi ház

Göd

Felsőgödön, a Fő út és a vasút között, kertvárosi, kiváló infrastruktúrával ...

Eladó családi ház

Göd

Alsógödön csendes mellékutcában kínálunk megvételre egy újépítésű, ...