Eladó családi ház Gödöllő 109 890 000 Ft

Leírás

Gödöllő, Kertváros, ikerház, 80%-os készültség, magas műszaki tartalom!
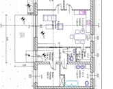
- 100 nm alapterület+25 nm garázs+16 NM terasz.
- Felosztás: amerikai konyhás nappali 35 nm, 3 teljes értékű szoba, fürdőszoba+wc (sarokkád, zuhanyzó, dupla mosdó), wc külön, kamra, előszoba.
- Műszaki tartalom:
* A ház vasalt, beton sávalapra épült, 30-as Porotherm tégla tartófalakkal, 10 cm Ytong válaszfalakkal, 20 cm homlokzati hőszigeteléssel, 25 cm fújt gyapot födém szigeteléssel, antracit Bramac tetőcseréppel készült.
* a hűtés-fűtéséről egy DAIKIN Altherma 3 R F típusú, saját hőszivattyús rendszer gondoskodik, (a gázcsonk a telken belül, lezárt állapotban van),
* a hőszivattyúval működtetett padlófűtés által alacsony energiafogyasztás biztosított, ami kedvezményes H- tarifával is elérhető,
*a napelemes rendszer előkészítése is megtörtént, mellyel további megtakarítás érhető el, ha később úgy dönt, hogy beszerelteti,
*kiváló hőszigeteléssel bíró, 3 rétegű, kívül antracit-belül fehér színű, SALAMANDER nyílászárók kerültek beépítésre,
*programozható, motoros, automata, hőszigetelt, aluminium redőny minden ablakon és a teraszajtókon is, antracit színben,
* épített betonkerítés készül a ház fehér színében, gondozásmentes, antracit aluminium kerítéslécekkel, úszókapuval,
*a 25 nm-es garázsba a bejutás egy antracit színű, motoros, automata garázskapun keresztül történik, ebben a helyiségben is padlófűtés lett kialakítva, illetve elektromos autó töltés lett előkészítve,
* kamera rendszer előkészítés kiépítésre került,
* az összes helyiség mozgásérzékelős előkészítése megtörtént
*a házban 4 klíma lehetősége került kiépítésre,
* a térkövezett kocsibeállón, valamint a kert részben is kiépítésre kerültek a kerti lámpák elhelyezésének lehetőségei,
*a melegvíz folyamatosan elérhető lehet a ház bármelyik csaptelepének használatával, nem kell várni, amíg a rendszerben körbeér, az ehhez szükséges keringetési lehetőség is előkészítésre került,
* A burkolatok, laminált parketták, szaniterek, csaptelepek, valamint a belső ajtók még választhatóak, az ingatlan a vevők igényeinek megfelelően kerül átadásra.
Az építkezés fotókkal dokumentál!
CSOK igénybevehető!
Hívjon bizalommal!

Családi ház részletei

Ár: 109 890 000 Ft
Méret: 125 négyzetméter
Azonosító: 11590294
Irodai azonosító: 386321
Cím: Balaton utca
Telek: 474 négyzetméter
Ingatlan állapota: Kitűnő
Jelleg: ikerház
Építőanyag: Tégla
Fűtés jellege: Geotermikus
Fűtés módja: Hőszivattyú
Komfort fokozat: Összkomfort
Kor: Új építésű
Szintek száma: Földszintes
Egész szobák: 4

Egyéb jellemzők

  • Csatorna
  • Garázs
  • Pince
  • Terasz

Térkép

Hasonló családi ház hirdetések

Eladó családi ház

Gödöllő

GÖDÖLLŐN 110 nm-es 3 szobás CSALÁDI HÁZ ELADÓ! Az ÖSSZKÖZMŰVES ...

Eladó családi ház

Gödöllő

Új építésű ikerház eladó Gödöllőn — modern kialakítás, kiváló ...

Eladó családi ház

Gödöllő

Gödöllőn 548 m2-es telken a Szilágyi Erzsébet utca és a Hunyadi János ...

Eladó családi ház

Gödöllő

Gödöllőn, Kertváros csendes részén, eladó egy 73 m²-es, földszinti ...

Hasonló családi ház hirdetések

Eladó családi ház

Gödöllő

GÖDÖLLŐN 110 nm-es 3 szobás CSALÁDI HÁZ ELADÓ! Az ÖSSZKÖZMŰVES ...

Eladó családi ház

Gödöllő

Új építésű ikerház eladó Gödöllőn — modern kialakítás, kiváló ...

Eladó családi ház

Gödöllő

Gödöllőn 548 m2-es telken a Szilágyi Erzsébet utca és a Hunyadi János ...

Eladó családi ház

Gödöllő

Gödöllőn, Kertváros csendes részén, eladó egy 73 m²-es, földszinti ...