Eladó családi ház Gödöllő 124 900 000 Ft

Leírás





Gödöllőn, Kertvárosban, Új építésű, 2 szintes ikerházfél eladó!

Eladásra kínálunk egy 141 m²-es, modern ikerházfelet, amelyhez 272 m² saját telekrész tartozik.

Az ingatlan 2026 első felében kerül kulcsrakész állapotba.

Az épület társasházzá lesz nyilvánítva.



Jelenleg egyénileg választhatóak a burkolatok, nyílás zárok és szaniterek,

Utólag beépíthető átfogó tokos ajtó, bruttó 60.000 Ft/db, összeghatárig, a megrendelő igénye szerint.

Burkolatok: meleg burkolatköltsége szegély nélkül 5.500 Ft/ nm-ig.

Kültéri burkolatok: terasznál fagyálló gres hidegburkolat 6.500 Ft/nm, az ehez tartozó anyagok, fugák, élvédők és munkadíjai szintén az eladó költsége.



Választható szaniterek költség határa:

Kád: 50.000 Ft/db összeghatárig.

Kádtöltő csaptelep 25.000 Ft/db összeghatárig

Zuhany csaptelep 25.000 Ft/db összeghatárig

Standardmosdó 25.000 Ft/db összeghatárig

Mosdó csaptelep 20.000 Ft/db összeghatárig

Wc+tartály 45.000 Ft/db összeghatárig.



Főbb jellemzők:

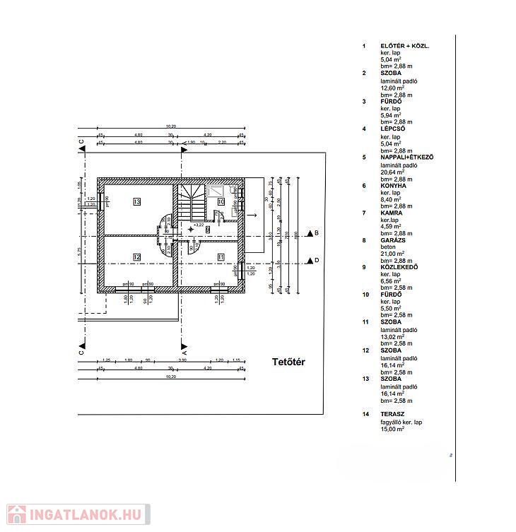
Hasznos alapterület: 141 m²

Telekméret: 272 m²

Építés éve: 2026 (új építésű)

Falazat: 30 cm Porotherm tégla

Válaszfalak: 10 cm Porotherm

Szigetelés: 15 cm grafitos dryvit a homlokzaton, aljzatban 10 cm szigetelés

Tető: Bramac cserép, tetőtérben 25 cm üveggyapot hőszigetelés

Fűtés: Energia hatékony hőszivattyús rendszer

Kiváló hő- és hangszigetelés

Stabil, beton alap

Parkolás: Saját 1 állásos garázs





Elrendezés:

Földszint: amerikai konyhás nappali, 1 szoba, zuhanyzós fürdőszoba + mellékhelyiség, kamra, tároló, közlekedő, kertkapcsolatos terasz

Emelet: 3 külön nyíló hálószoba, kádas fürdőszoba + mellékhelyiség, közlekedő



Környék:

Közelben számos bevásárlási lehetőség, gyógyszertár, bölcsőde, óvoda, iskola, játszótér található.

Pár perc sétára a Mátyás Király utcai vasútállomás található. Az M3-as autópálya pár perc alatt közelíthető meg. Közelben 5, 45, 4, 4A, 24, 45 helyi buszjárat érhető el.



Finanszírozás:

Az ingatlan banki finanszírozással is megvásárolható, melyben irodánk ingyenes tanácsadással áll rendelkezésükre!

Irányár: 124,9 M Ft.

VEVŐINK RÉSZÉRE A KÖZVETÍTÉS DÍJTALAN

A hirdetésben szereplő adatok tájékoztató jellegűek.



Családi ház részletei

Ár: 124 900 000 Ft
Méret: 141 négyzetméter
Azonosító: 11571208
Irodai azonosító: 23472
Telek: 272 négyzetméter
Ingatlan állapota: Épülő
Jelleg: családi ház
Építőanyag: Kérdezzen rá a hirdetőtől »
Fűtés jellege: Egyéb
Szintek száma: 1 szint
Egész szobák: 5

Hasonló családi ház hirdetések

Eladó családi ház

Gödöllő

CasaNetWork Gödöllő Ingatlaniroda kínálatában eladó (garázzsal összekötött) ...

Eladó családi ház

Gödöllő

CasaNetWork Ingatlaniroda Gödöllő Ingatlaniroda kínálatában eladó családi ...

Eladó családi ház

Gödöllő

Gödöllőn 548 m2-es telken a Szilágyi Erzsébet utca és a Hunyadi János ...

Eladó családi ház

Gödöllő

ELADÓ CSALÁDI HÁZ GÖDÖLLŐN!!!!! Eladó egy családi ház Gödöllőn, ...

Hasonló családi ház hirdetések

Eladó családi ház

Gödöllő

CasaNetWork Gödöllő Ingatlaniroda kínálatában eladó (garázzsal összekötött) ...

Eladó családi ház

Gödöllő

CasaNetWork Ingatlaniroda Gödöllő Ingatlaniroda kínálatában eladó családi ...

Eladó családi ház

Gödöllő

Gödöllőn 548 m2-es telken a Szilágyi Erzsébet utca és a Hunyadi János ...

Eladó családi ház

Gödöllő

ELADÓ CSALÁDI HÁZ GÖDÖLLŐN!!!!! Eladó egy családi ház Gödöllőn, ...