Eladó családi ház Gödöllő 129 000 000 Ft

Leírás


Gödöllő központhoz közeli kertvárosi részén, nappali + 4 szobás újépítésű ikerházfél referenciákkal rendelkező, megbízható építőtől eladó!

Műszaki paraméterek:

- 30-as Porotherm tégla falazat + 10cm grafit szigetelés,

- beton cserépfedés,

- födémen 20cm vastag kőzetgyapot,

- 3 réteg üvegezésű, 5 légkamrás hőszigetelt nyílászárókkal, redőny előkészítéssel,

- kondenzációs kazán vagy hőszivattyú (+3Mft), padlófűtéssel,

- riasztó előkészítés, 

- hűtő-fűtő klíma 250.000.-Ft-ig,

- bejárati ajtó: 250.000.-Ft,

- beltéri ajtók: 70.000.-Ft/db,

- kerámia burkolatok 5.500.-Ft/nm,

- parketta 4.500.-Ft/nm,

- mosdó 20.000.-Ft/db,

- WC 30.000.-Ft/db,

- csaptelepek 15.000.-Ft/db,

- kád 50.000.-Ft,

- zuhanyfolyóka 25.000.-Ft,

- helyiségenként 1db kiállás + kiállások 25.000.-Ft/db,

- helyiségenként 1db kapcsoló + kapcsolók 35.000.-Ft/db.

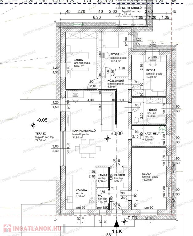
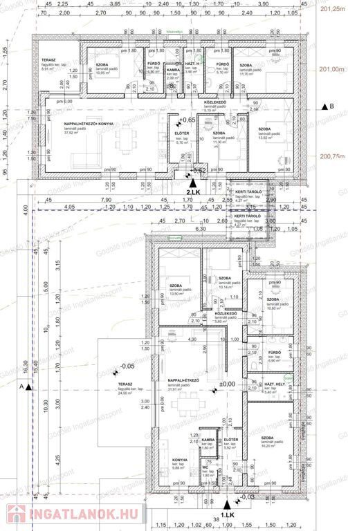
Elosztás:

- előtér, nappali-konyha-étkező, kamra, közlekedő, 4 szoba, fürdő, háztartási helyiség + 8,91nm terasz + 4,27nm kerti tároló

Telek:

- 500nm-es telken helyezkedik el, parkoláshoz kocsibeálló kerül kialakításra,

- kaputól a bejárati ajtóig 1m széles, térkövezett járda,

- Kerítés díszkővel, fa vagy acél közökkel.

Környék:

- Elhelyezkedése kiváló, iskola, óvoda, helyi és távolsági buszmegálló a közelben.

Az ingatlant megbízható kivitelező építi! Burkolatok, belső ajtók a vevői igényei szerint még szabadon választhatók!

Kérésre teljes műszaki tartalmat, alaprajzot szívesen küldünk!

Irányár: 129.000.000.-Ft

Hivatkozási szám: 2518262.

Megtekinthető telefonos időpont egyeztetés alapján:

Sápi Balázs +36 20 772-2429 sapibalazs@godolloi.hu 

GÖDÖLLŐ INGATLANKÖZPONT - www.godolloi.hu: Gödöllő és környéke legnagyobb ingatlan választéka /Gödöllő, Szada, Veresegyház, Kistarcsa, Kerepes, Erdőkertes, Fót, Dunakeszi/ eladó-kiadó családi ház, telek, lakás! Ingatlan építés és felújítás!

Családi ház részletei

Ár: 129 000 000 Ft
Méret: 120 négyzetméter
Azonosító: 11603105
Irodai azonosító: 2518268
Telek: 500 négyzetméter
Ingatlan állapota: Kitűnő
Jelleg: ikerház
Építőanyag: Tégla
Fűtés jellege: Központi
Komfort fokozat: Dupla komfort
Kor: Új építésű
Egész szobák: 5

Hasonló családi ház hirdetések

Eladó családi ház

Gödöllő

Eladásra kínálok Gödöllő kertvárosi részén, egy önálló, tetőtér ...

Eladó családi ház

Gödöllő

Gödöllő blahai részén, gyönyörű örökpanorámás ...

Eladó családi ház

Gödöllő

Gödöllő központhoz közeli kertvárosi részén, nappali ...

Eladó családi ház

Gödöllő

Eladásra kínálok Gödöllő kertvárosi részén egy önálló, felújított ...

Hasonló családi ház hirdetések

Eladó családi ház

Gödöllő

Eladásra kínálok Gödöllő kertvárosi részén, egy önálló, tetőtér ...

Eladó családi ház

Gödöllő

Gödöllő blahai részén, gyönyörű örökpanorámás ...

Eladó családi ház

Gödöllő

Gödöllő központhoz közeli kertvárosi részén, nappali ...

Eladó családi ház

Gödöllő

Eladásra kínálok Gödöllő kertvárosi részén egy önálló, felújított ...