Eladó családi ház Gödöllő 129 990 000 Ft

Leírás

CasaNetWork Ingatlaniroda Gödöllő Ingatlaniroda kínálatában eladó ikerház Gödöllő belvárosában

Gödöllő legkeresettebb, belvárosi utcájában, mindenhez lépésnyi közelségben eladó egy tökéletes elosztású, új építésű otthon!

Ez az ingatlan Gödöllő szívében, a leginkább keresett utcában található, ahol a csendes, kulturált környezet találkozik a belváros minden kényelmével. A HÉV, vonat és buszmegállók, a központ, az intézmények, a bevásárlási lehetőségek és a rendelőintézet is csupán egy karnyújtásnyira vannak, így az autóhasználat minimalizálható.

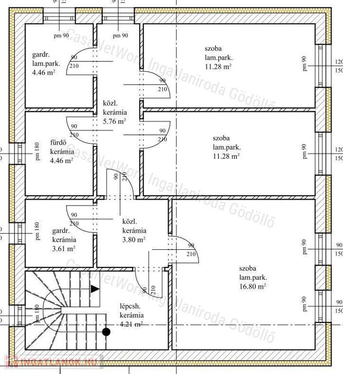
Az ingatlan kialakítása során a kényelem és a praktikum volt a fő szempont. Az elrendezés tökéletesen alkalmazkodik a modern családok igényeihez:

  • Szülői hálószoba saját fürdővel és gardróbbal biztosítja a privát szférát és a kényelmet.
  • További három külön szoba található az emeleten, melyek ideálisak gyerekszobáknak, vendégszobának vagy dolgozószobának.
  • A második fürdőszoba és a külön háztartási helyiség a mindennapi életet könnyíti meg.
  • A nagyméretű terasz a szabadidő kellemes eltöltésére nyújt lehetőséget, a pici kert pedig ideális a kikapcsolódásra és a zöld környezet élvezetére.

Az ingatlant egy megbízható kivitelező építi, aki számos referenciával rendelkezik, garantálva a magas minőséget és a gondos munkát.

Várható kulcsrakész átadás: 2026 tavasza

Ez a családi ház ideális választás mindazok számára, akik egy csendes, modern otthonra vágynak, de nem szeretnének lemondani a belváros közelségének előnyeiről. Ha szeretne élni ezzel a lehetőséggel, keressen fel minket még ma! Ingyenes hitel tanácsadással, ügyvédi kapcsolattal és rugalmas időbeosztással állunk kedves ügyfeleink rendelkezésére! CASANETWORK - Ingatlanban otthon vagyunk

Családi ház részletei

Ár: 129 990 000 Ft
Méret: 150 négyzetméter
Azonosító: 11564433
Irodai azonosító: 166401891
Telek: 320 négyzetméter
Ingatlan állapota: Kitűnő
Jelleg: ikerház
Építőanyag: Tégla
Fűtés jellege: Cirkó
Fűtés módja: Gáz
Komfort fokozat: Összkomfort
Egész szobák: 5

Hasonló családi ház hirdetések

Eladó családi ház

Gödöllő

CasaNetWork Gödöllő Ingatlaniroda kínálatában eladó (garázzsal összekötött) ...

Eladó családi ház

Gödöllő

CasaNetWork Ingatlaniroda Gödöllő Ingatlaniroda kínálatában eladó családi ...

Eladó családi ház

Gödöllő

CasaNetWork Gödöllő Ingatlaniroda kínálatában eladó kertes családi ...

Eladó családi ház

Gödöllő

Gödöllőn, Blahán, eladásra kínálunk egy 1995-ben épült, 138 m²-es, ...

Hasonló családi ház hirdetések

Eladó családi ház

Gödöllő

CasaNetWork Gödöllő Ingatlaniroda kínálatában eladó (garázzsal összekötött) ...

Eladó családi ház

Gödöllő

CasaNetWork Ingatlaniroda Gödöllő Ingatlaniroda kínálatában eladó családi ...

Eladó családi ház

Gödöllő

CasaNetWork Gödöllő Ingatlaniroda kínálatában eladó kertes családi ...

Eladó családi ház

Gödöllő

Gödöllőn, Blahán, eladásra kínálunk egy 1995-ben épült, 138 m²-es, ...