Eladó családi ház Gödöllő 137 900 000 Ft

Leírás

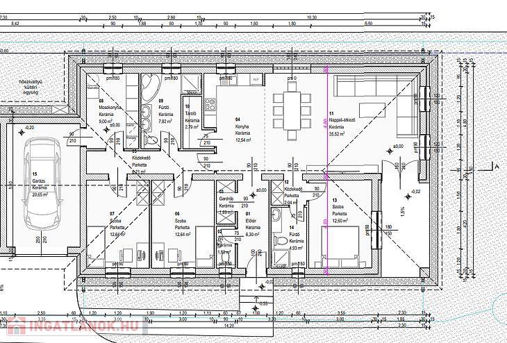
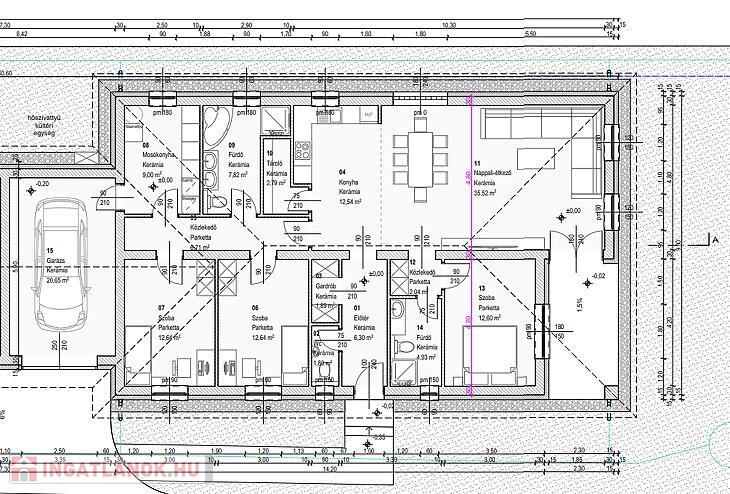
GÖDÖLLŐN, ALVÉG VÁROSRÉSZEN ELADÓ EGY ÚJ ÉPÍTÉSŰ, FÖLDSZINTES, NETTÓ 150 NM-ES IKERHÁZFÉL, 1298 NM-ES TELEKKEL ÉS 1 ÁLLÁSOS GARÁZZSAL.

Az ingatlan 2026 júniusában kerül kulcsrakész állapotba.

Az épület társasházzá lesz nyilvánítva.



Főbb jellemzők:

Alapterület: nettó 150 m²

Telekméret: 1298 m²

Építési éve: 2026 (új építésű)

Falazat: 30 cm Porotherm tégla

Válaszfalak: 10 cm Porotherm

Szigetelés: 15 cm grafitos dryvit a homlokzaton, aljzatban 10 cm szigetelés

Tető: Bramac cserép, tetőtérben 25 cm üveggyapot hőszigetelés

Fűtés: Energiahatékony hőszivattyús rendszer

Stabil, 100 cm mély beton alap

Parkolás: Saját 1 állásos garázs



Az ár tartalmazza:

Beltéri ajtók: 60.000 Ft/db,

Beltéri hidegburkolatok: 6.500 Ft/ m²,

Beltéri melegburkolatok: 6.000 Ft/ m²,

Kültéri burkolatok: terasz 6,500 Ft/ m²,

Szaniterek:

Kád: 60.000 Ft/db,

Kádtöltő: 25.000 Ft/db,

Zuhany csaptelep: 25.000 Ft/db,

Mosdó csaptelep: 15.000 Ft/db,

Standardmosdó: 20.000 Ft/db,

Wc + tartály: 35.000 Ft.

Elrendezés:

Földszint: amerikai konyhás nappali, 3 szoba, zuhanyzós fürdőszoba + mellékhelyiség, kádas fürdőszoba + mellékhelyiség, mosókonyha, garázs, kamra, terasz.



Környék:

A környék jól ellátott helyi és agglomerációs tömegközlekedéssel, ami kényelmes eljutást biztosít mind Gödöllő belvárosába, mind Budapest irányába.

A H8 HÉV/ Gödöllő felől közvetlen kapcsolatot biztosít Budapest Örs vezér tere metróállomással, ahol a 2-es metróhoz lehet átszállni.

Gödöllő városán belül több helyi buszjárat közlekedik, amelyek összekötik a városrészeket, így Alvéget is a vasútállomással és a város központjával.

A buszmegállók gyalogosan néhány perc alatt elérhetők a környéken.

Közelben számos bevásárlási lehetőség, gyógyszertár, bölcsőde, óvoda, iskola, játszótér található.



Finanszírozás:

Az ingatlan banki finanszírozással is megvásárolható, melyben irodánk ingyenes tanácsadással áll rendelkezésükre!



Irányár: 137,9 M Ft.

VEVŐINK RÉSZÉRE A KÖZVETÍTÉS DÍJTALAN



A hirdetésben szereplő adatok tájékoztató jellegűek.

Családi ház részletei

Ár: 137 900 000 Ft
Méret: 150 négyzetméter
Azonosító: 11592147
Irodai azonosító: 24363
Telek: 1298 négyzetméter
Ingatlan állapota: Épülő
Jelleg: családi ház
Építőanyag: Kérdezzen rá a hirdetőtől »
Fűtés jellege: Egyéb
Egész szobák: 4

Hasonló családi ház hirdetések

Eladó családi ház

Gödöllő

GÖDÖLLŐN, ALVÉG VÁROSRÉSZEN ELADÓ EGY ÚJ ÉPÍTÉSŰ, FÖLDSZINTES, ...

Eladó családi ház

Gödöllő

CasaNetWork Ingatlaniroda Gödöllő kínálatában eladó önálló családi ...

Eladó családi ház

Gödöllő

CasaNetWork Ingatlaniroda Gödöllő Ingatlaniroda kínálatában eladó ikerház ...

Eladó családi ház

Gödöllő

Eladásra kínálok Gödöllő kertvárosi részén, egy önálló, tetőtér ...

Hasonló családi ház hirdetések

Eladó családi ház

Gödöllő

GÖDÖLLŐN, ALVÉG VÁROSRÉSZEN ELADÓ EGY ÚJ ÉPÍTÉSŰ, FÖLDSZINTES, ...

Eladó családi ház

Gödöllő

CasaNetWork Ingatlaniroda Gödöllő kínálatában eladó önálló családi ...

Eladó családi ház

Gödöllő

CasaNetWork Ingatlaniroda Gödöllő Ingatlaniroda kínálatában eladó ikerház ...

Eladó családi ház

Gödöllő

Eladásra kínálok Gödöllő kertvárosi részén, egy önálló, tetőtér ...