Eladó családi ház Gödöllő 149 900 000 Ft

Leírás

Eladó ikerházfél Gödöllő kedvelt kertvárosi részén!

Gödöllő egyik legkeresettebb, csendes, nyugodt környékén kínálunk megvételre egy modern, nappali + 3 szobás ikerházfelet, amelyet megbízható, referenciákkal rendelkező kivitelező épít. A ház kiváló választás családoknak, akik szeretnének jó elhelyezkedésű, új építésű otthonba költözni.

Műszaki jellemzők:

30 cm vastag PTH tégla falazat, 12 cm grafitos hőszigeteléssel

10 cm vastag válaszfalak, glettelve és fehérre festve

Lábazat: zsalukőből, szigetelve és vakolva

5 légkamrás, 3 rétegű üvegezésű műanyag nyílászárók középszürke színben

Monolit vasbeton födém

Antracit színű cserépfedés, középszürke ereszcsatorna

Atlantic Loria hőszivattyús rendszer beépített melegvíz-tárolóval

Padlófűtés minden helyiségben, fürdőszobában törölközőszárítós radiátor

Riasztó- és klíma előkészítés

Az ár tartalmazza:

Beltéri ajtók (60.000 Ft/db)

Hideg- és melegburkolatok (5.000 Ft/m²)

Teraszburkolat (6.500 Ft/m²)

Mosdók (20.000 Ft/db)

Csaptelepek (15.000 Ft/db)

Beépített Geberit WC-k (20.000 Ft/db)

Burkolatok és szaniterek szabadon választhatók a vevő igényei szerint!

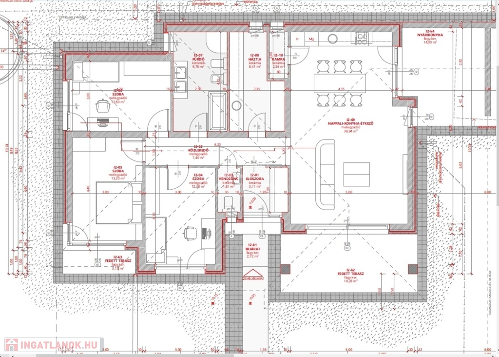
Helyiségek elosztása:

Előszoba

Nappali-konyha-étkező

Kamra

3 különálló szoba

Közlekedő

Tágas fürdőszoba

Vendégmosdó

Háztartási helyiség

17 m² fedett terasz

14 m²-es nyári konyha

Telek és parkolás:

Saját, szeparált mintegy 550 m²-es telek

Kocsibeálló kialakítva

Környék és elhelyezkedés:

Kiváló környék, minden fontos hely (bolt, iskola, tömegközlekedés) 5 perces sétán belül elérhető. Ideális választás azoknak, akik nyugodt, kertvárosi környezetben keresnek otthont, de szeretnének közel maradni a városi infrastruktúrához.

Várható kulcsrakész átadás: 2026. június

Kérem hívjon bizalommal további információkért, megtekintésért.

Természetesen hitelt, támogatást igénylő vevőknek is állunk szíves rendelkezésére: szakértőink segítenek megtalálni a személyre szabott legjobb finanszírozási formát.



ID:384886

Családi ház részletei

Ár: 149 900 000 Ft
Méret: 145 négyzetméter
Azonosító: 11606731
Irodai azonosító: 393826
Cím: Kertváros
Telek: 550 négyzetméter
Ingatlan állapota: Kitűnő
Jelleg: ikerház
Építőanyag: Tégla
Fűtés jellege: Geotermikus
Fűtés módja: Hőszivattyú
Komfort fokozat: Összkomfort
Kor: Új építésű
Szintek száma: Földszintes
Egész szobák: 4

Egyéb jellemzők

  • Csatorna
  • Garázs
  • Pince
  • Terasz

Térkép

Hasonló családi ház hirdetések

Eladó családi ház

Gödöllő

CasaNetWork Gödöllő Ingatlaniroda kínálatában eladó új építésű ...

Eladó családi ház

Gödöllő

CasaNetWork Ingatlaniroda Gödöllő Ingatlaniroda kínálatában eladó ikerház ...

Eladó családi ház

Gödöllő

Új építésű kulcsrakész lakás Gödöllőn – magas műszaki tartalommal! Gödöllőn ...

Eladó családi ház

Gödöllő

Gödöllőn, a központhoz közel, folyamatosan karbantartott, ...

Hasonló családi ház hirdetések

Eladó családi ház

Gödöllő

CasaNetWork Gödöllő Ingatlaniroda kínálatában eladó új építésű ...

Eladó családi ház

Gödöllő

CasaNetWork Ingatlaniroda Gödöllő Ingatlaniroda kínálatában eladó ikerház ...

Eladó családi ház

Gödöllő

Új építésű kulcsrakész lakás Gödöllőn – magas műszaki tartalommal! Gödöllőn ...

Eladó családi ház

Gödöllő

Gödöllőn, a központhoz közel, folyamatosan karbantartott, ...